Podlaží
Izieb
Osoby
Úžitková plocha
Cena projektu
Cena na kľúč
Cena stavby svojpomocne
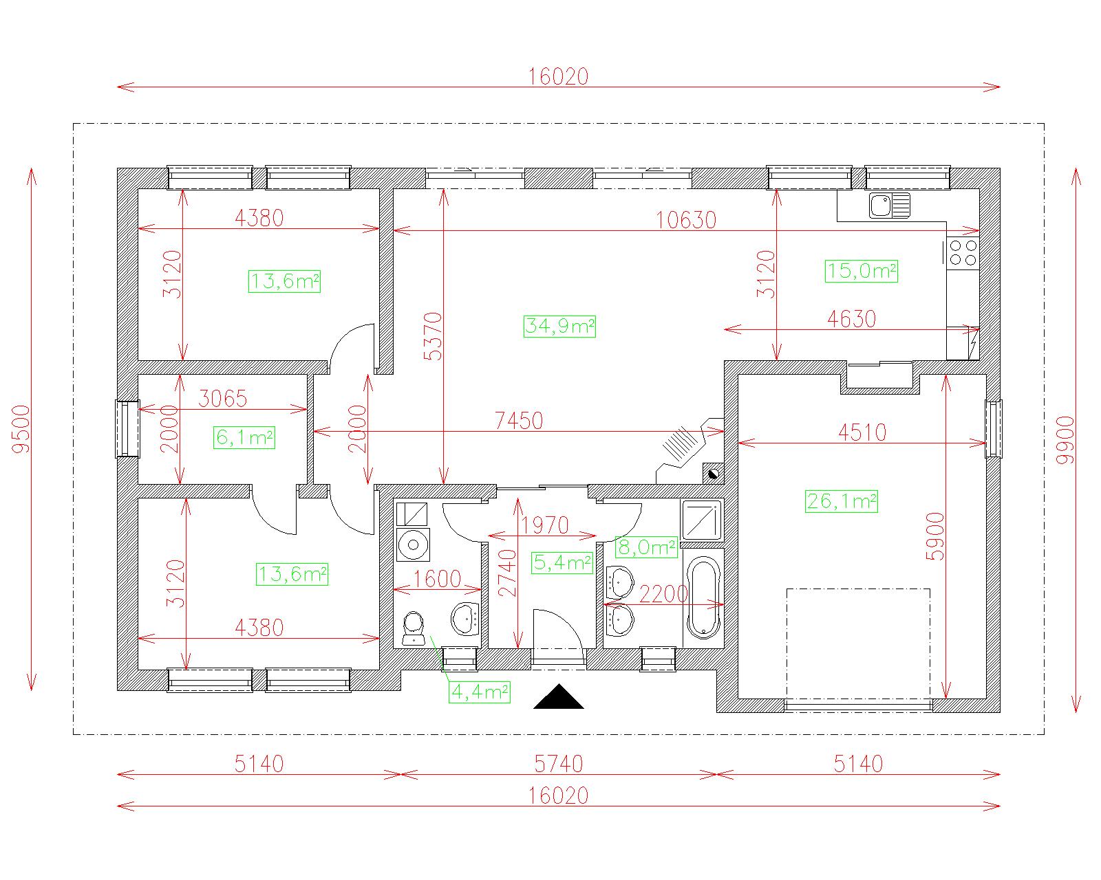
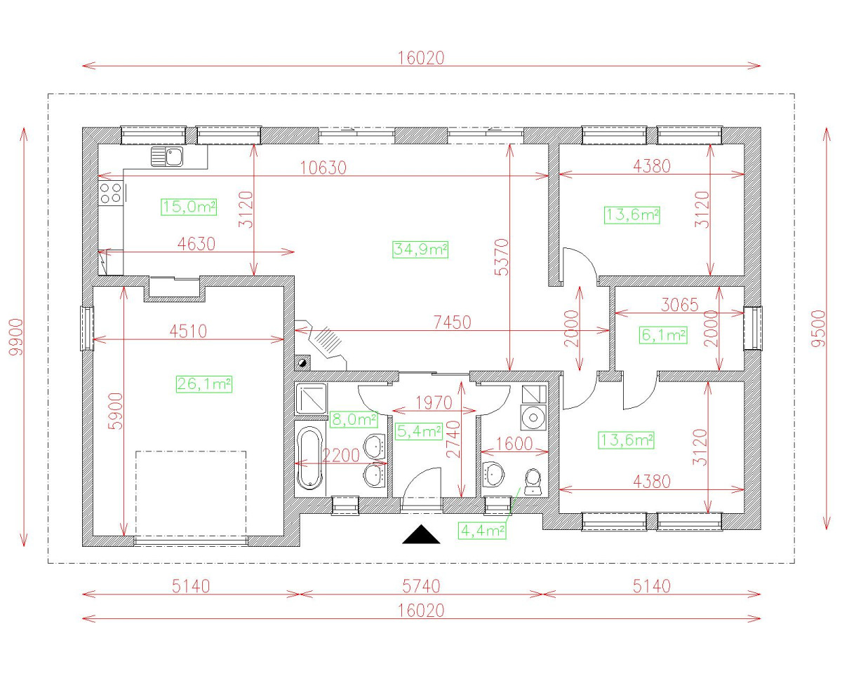
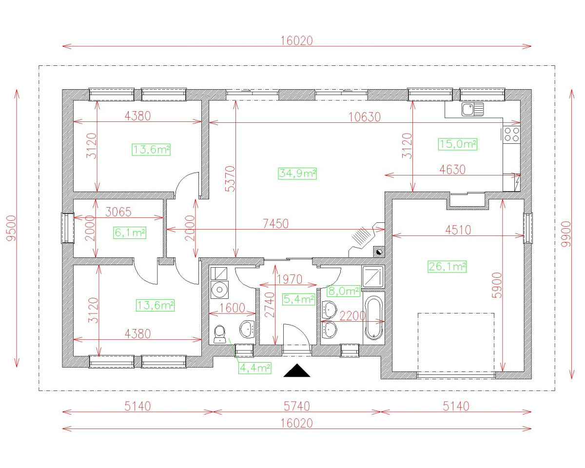
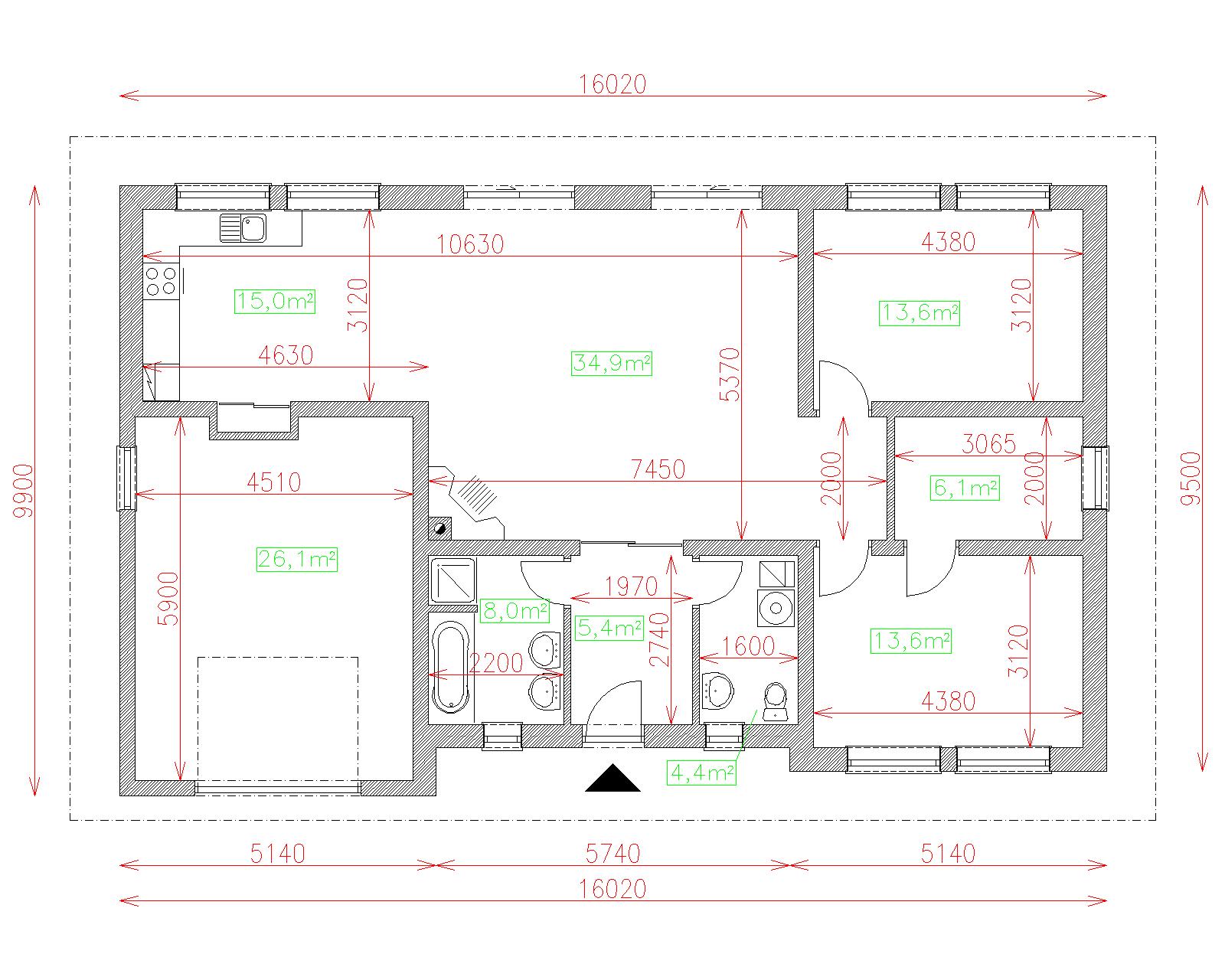
| Popis | Hodnota |
|---|---|
| Počet osôb | 4 |
| Orientácia vchodu | S. J |
| Podlaží | 1 |
| Počet obytných izieb | 3 |
| Obostavaný priestor | 710 m2 |
| Celková úžitková plocha | 125.6 m2 |
| Celková obytná plocha | 62.7 m2 |
| Zastavaná plocha | 152.1 m3 |
| Výška hrebeňa strechy | 5 |
| Sklon strechy | 17 |
| Cena projektu | € 1 240 |
| Cena stavby na kľúč | € 160 000 |


