Podlaží
Izieb
Osoby
Úžitková plocha
Cena projektu
Cena na kľúč
Cena stavby svojpomocne
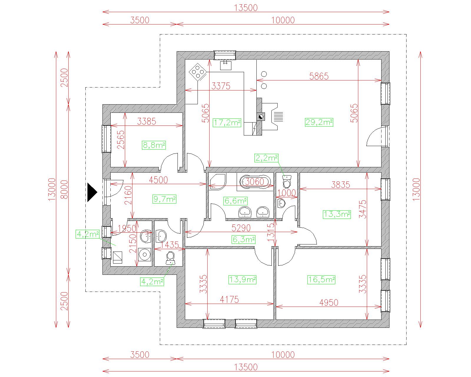
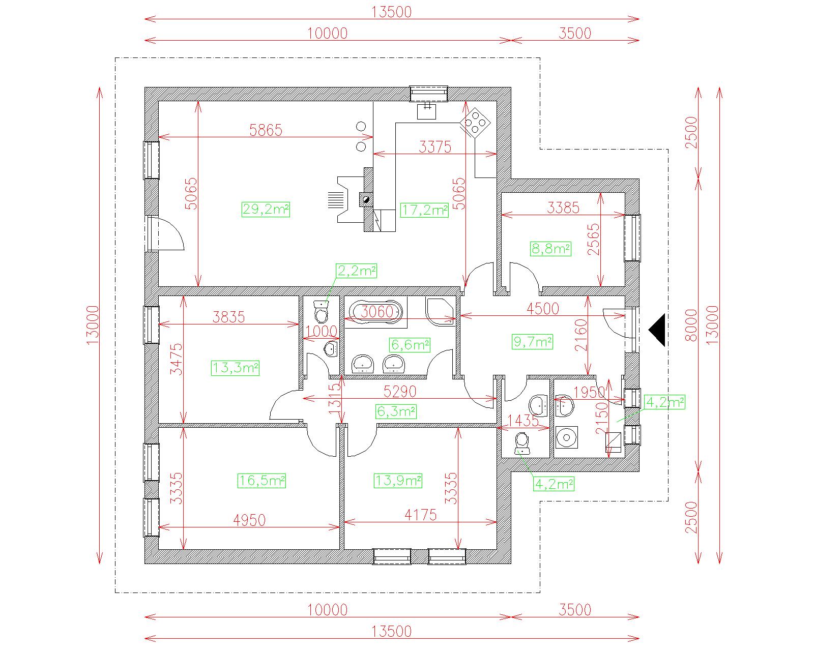
| Popis | Hodnota |
|---|---|
| Počet osôb | 4 |
| Orientácia vchodu | S. SV |
| Podlaží | 1 |
| Počet obytných izieb | 4 |
| Obostavaný priestor | 710 m2 |
| Celková úžitková plocha | 131.1 m2 |
| Celková obytná plocha | 78.6 m2 |
| Zastavaná plocha | 158 m3 |
| Výška hrebeňa strechy | 5.9 |
| Sklon strechy | 20 |
| Cena projektu | € 1 220 |
| Cena stavby na kľúč | € 166 900 |


