Podlaží
Izieb
Osoby
Úžitková plocha
Cena projektu
Cena na kľúč
Cena stavby svojpomocne
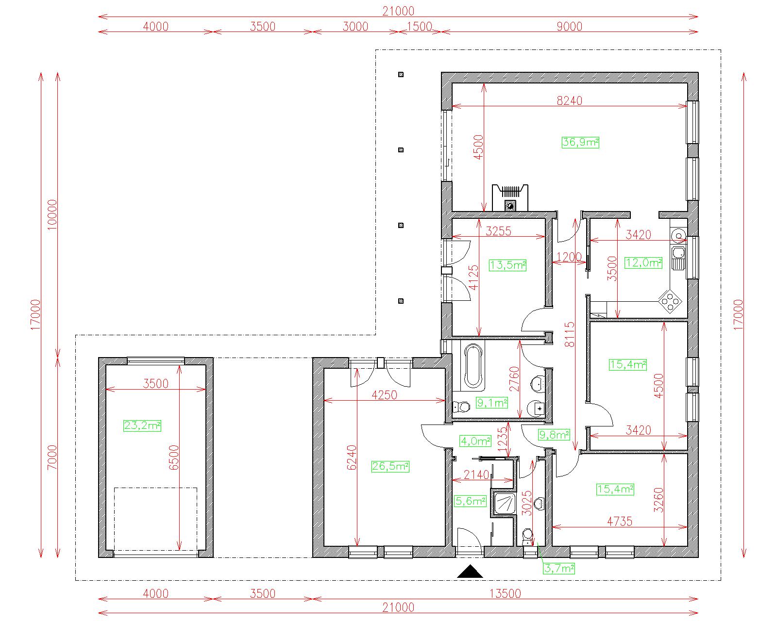
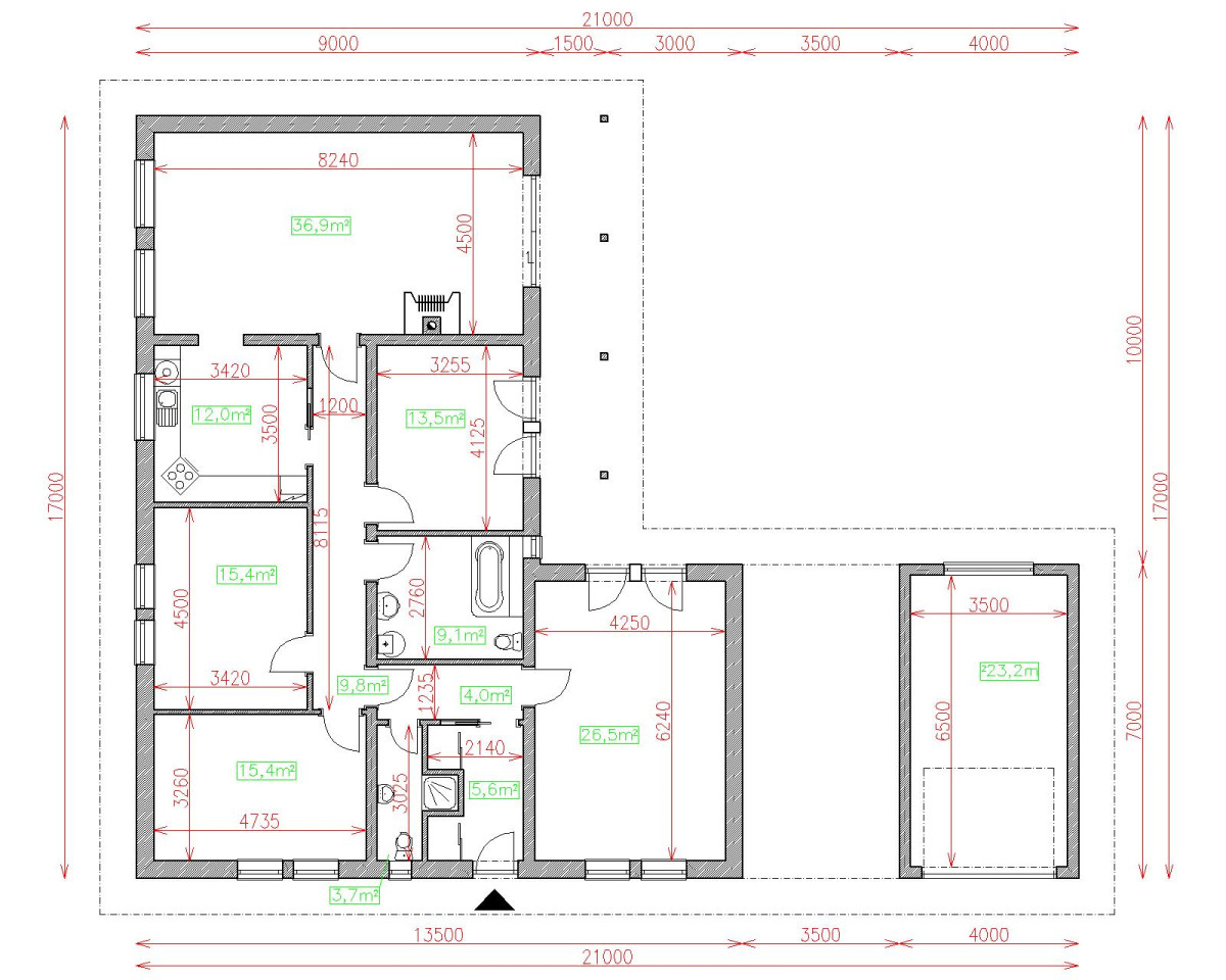
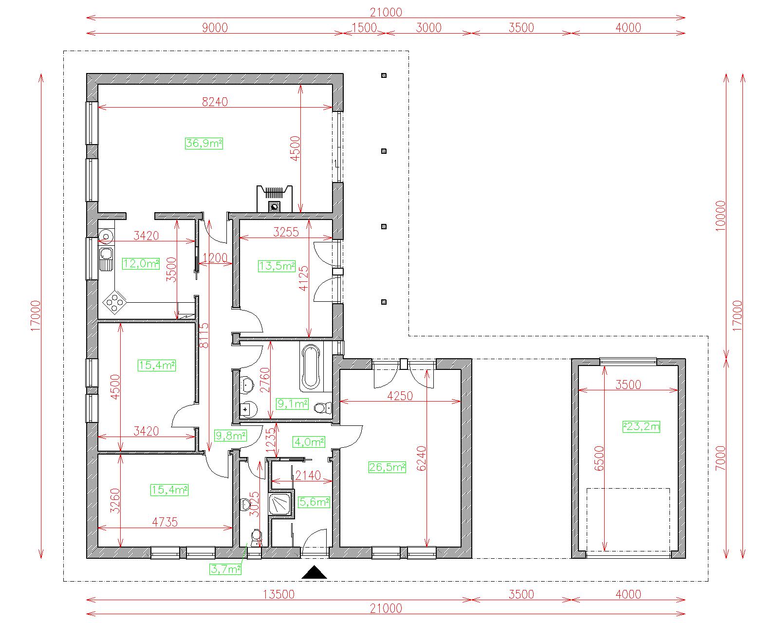
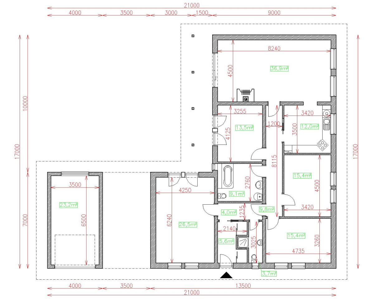
| Popis | Hodnota |
|---|---|
| Počet osôb | 5 |
| Orientácia vchodu | J. JZ |
| Podlaží | 1 |
| Počet obytných izieb | 5 |
| Obostavaný priestor | 830 m2 |
| Celková úžitková plocha | 175.6 m2 |
| Celková obytná plocha | 108.1 m2 |
| Zastavaná plocha | 212.5 m3 |
| Výška hrebeňa strechy | 5.5 |
| Sklon strechy | 22 |
| Cena projektu | € 1 360 |
| Cena stavby na kľúč | € 223 000 |


