Podlaží
Izieb
Osoby
Úžitková plocha
Cena projektu
Cena na kľúč
Cena stavby svojpomocne
| Popis | Hodnota |
|---|---|
| Počet osôb | 4 |
| Orientácia vchodu | V. JV |
| Podlaží | 1 |
| Počet obytných izieb | 3 |
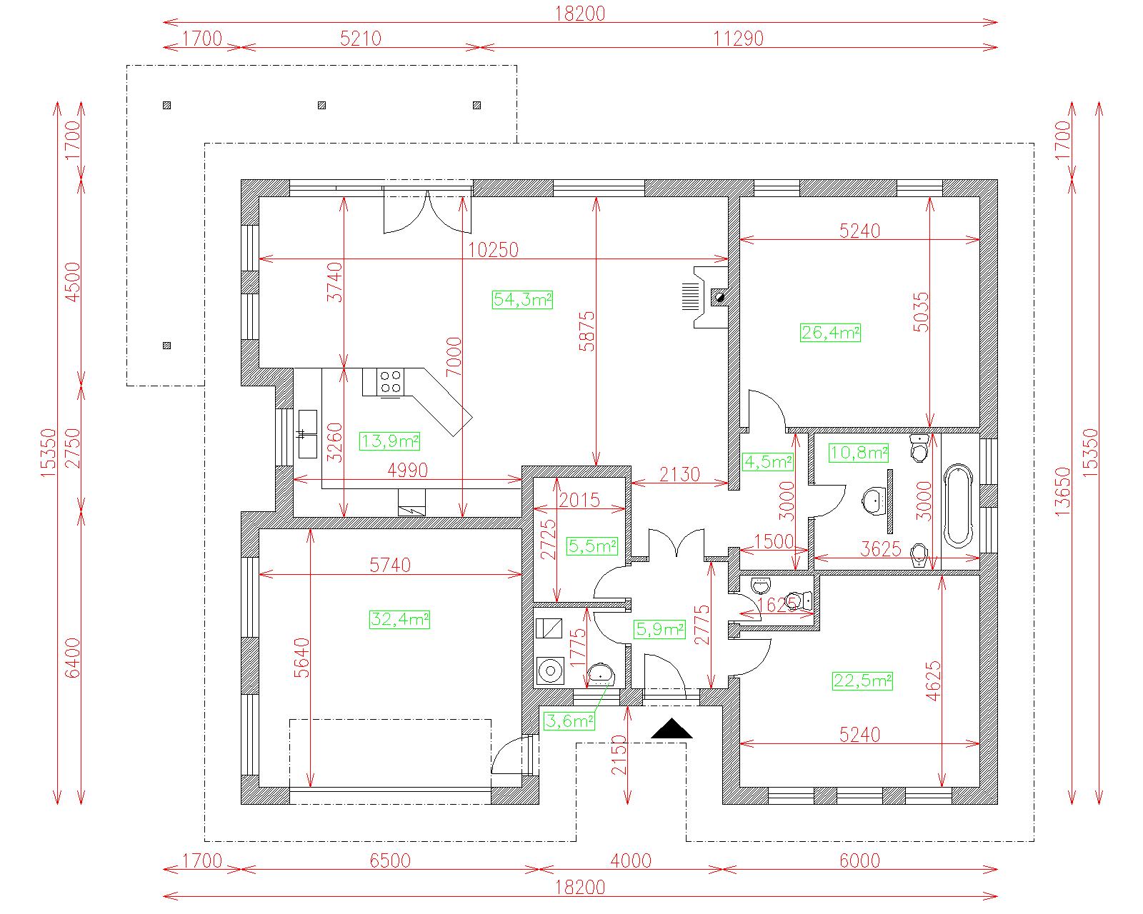
| Obostavaný priestor | 1000 m2 |
| Celková úžitková plocha | 181.7 m2 |
| Celková obytná plocha | 103.2 m2 |
| Zastavaná plocha | 214.6 m3 |
| Výška hrebeňa strechy | 5.9 |
| Sklon strechy | 20 |
| Cena projektu | € 1 320 |
| Cena stavby na kľúč | € 226 000 |


