Podlaží
Izieb
Osoby
Úžitková plocha
Cena projektu
Cena na kľúč
Cena stavby svojpomocne
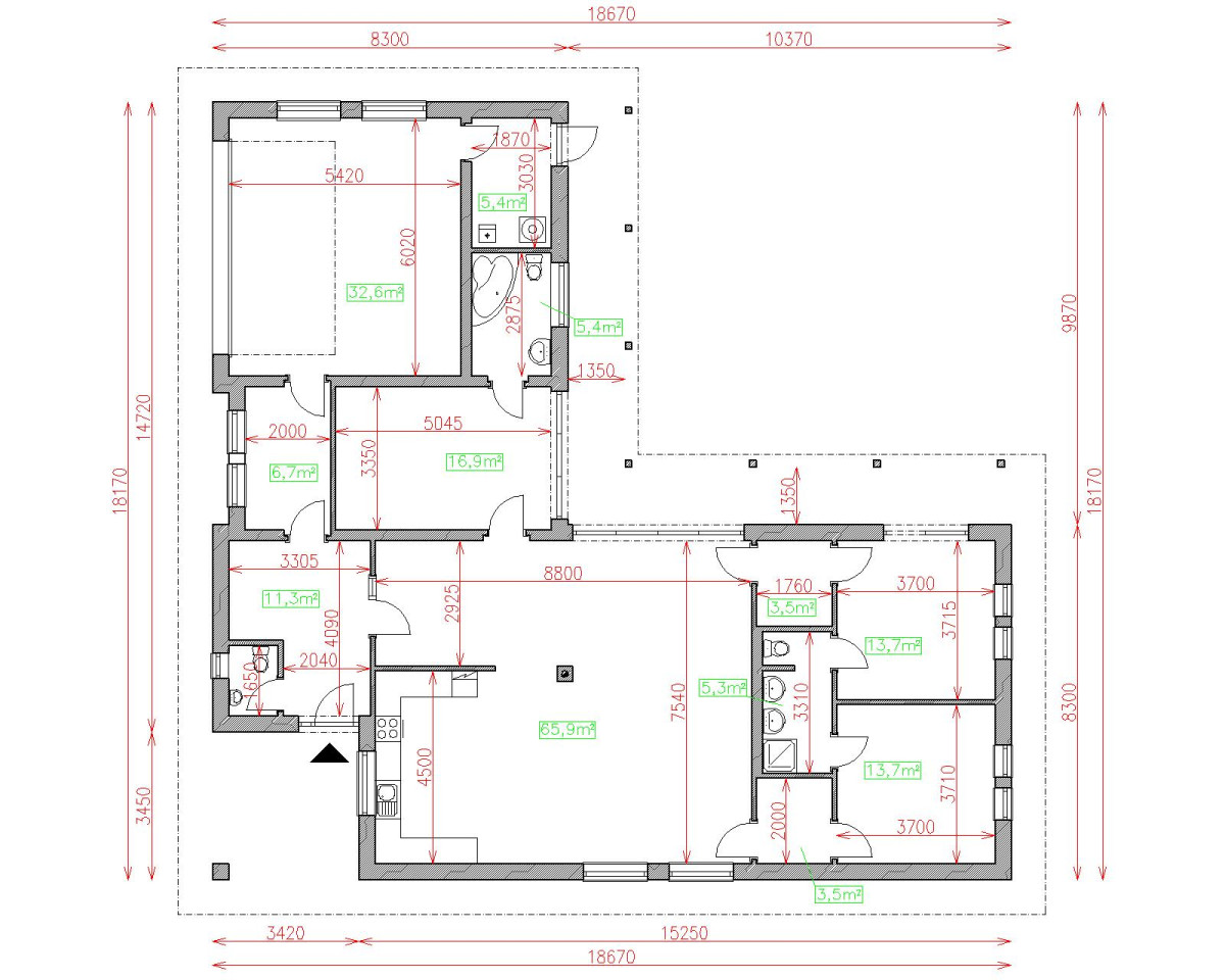
| Popis | Hodnota |
|---|---|
| Počet osôb | 4 |
| Orientácia vchodu | S. SZ |
| Podlaží | 1 |
| Počet obytných izieb | 4 |
| Obostavaný priestor | 1140 m2 |
| Celková úžitková plocha | 185.5 m2 |
| Celková obytná plocha | 90.5 m2 |
| Zastavaná plocha | 223.5 m3 |
| Výška hrebeňa strechy | 5.6 |
| Sklon strechy | 25 |
| Cena projektu | € 1 290 |
| Cena stavby na kľúč | € 235 000 |


