Podlaží
Izieb
Osoby
Úžitková plocha
Cena projektu
Cena na kľúč
Cena stavby svojpomocne
| Popis | Hodnota |
|---|---|
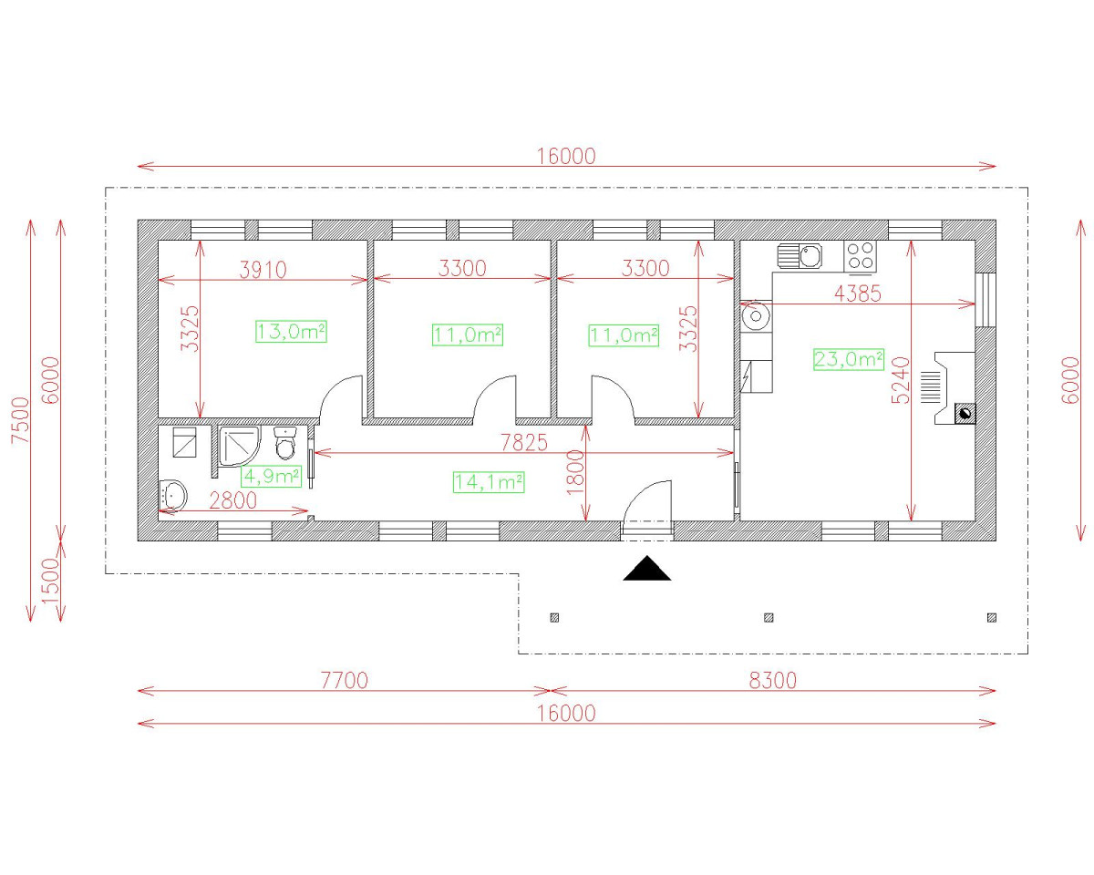
| Počet osôb | 4 |
| Orientácia vchodu | V. SV |
| Podlaží | 1 |
| Počet obytných izieb | 4 |
| Obostavaný priestor | 420 m2 |
| Celková úžitková plocha | 77 m2 |
| Celková obytná plocha | 58 m2 |
| Zastavaná plocha | 96 m3 |
| Výška hrebeňa strechy | 4.7 |
| Sklon strechy | 22 |
| Cena projektu | € 2 570 |
| Cena stavby na kľúč | € 102 400 |


