Podlaží
Izieb
Osoby
Úžitková plocha
Cena projektu
Cena na kľúč
Cena stavby svojpomocne
| Popis | Hodnota |
|---|---|
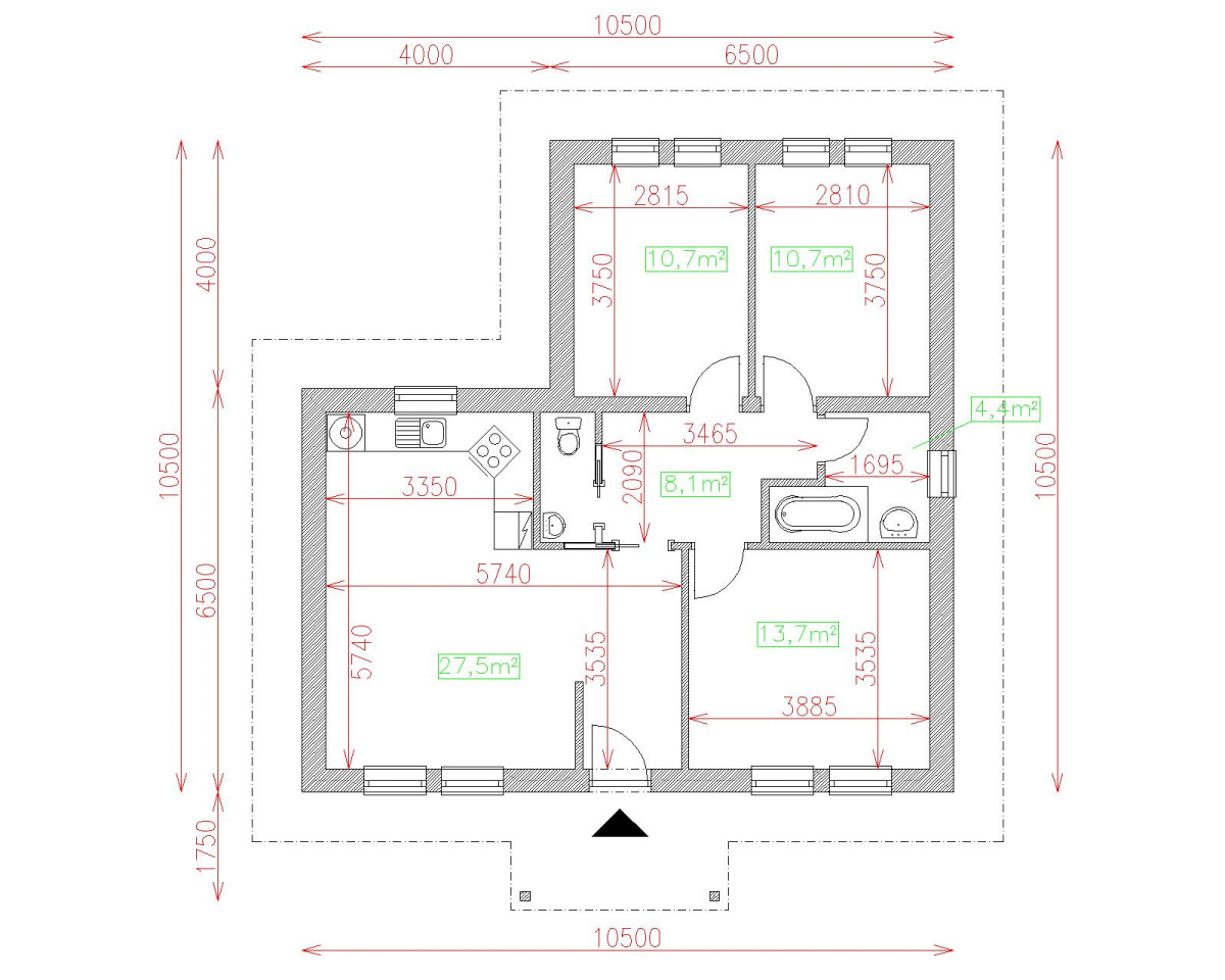
| Počet osôb | 4 |
| Orientácia vchodu | V. JV |
| Podlaží | 1 |
| Počet obytných izieb | 4 |
| Obostavaný priestor | 360 m2 |
| Celková úžitková plocha | 76.9 m2 |
| Celková obytná plocha | 55.2 m2 |
| Zastavaná plocha | 94.3 m3 |
| Výška hrebeňa strechy | 4.8 |
| Sklon strechy | 22 |
| Cena projektu | € 1 200 |
| Cena stavby na kľúč | € 100 500 |


