Podlaží
Izieb
Osoby
Úžitková plocha
Cena projektu
Cena na kľúč
Cena stavby svojpomocne
| Popis | Hodnota |
|---|---|
| Počet osôb | 5 |
| Orientácia vchodu | S. SZ |
| Podlaží | 2 |
| Počet obytných izieb | 5 |
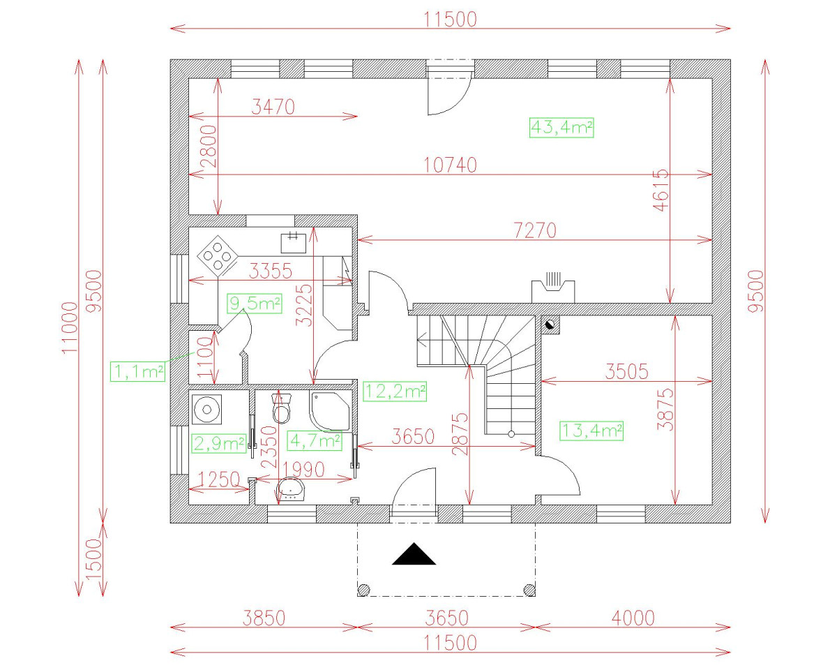
| Obostavaný priestor | 700 m2 |
| Celková úžitková plocha | 182.7 m2 |
| Celková obytná plocha | 109.7 m2 |
| Zastavaná plocha | 109.3 m3 |
| Výška hrebeňa strechy | 7.6 |
| Sklon strechy | 35 |
| Cena projektu | € 2 480 |
| Cena stavby na kľúč | € 195 000 |


