Podlaží
Izieb
Osoby
Úžitková plocha
Cena projektu
Cena na kľúč
Cena stavby svojpomocne
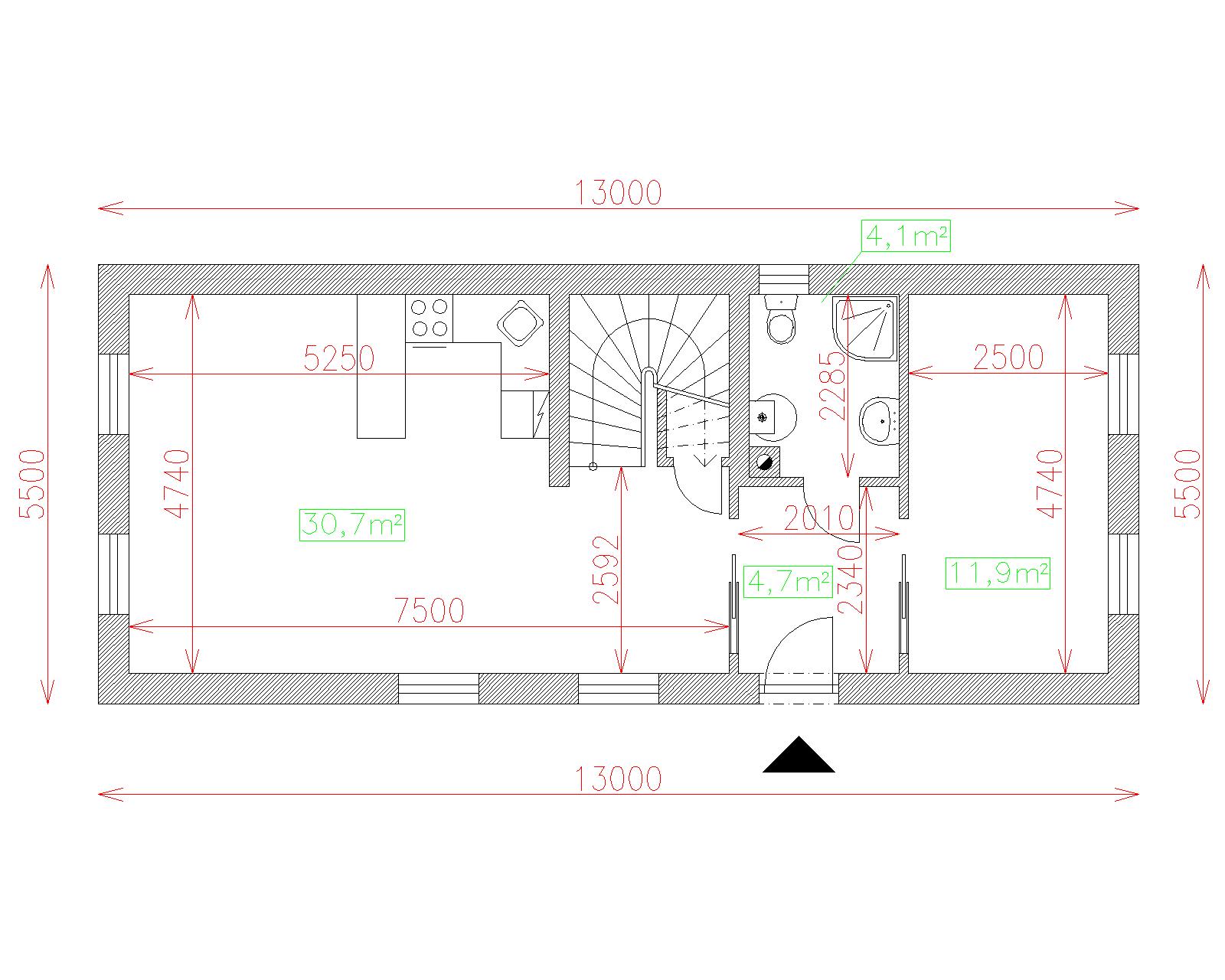
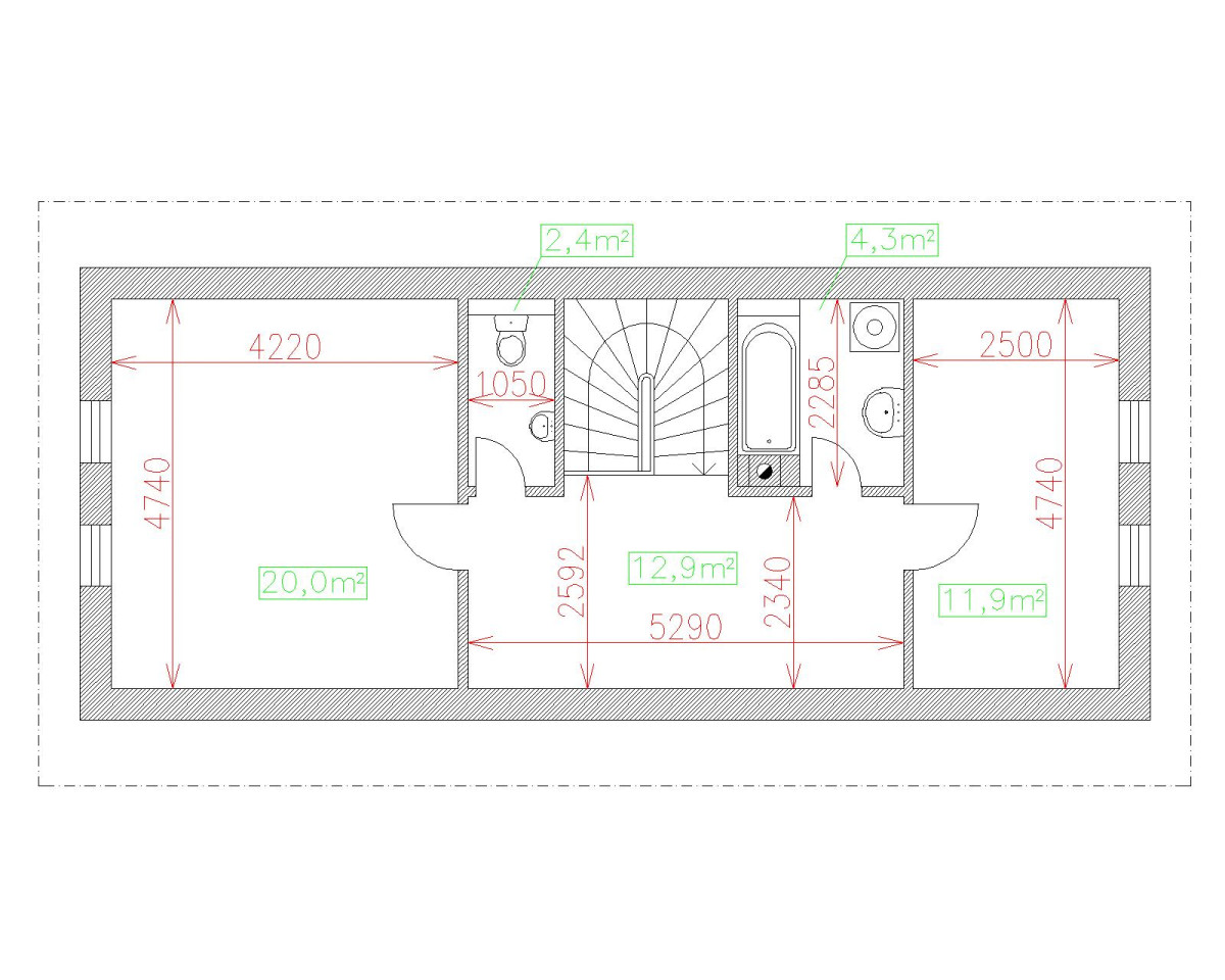
| Popis | Hodnota |
|---|---|
| Počet osôb | 4 |
| Orientácia vchodu | S. J |
| Podlaží | 2 |
| Počet obytných izieb | 4 |
| Obostavaný priestor | 450 m2 |
| Celková úžitková plocha | 108.8 m2 |
| Celková obytná plocha | 74.5 m2 |
| Zastavaná plocha | 71.5 m3 |
| Výška hrebeňa strechy | 7.4 |
| Sklon strechy | 45 |
| Cena projektu | € 2 500 |
| Cena stavby na kľúč | € 129 000 |


