Podlaží
Izieb
Osoby
Úžitková plocha
Cena projektu
Cena na kľúč
Cena stavby svojpomocne
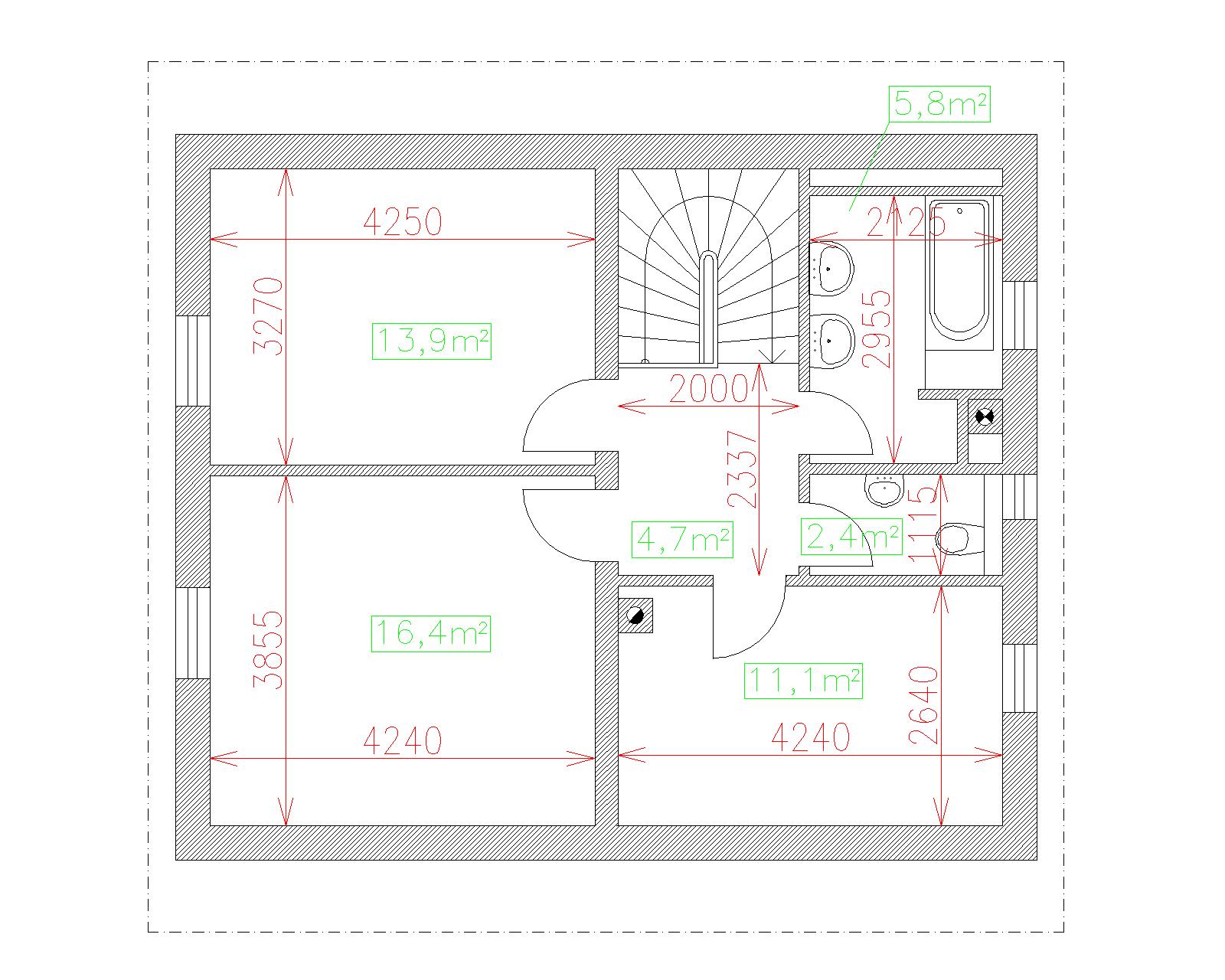
| Popis | Hodnota |
|---|---|
| Počet osôb | 5 |
| Orientácia vchodu | V. SV |
| Podlaží | 2 |
| Počet obytných izieb | 5 |
| Obostavaný priestor | 540 m2 |
| Celková úžitková plocha | 115.6 m2 |
| Celková obytná plocha | 72.7 m2 |
| Zastavaná plocha | 76.4 m3 |
| Výška hrebeňa strechy | 9.1 |
| Sklon strechy | 50 |
| Cena projektu | € 2 500 |
| Cena stavby na kľúč | € 137 000 |


