Podlaží
Izieb
Osoby
Úžitková plocha
Cena projektu
Cena na kľúč
Cena stavby svojpomocne
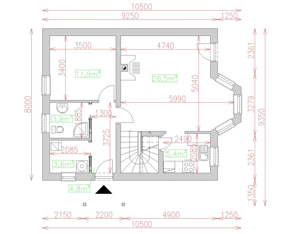
| Popis | Hodnota |
|---|---|
| Počet osôb | 5 |
| Orientácia vchodu | S. SV |
| Podlaží | 2 |
| Počet obytných izieb | 5 |
| Obostavaný priestor | 470 m2 |
| Celková úžitková plocha | 119.2 m2 |
| Celková obytná plocha | 78 m2 |
| Zastavaná plocha | 77.2 m3 |
| Výška hrebeňa strechy | 7.2 |
| Sklon strechy | 35 |
| Cena projektu | € 1 240 |
| Cena stavby na kľúč | € 139 000 |


