Podlaží
Izieb
Osoby
Úžitková plocha
Cena projektu
Cena na kľúč
Cena stavby svojpomocne
| Popis | Hodnota |
|---|---|
| Počet osôb | 4 |
| Orientácia vchodu | V |
| Podlaží | 2 |
| Počet obytných izieb | 4 |
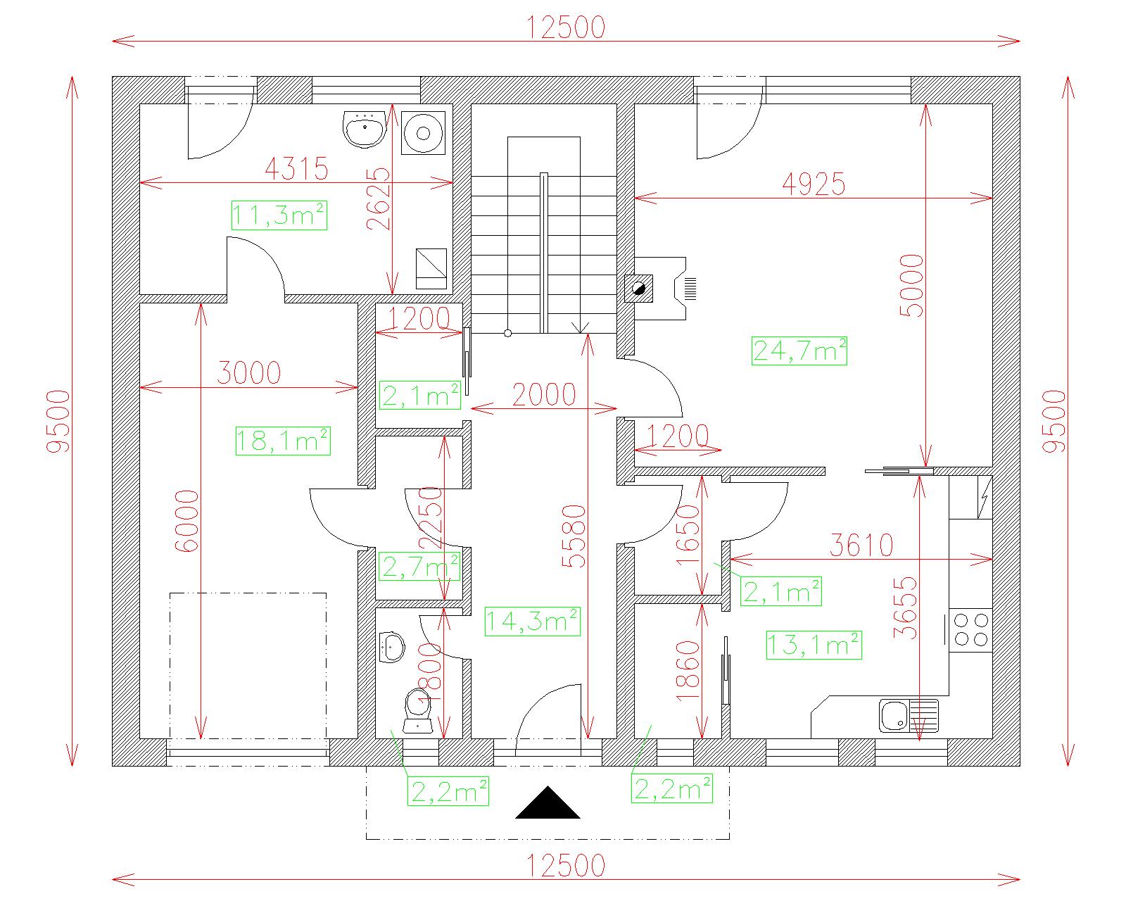
| Obostavaný priestor | 760 m2 |
| Celková úžitková plocha | 196.1 m2 |
| Celková obytná plocha | 88.1 m2 |
| Zastavaná plocha | 118.8 m3 |
| Výška hrebeňa strechy | 7.8 |
| Sklon strechy | 35 |
| Cena projektu | € 2 690 |
| Cena stavby na kľúč | € 212 000 |


