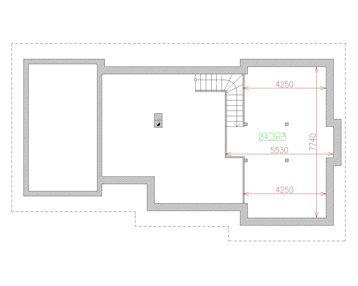
Podlaží
Izieb
Osoby
Úžitková plocha
Cena projektu
Cena na kľúč
Cena stavby svojpomocne
| Popis | Hodnota |
|---|---|
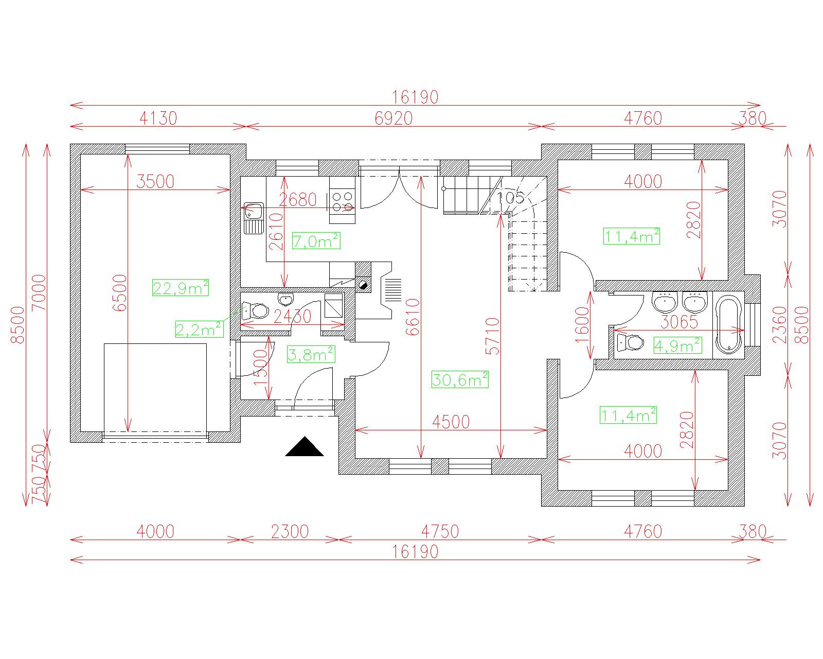
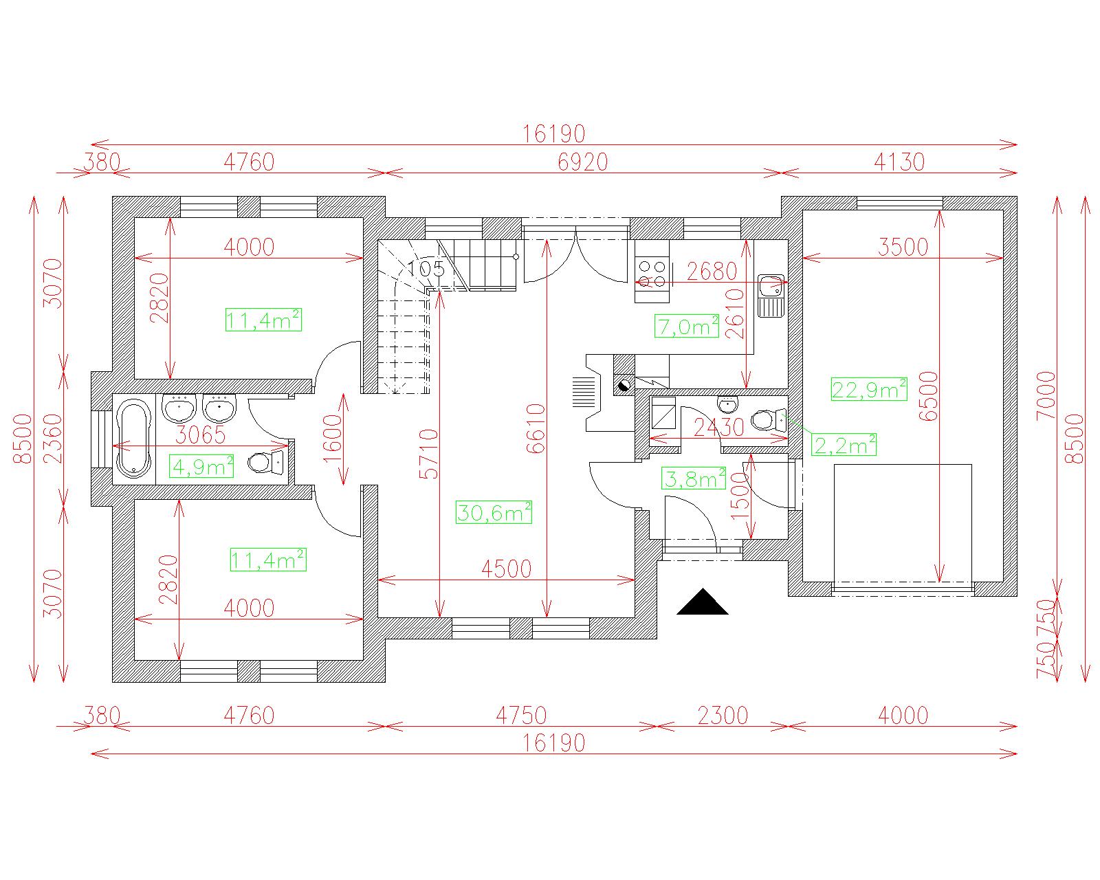
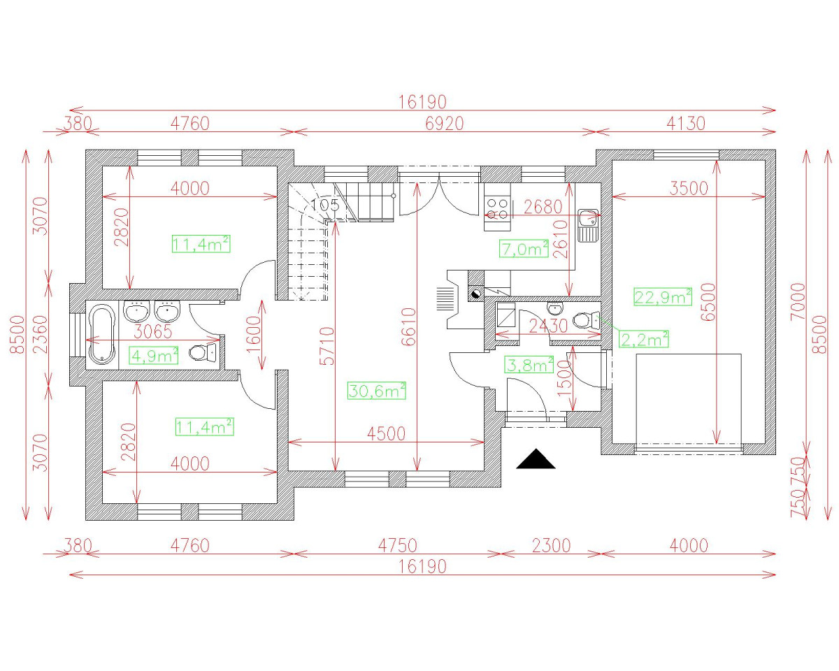
| Počet osôb | 4 |
| Orientácia vchodu | Z.JZ |
| Podlaží | 2 |
| Počet obytných izieb | 4 |
| Obostavaný priestor | 600 m2 |
| Celková úžitková plocha | 132.1 m2 |
| Celková obytná plocha | 87.7 m2 |
| Zastavaná plocha | 118.2 m3 |
| Výška hrebeňa strechy | 6.4 |
| Sklon strechy | 30 |
| Cena projektu | € 1 360 |
| Cena stavby na kľúč | € 152 000 |


