Podlaží
Izieb
Osoby
Úžitková plocha
Cena projektu
Cena na kľúč
Cena stavby svojpomocne
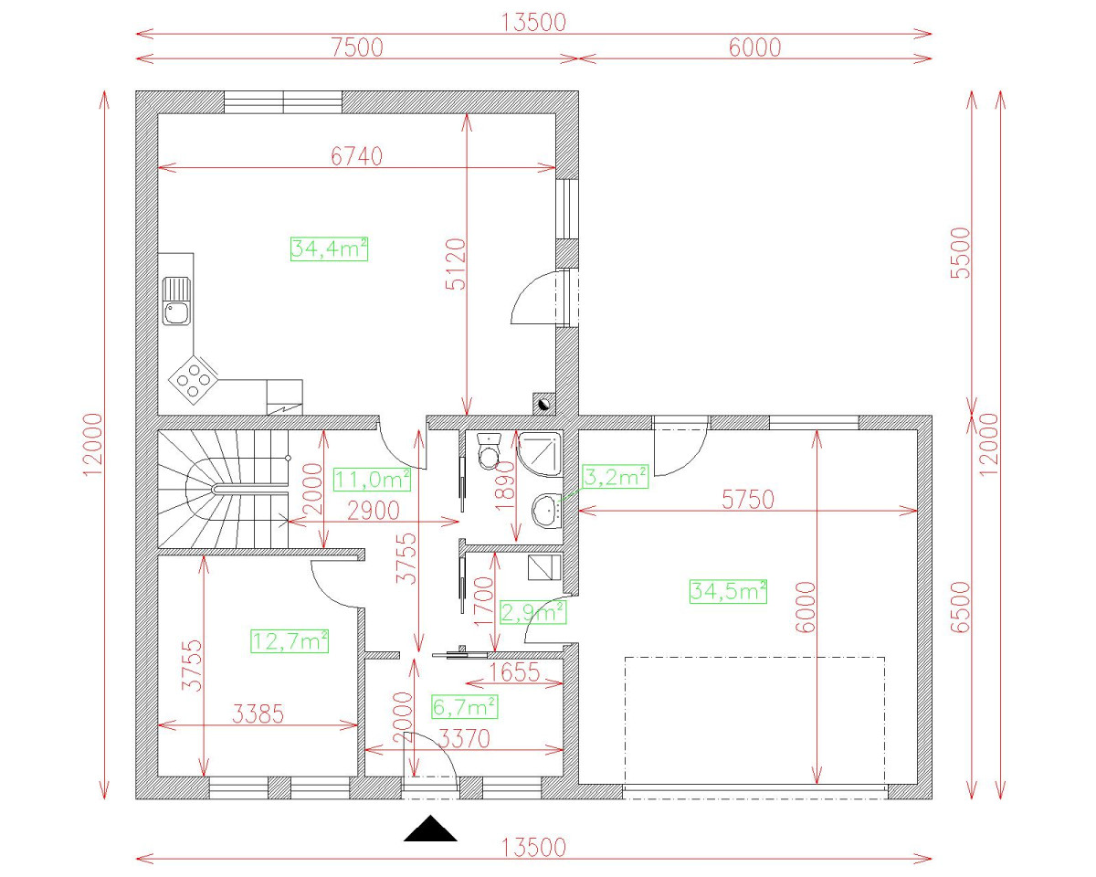
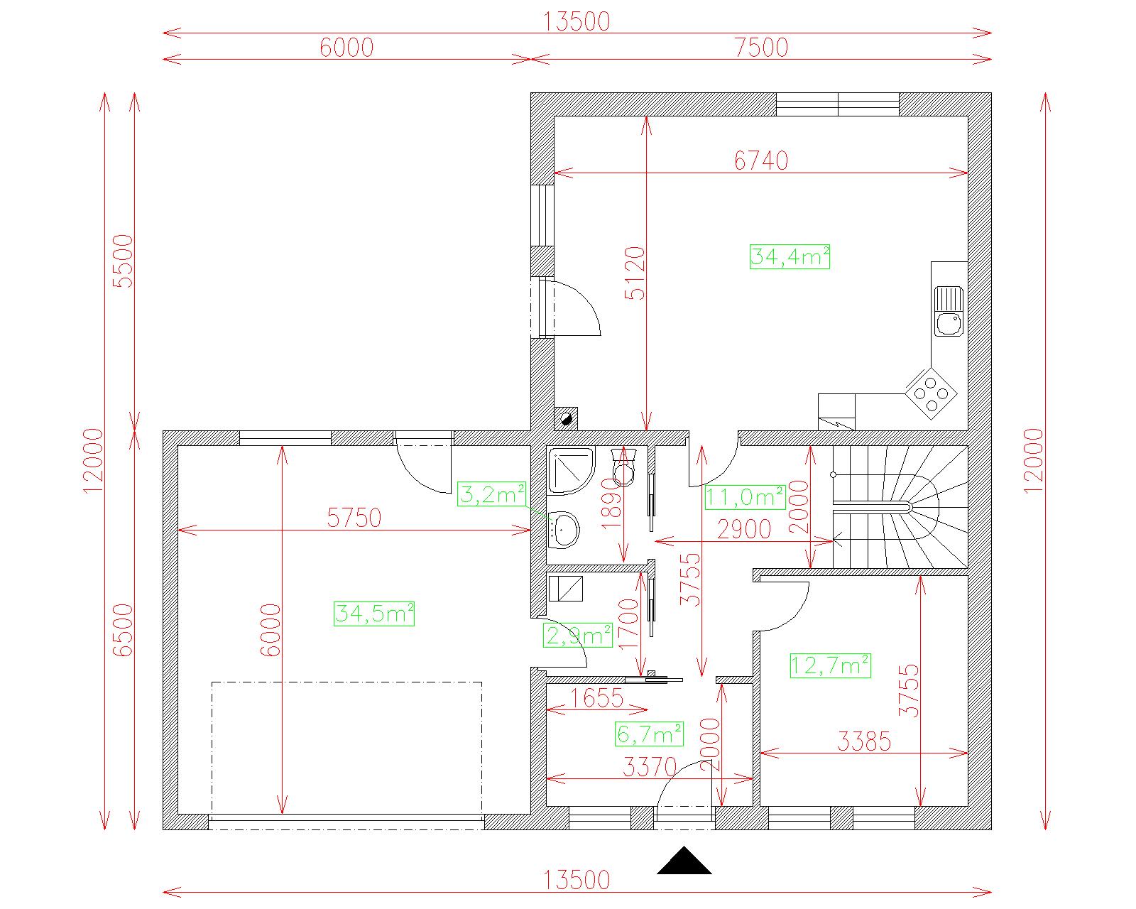
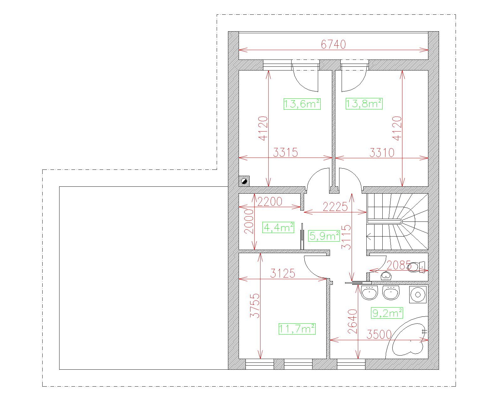
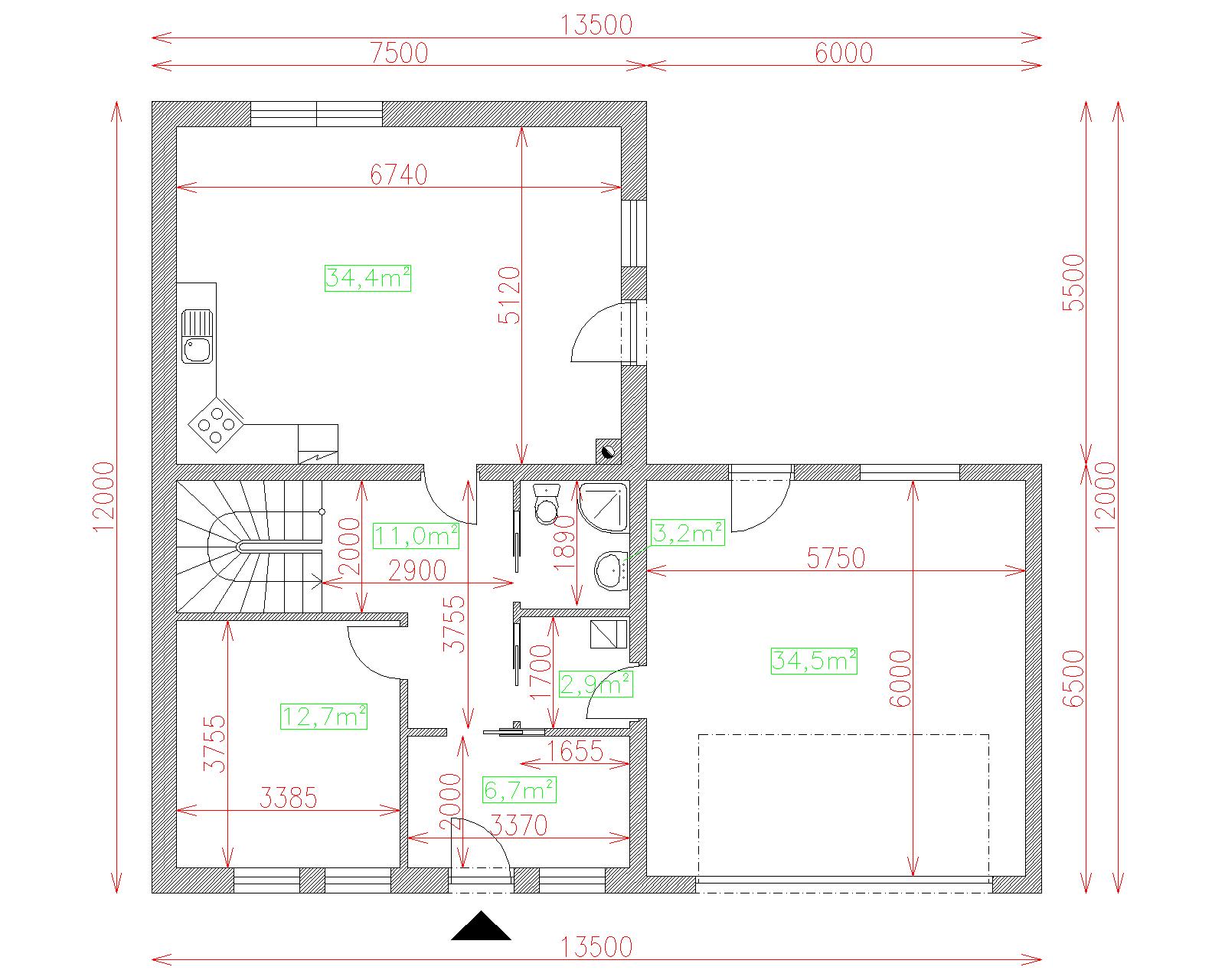
| Popis | Hodnota |
|---|---|
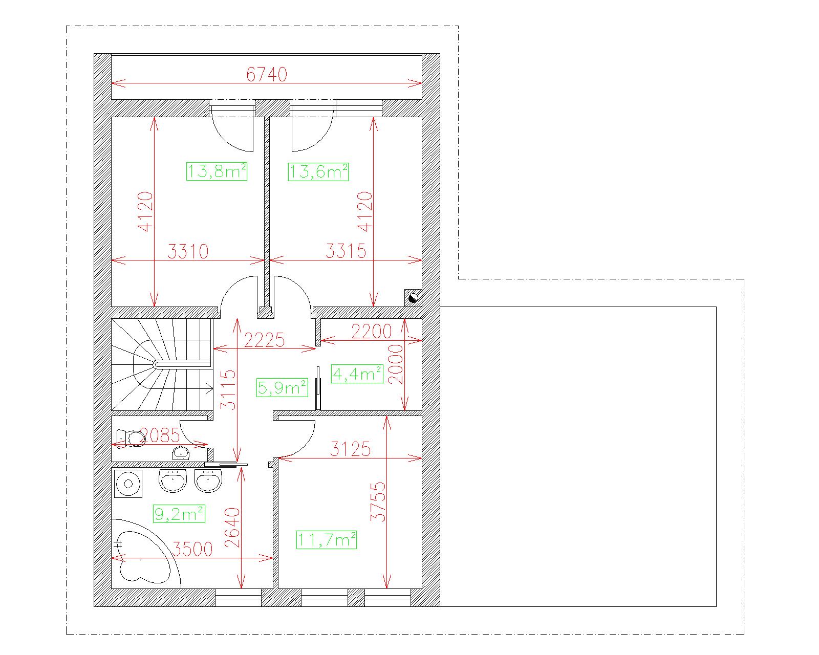
| Počet osôb | 5 |
| Orientácia vchodu | V. SV |
| Podlaží | 2 |
| Počet obytných izieb | 5 |
| Obostavaný priestor | 690 m2 |
| Celková úžitková plocha | 177.2 m2 |
| Celková obytná plocha | 79.2 m2 |
| Zastavaná plocha | 129 m3 |
| Výška hrebeňa strechy | 6.8 |
| Sklon strechy | 22 |
| Cena projektu | € 2 900 |
| Cena stavby na kľúč | € 230 000 |


