Podlaží
Izieb
Osoby
Úžitková plocha
Cena projektu
Cena na kľúč
Cena stavby svojpomocne
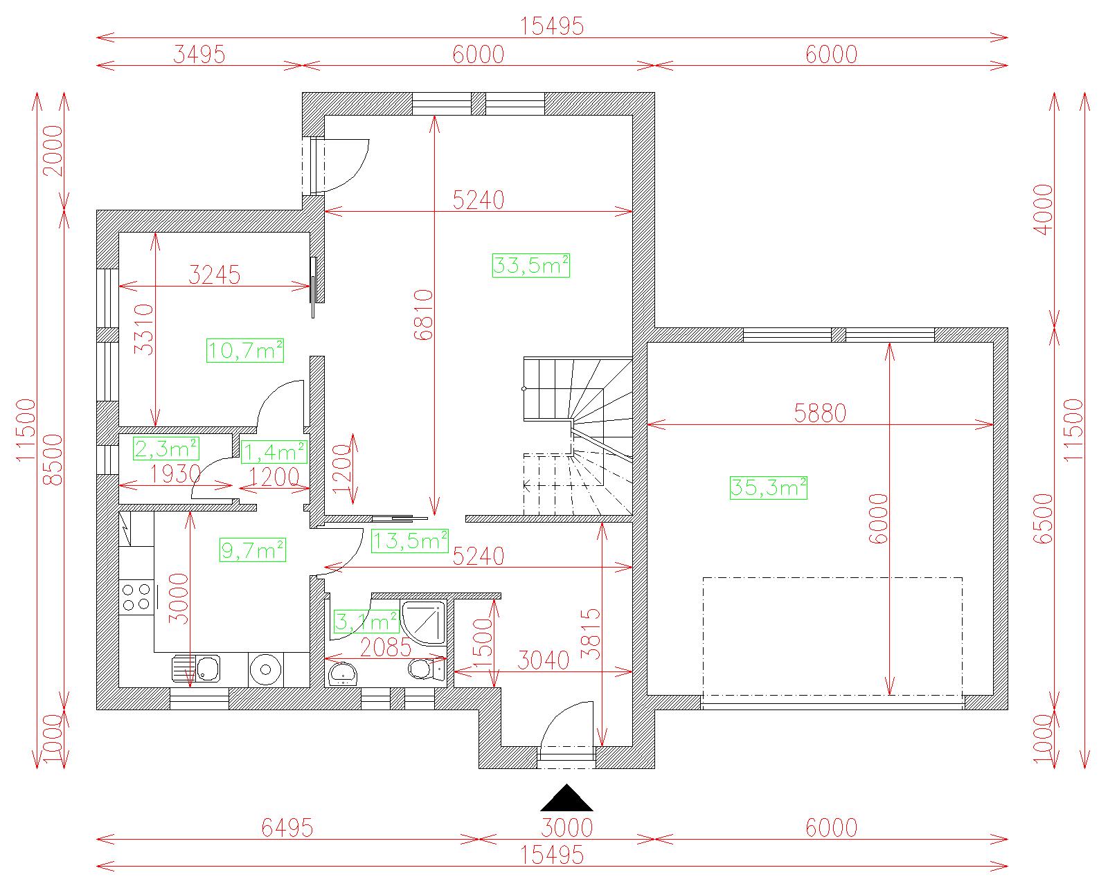
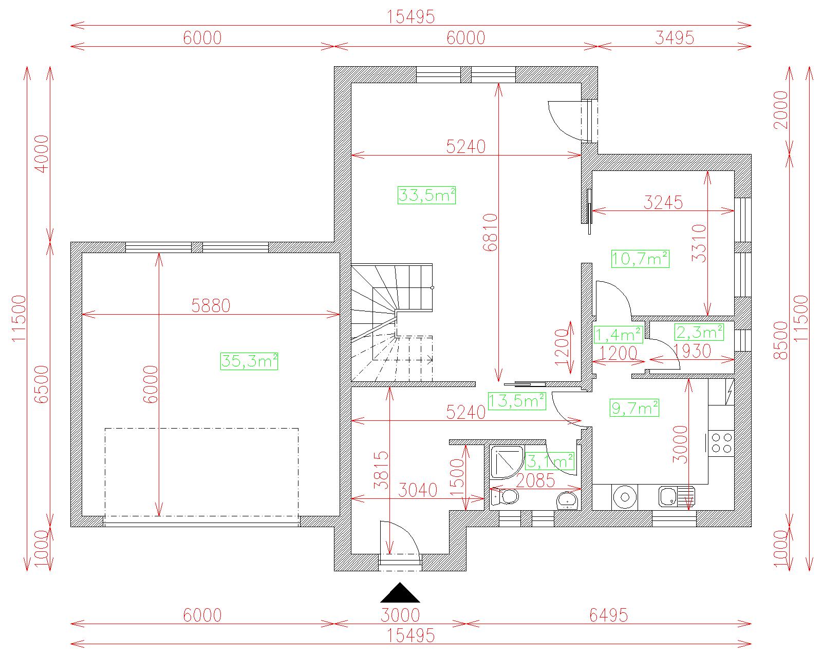
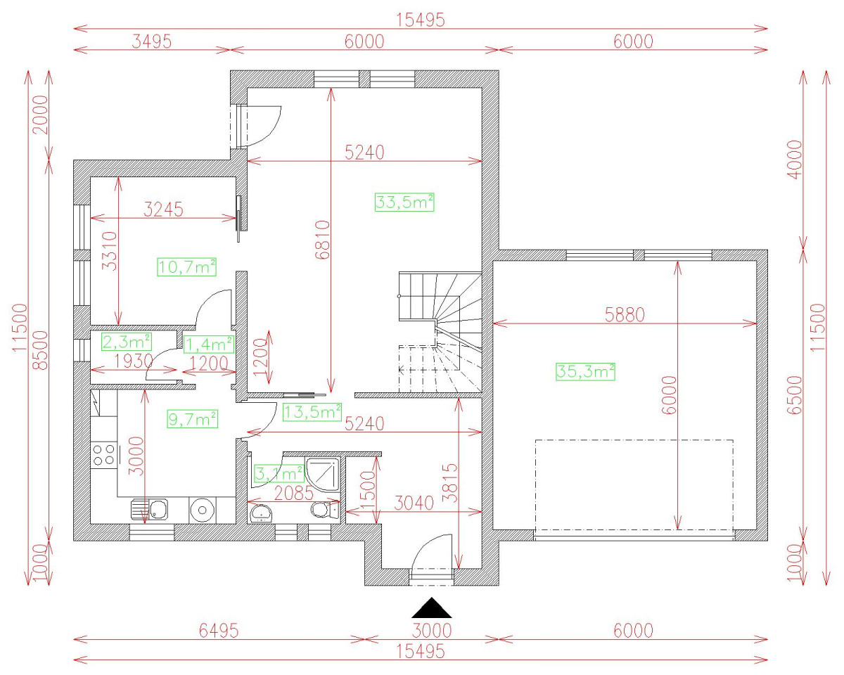
| Popis | Hodnota |
|---|---|
| Počet osôb | 4 |
| Orientácia vchodu | V.Z |
| Podlaží | 2 |
| Počet obytných izieb | 4 |
| Obostavaný priestor | 680 m2 |
| Celková úžitková plocha | 181.3 m2 |
| Celková obytná plocha | 75.4 m2 |
| Zastavaná plocha | 134.7 m3 |
| Výška hrebeňa strechy | 7.3 |
| Sklon strechy | 35 |
| Cena projektu | € 2 880 |
| Cena stavby na kľúč | € 240 000 |


