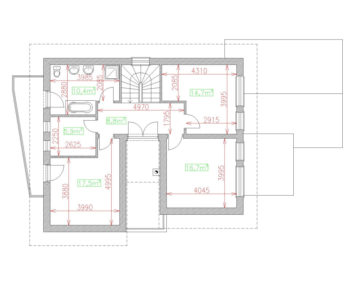
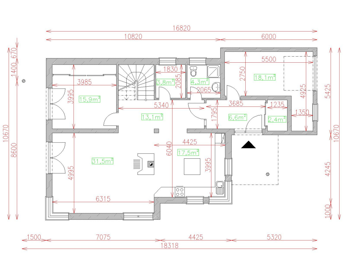
Podlaží
Izieb
Osoby
Úžitková plocha
Cena projektu
Cena na kľúč
Cena stavby svojpomocne
| Popis | Hodnota |
|---|---|
| Počet osôb | 5 |
| Orientácia vchodu | J.JV |
| Podlaží | 2 |
| Počet obytných izieb | 5 |
| Obostavaný priestor | 910 m2 |
| Celková úžitková plocha | 200.4 m2 |
| Celková obytná plocha | 101.8 m2 |
| Zastavaná plocha | 139.9 m3 |
| Výška hrebeňa strechy | 7.1 |
| Sklon strechy | 25 |
| Cena projektu | € 1 390 |
| Cena stavby na kľúč | € 250 000 |


