Podlaží
Izieb
Osoby
Úžitková plocha
Cena projektu
Cena na kľúč
Cena stavby svojpomocne
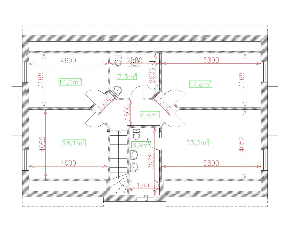
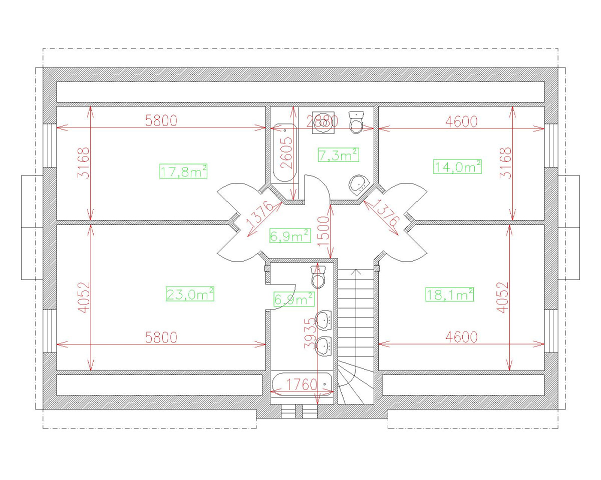
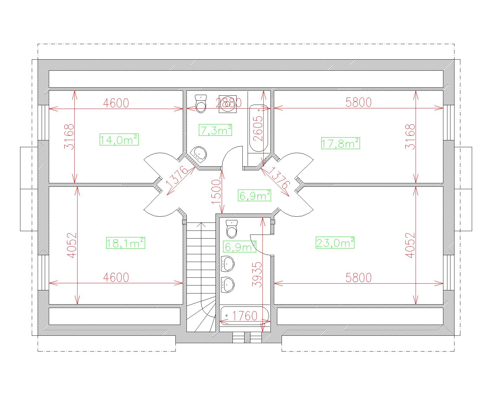
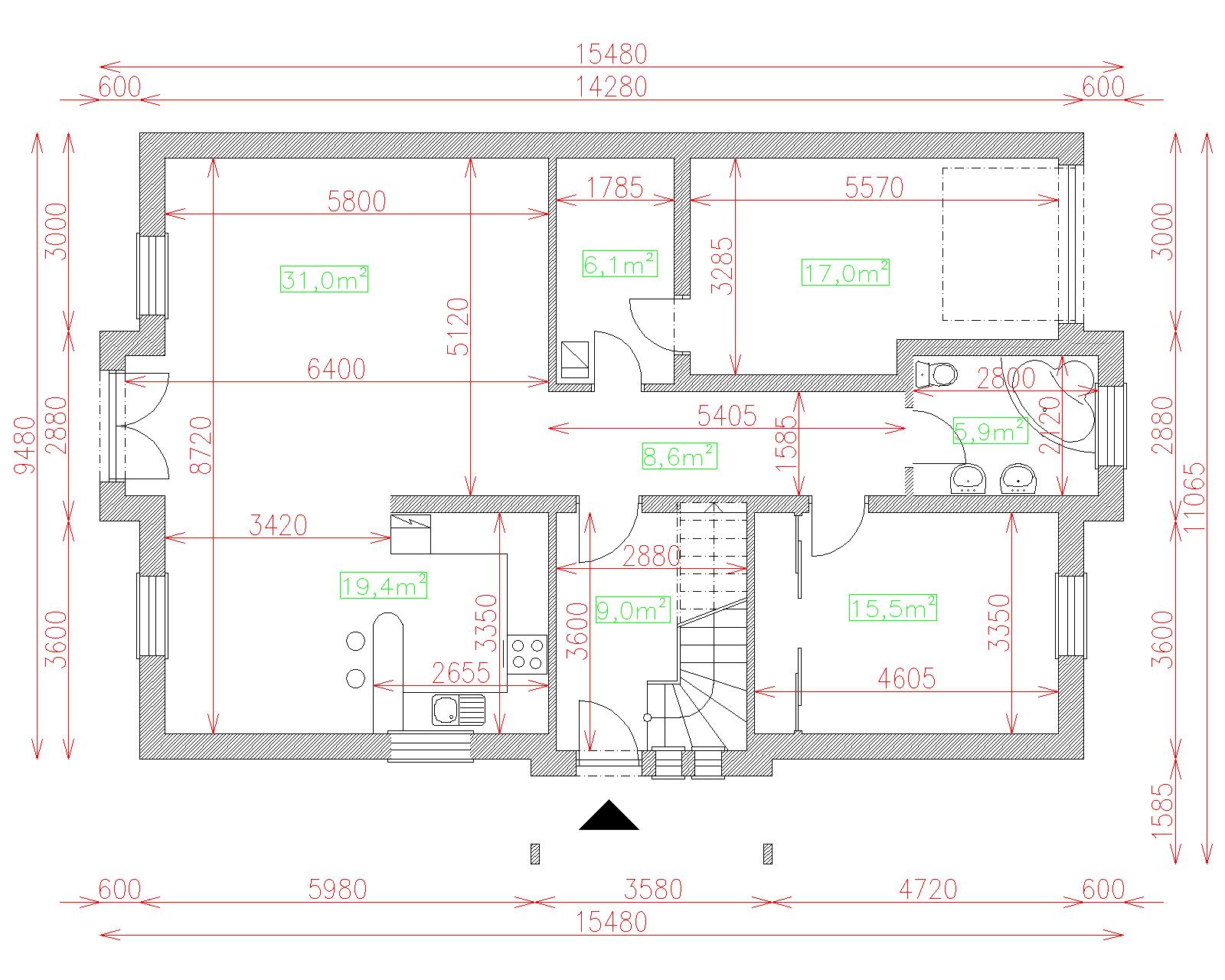
| Popis | Hodnota |
|---|---|
| Počet osôb | 5 |
| Orientácia vchodu | V.JV |
| Podlaží | 2 |
| Počet obytných izieb | 6 |
| Obostavaný priestor | 950 m2 |
| Celková úžitková plocha | 200.4 m2 |
| Celková obytná plocha | 123.5 m2 |
| Zastavaná plocha | 139.2 m3 |
| Výška hrebeňa strechy | 7.3 |
| Sklon strechy | 38 |
| Cena projektu | € 1 380 |
| Cena stavby na kľúč | € 248 000 |


