Podlaží
Izieb
Osoby
Úžitková plocha
Cena projektu
Cena na kľúč
Cena stavby svojpomocne
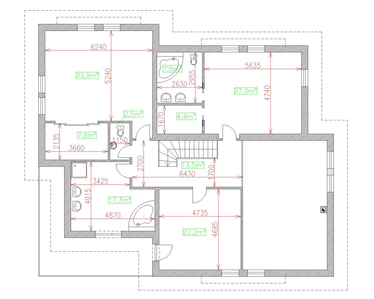
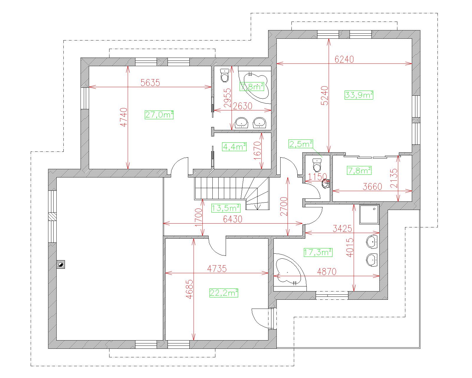
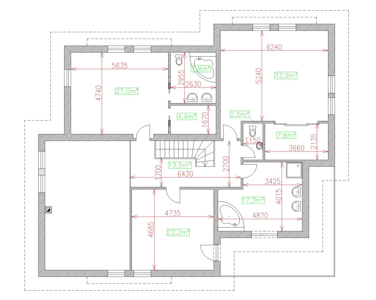
| Popis | Hodnota |
|---|---|
| Počet osôb | 5 |
| Orientácia vchodu | J. JV |
| Podlaží | 2 |
| Počet obytných izieb | 4 |
| Obostavaný priestor | 1750 m2 |
| Celková úžitková plocha | 339.5 m2 |
| Celková obytná plocha | 174.5 m2 |
| Zastavaná plocha | 208.5 m3 |
| Výška hrebeňa strechy | 10 |
| Sklon strechy | 35 |
| Cena projektu | € 3 120 |
| Cena stavby na kľúč | € 370 000 |


