Podlaží
Izieb
Osoby
Úžitková plocha
Cena projektu
Cena na kľúč
Cena stavby svojpomocne
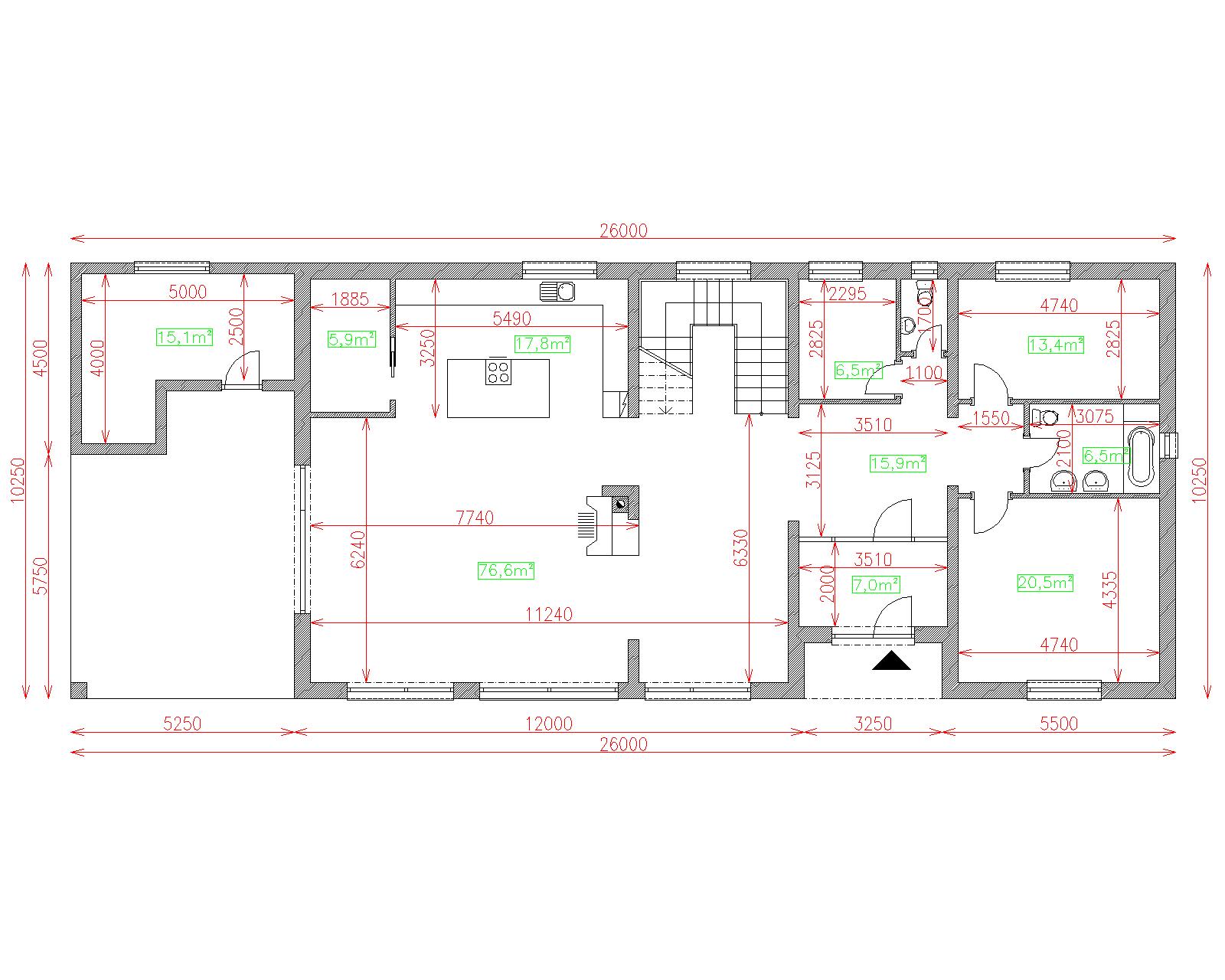
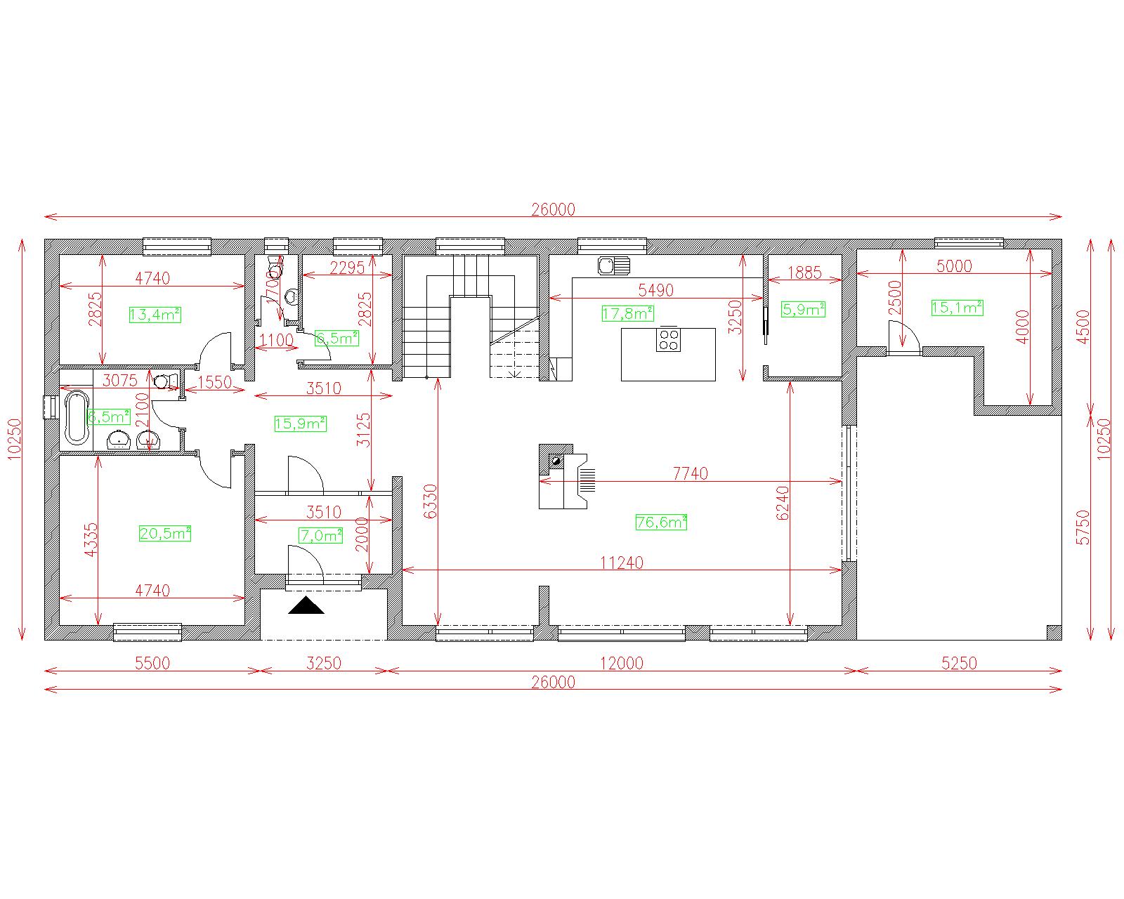
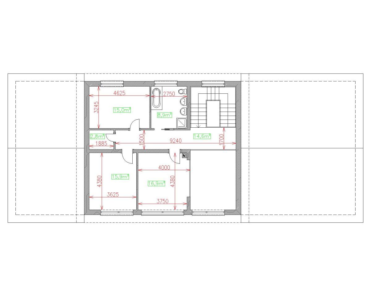
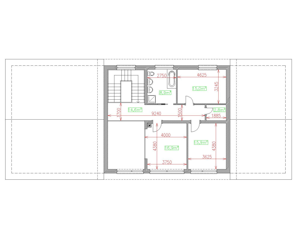
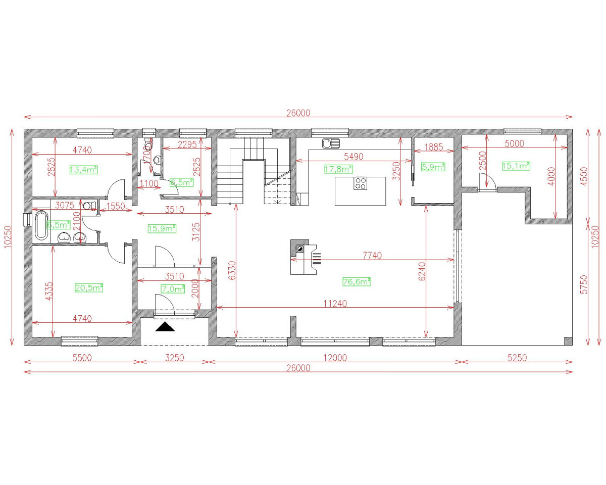
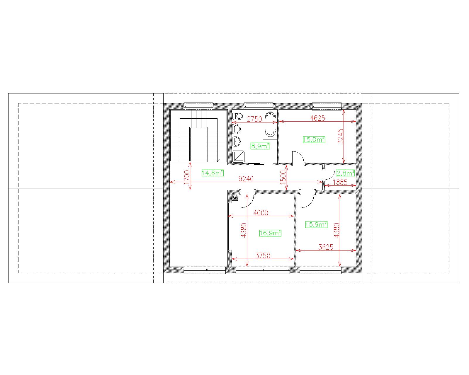
| Popis | Hodnota |
|---|---|
| Počet osôb | 6 |
| Orientácia vchodu | J. JZ |
| Podlaží | 2 |
| Počet obytných izieb | 6 |
| Obostavaný priestor | 1250 m2 |
| Celková úžitková plocha | 270.5 m2 |
| Celková obytná plocha | 158.6 m2 |
| Zastavaná plocha | 231.8 m3 |
| Výška hrebeňa strechy | 7.1 |
| Sklon strechy | 20 |
| Cena projektu | € 3 500 |
| Cena stavby na kľúč | € 410 000 |


