Podlaží
Izieb
Osoby
Úžitková plocha
Cena projektu
Cena na kľúč
Cena stavby svojpomocne
| Popis | Hodnota |
|---|---|
| Počet osôb | 4 |
| Orientácia vchodu | V. JV |
| Podlaží | 2 |
| Počet obytných izieb | 4 |
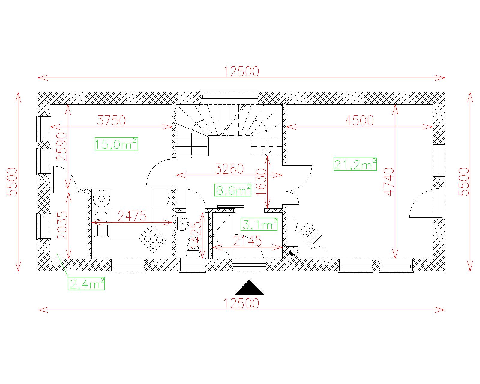
| Obostavaný priestor | 430 m2 |
| Celková úžitková plocha | 107 m2 |
| Celková obytná plocha | 51.8 m2 |
| Zastavaná plocha | 68.8 m3 |
| Výška hrebeňa strechy | 6.3 |
| Sklon strechy | 10 |
| Cena projektu | € 1 230 |
| Cena stavby na kľúč | € 124 000 |


