Podlaží
Izieb
Osoby
Úžitková plocha
Cena projektu
Cena na kľúč
Cena stavby svojpomocne
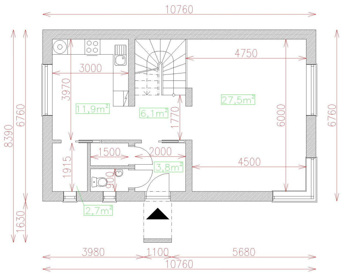
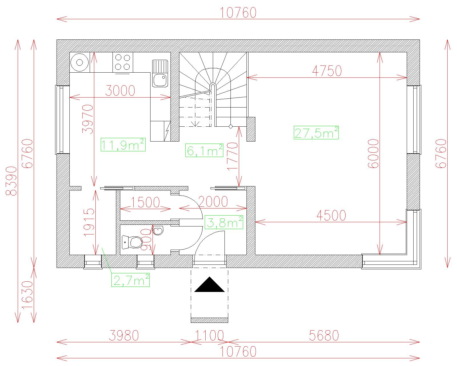
| Popis | Hodnota |
|---|---|
| Počet osôb | 4 |
| Orientácia vchodu | J. JV |
| Podlaží | 2 |
| Počet obytných izieb | 3 |
| Obostavaný priestor | 420 m2 |
| Celková úžitková plocha | 111 m2 |
| Celková obytná plocha | 57.3 m2 |
| Zastavaná plocha | 72.7 m3 |
| Výška hrebeňa strechy | 6.6 |
| Sklon strechy | 30 |
| Cena projektu | € 1 280 |
| Cena stavby na kľúč | € 131 000 |


