Podlaží
Izieb
Osoby
Úžitková plocha
Cena projektu
Cena na kľúč
Cena stavby svojpomocne
| Popis | Hodnota |
|---|---|
| Počet osôb | 4 |
| Orientácia vchodu | Z.JZ |
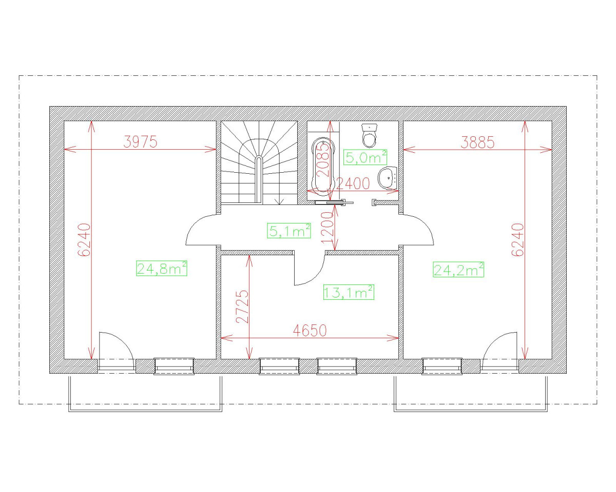
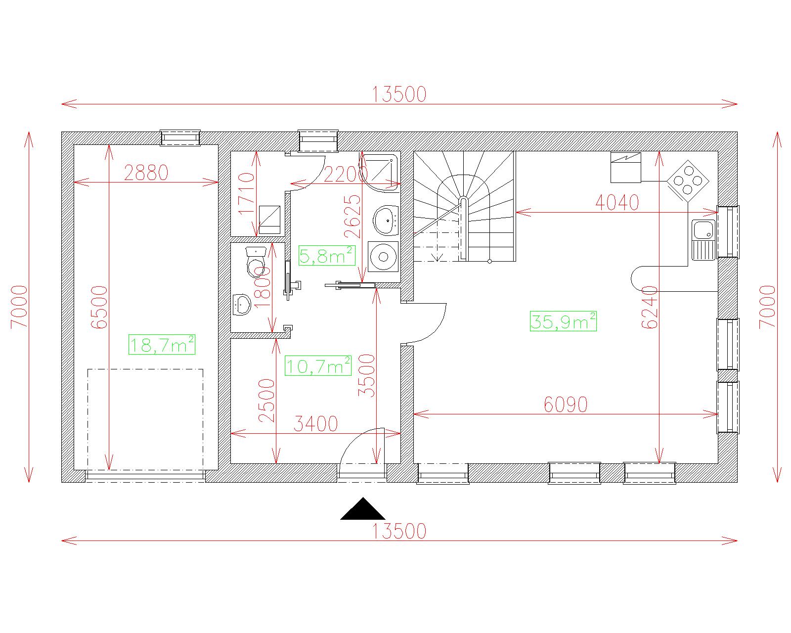
| Podlaží | 2 |
| Počet obytných izieb | 4 |
| Obostavaný priestor | 590 m2 |
| Celková úžitková plocha | 158.1 m2 |
| Celková obytná plocha | 92 m2 |
| Zastavaná plocha | 94.5 m3 |
| Výška hrebeňa strechy | 7.2 |
| Sklon strechy | 38 |
| Cena projektu | € 1 280 |
| Cena stavby na kľúč | € 169 000 |


