Podlaží
Izieb
Osoby
Úžitková plocha
Cena projektu
Cena na kľúč
Cena stavby svojpomocne
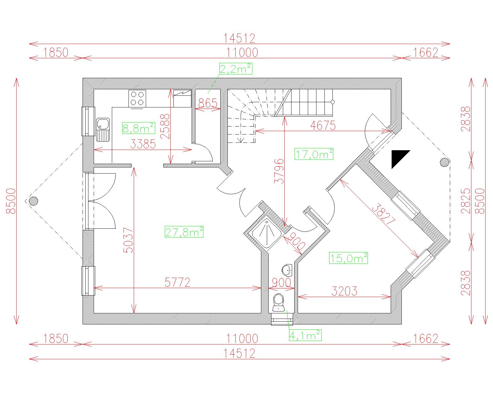
| Popis | Hodnota |
|---|---|
| Počet osôb | 5 |
| Orientácia vchodu | V.JV |
| Podlaží | 2 |
| Počet obytných izieb | 5 |
| Obostavaný priestor | 580 m2 |
| Celková úžitková plocha | 159.7 m2 |
| Celková obytná plocha | 89.9 m2 |
| Zastavaná plocha | 95 m3 |
| Výška hrebeňa strechy | 7.7 |
| Sklon strechy | 38 |
| Cena projektu | € 1 290 |
| Cena stavby na kľúč | € 170 000 |


