Podlaží
Izieb
Osoby
Úžitková plocha
Cena projektu
Cena na kľúč
Cena stavby svojpomocne
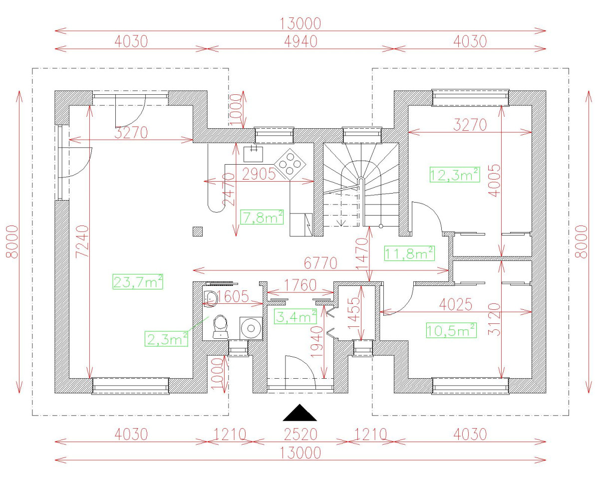
| Popis | Hodnota |
|---|---|
| Počet osôb | 6 |
| Orientácia vchodu | S.SV |
| Podlaží | 2 |
| Počet obytných izieb | 6 |
| Obostavaný priestor | 590 m2 |
| Celková úžitková plocha | 141.4 m2 |
| Celková obytná plocha | 87.2 m2 |
| Zastavaná plocha | 96.5 m3 |
| Výška hrebeňa strechy | 7.2 |
| Sklon strechy | 20 |
| Cena projektu | € 1 300 |
| Cena stavby na kľúč | € 173 000 |


