Podlaží
Izieb
Osoby
Úžitková plocha
Cena projektu
Cena na kľúč
Cena stavby svojpomocne
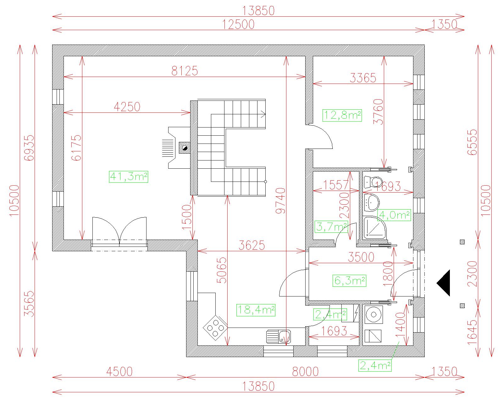
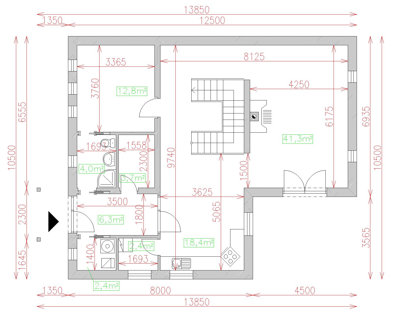
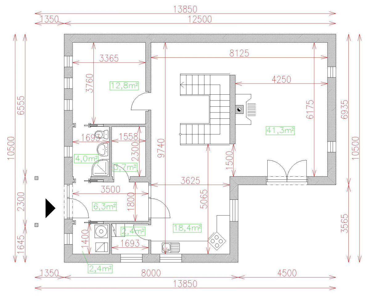
| Popis | Hodnota |
|---|---|
| Počet osôb | 4 |
| Orientácia vchodu | V. JV |
| Podlaží | 2 |
| Počet obytných izieb | 4 |
| Obostavaný priestor | 730 m2 |
| Celková úžitková plocha | 164 m2 |
| Celková obytná plocha | 105.4 m2 |
| Zastavaná plocha | 115.2 m3 |
| Výška hrebeňa strechy | 7.3 |
| Sklon strechy | 35 |
| Cena projektu | € 2 780 |
| Cena stavby na kľúč | € 206 000 |


