Podlaží
Izieb
Osoby
Úžitková plocha
Cena projektu
Cena na kľúč
Cena stavby svojpomocne
| Popis | Hodnota |
|---|---|
| Počet osôb | 4 |
| Orientácia vchodu | JZ |
| Podlaží | 2 |
| Počet obytných izieb | 4 |
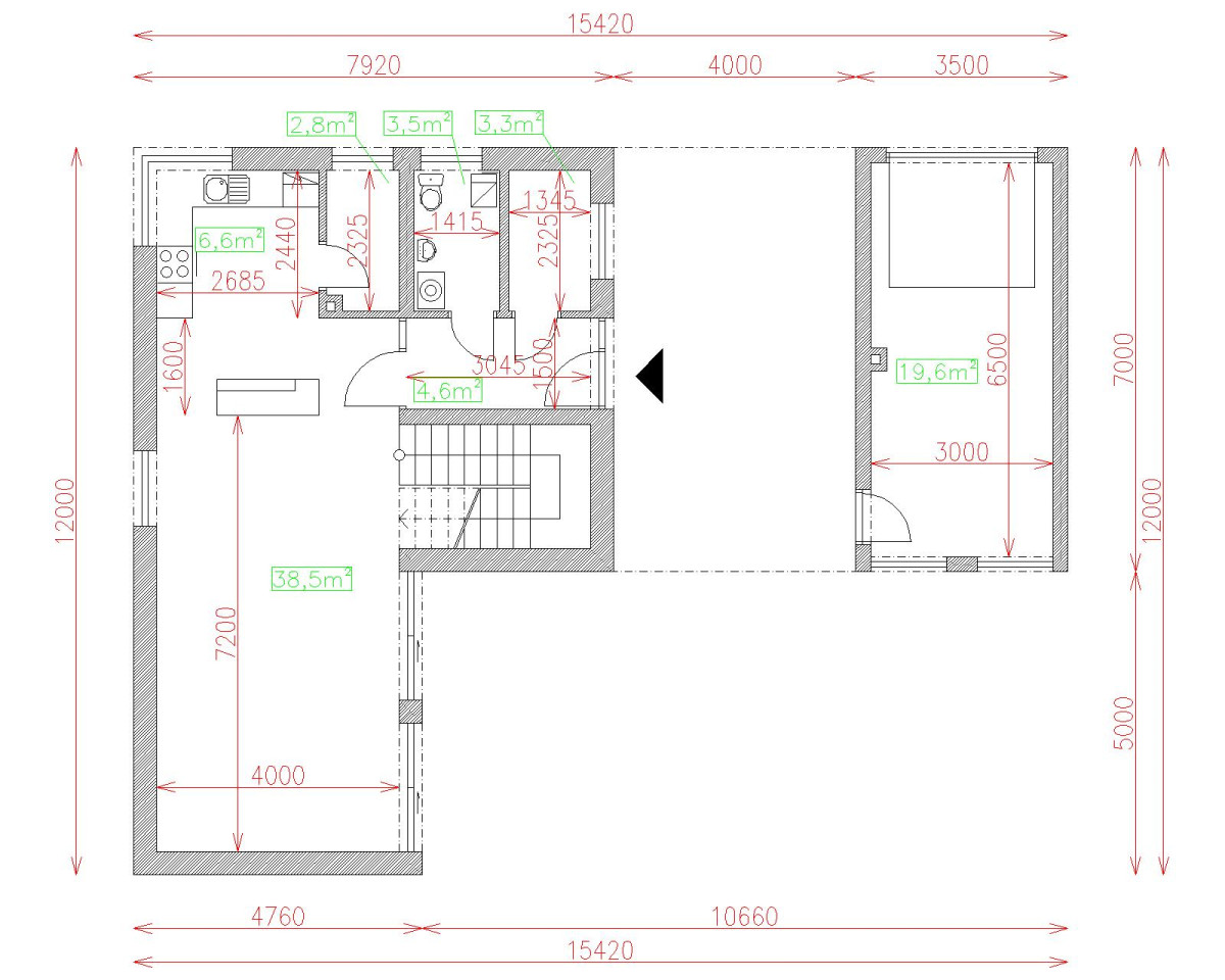
| Obostavaný priestor | 640 m2 |
| Celková úžitková plocha | 192.8 m2 |
| Celková obytná plocha | 74.1 m2 |
| Zastavaná plocha | 103.7 m3 |
| Výška hrebeňa strechy | 6.4 |
| Sklon strechy | 0 |
| Cena projektu | € 1 370 |
| Cena stavby na kľúč | € 186 000 |


