Podlaží
Izieb
Osoby
Úžitková plocha
Cena projektu
Cena na kľúč
Cena stavby svojpomocne
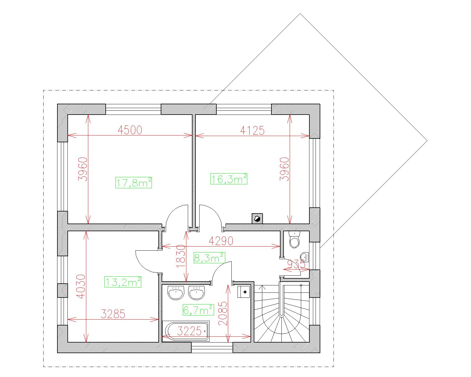
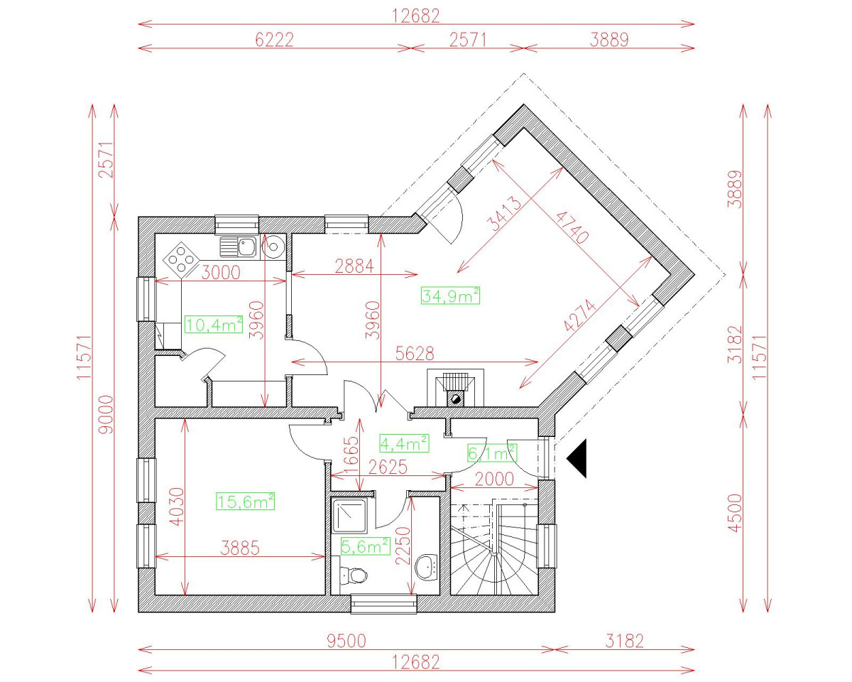
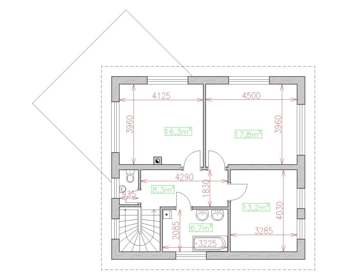
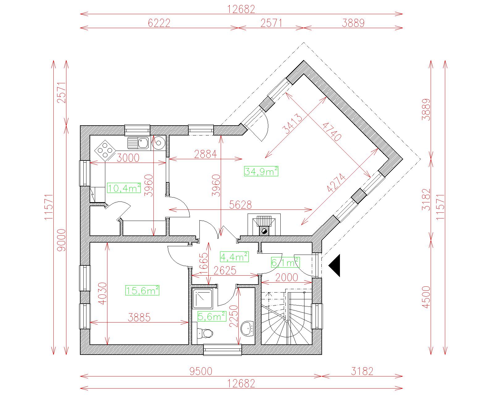
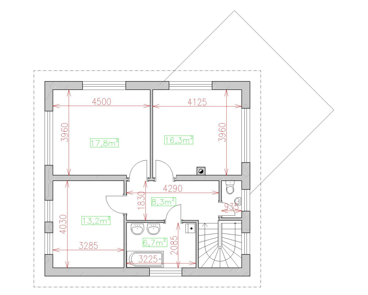
| Popis | Hodnota |
|---|---|
| Počet osôb | 5 |
| Orientácia vchodu | S.SV |
| Podlaží | 2 |
| Počet obytných izieb | 5 |
| Obostavaný priestor | 543 m2 |
| Celková úžitková plocha | 147.2 m2 |
| Celková obytná plocha | 98.4 m2 |
| Zastavaná plocha | 100.5 m3 |
| Výška hrebeňa strechy | 7.4 |
| Sklon strechy | 10 |
| Cena projektu | € 1 330 |
| Cena stavby na kľúč | € 180 000 |


