Podlaží
Izieb
Osoby
Úžitková plocha
Cena projektu
Cena na kľúč
Cena stavby svojpomocne
| Popis | Hodnota |
|---|---|
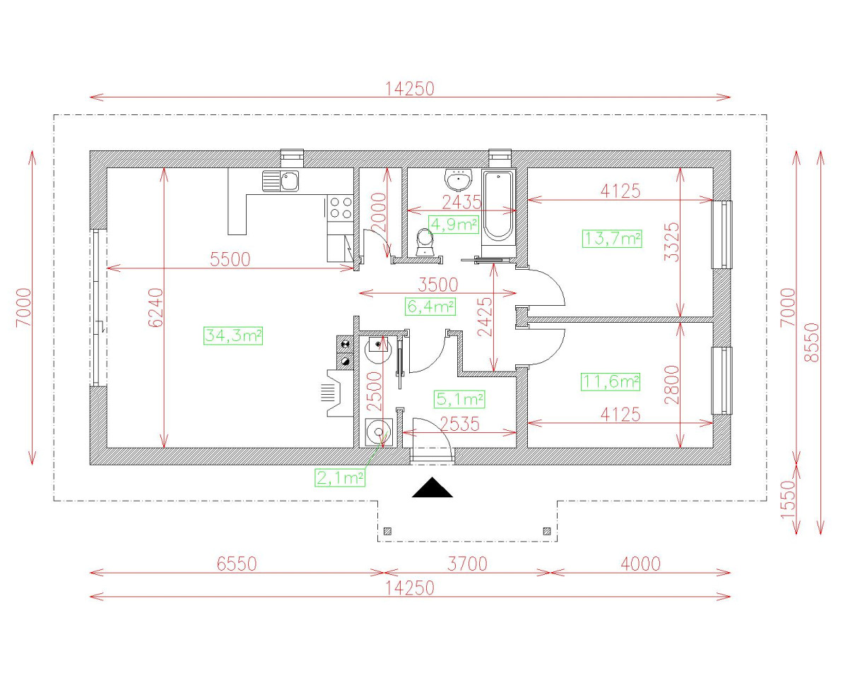
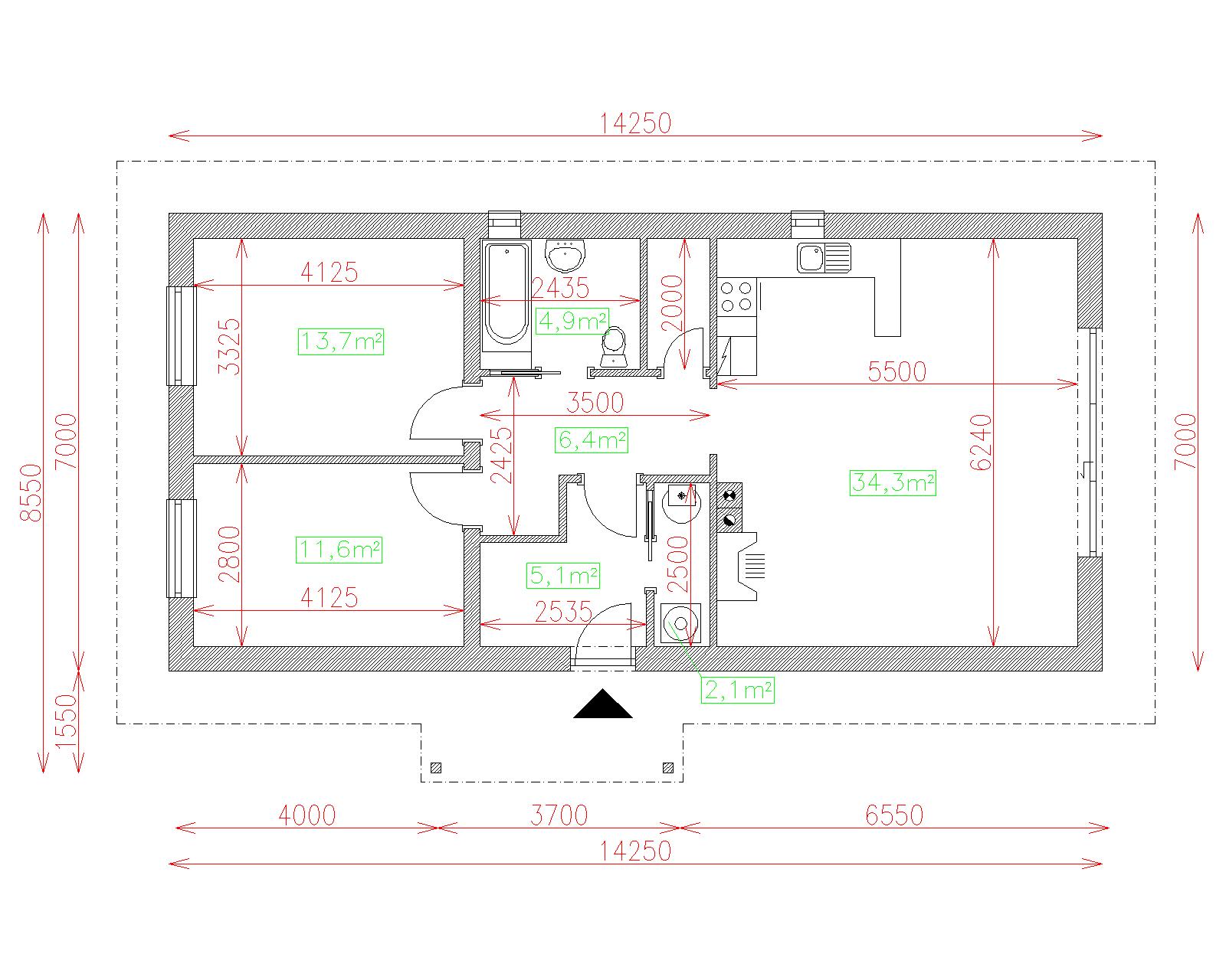
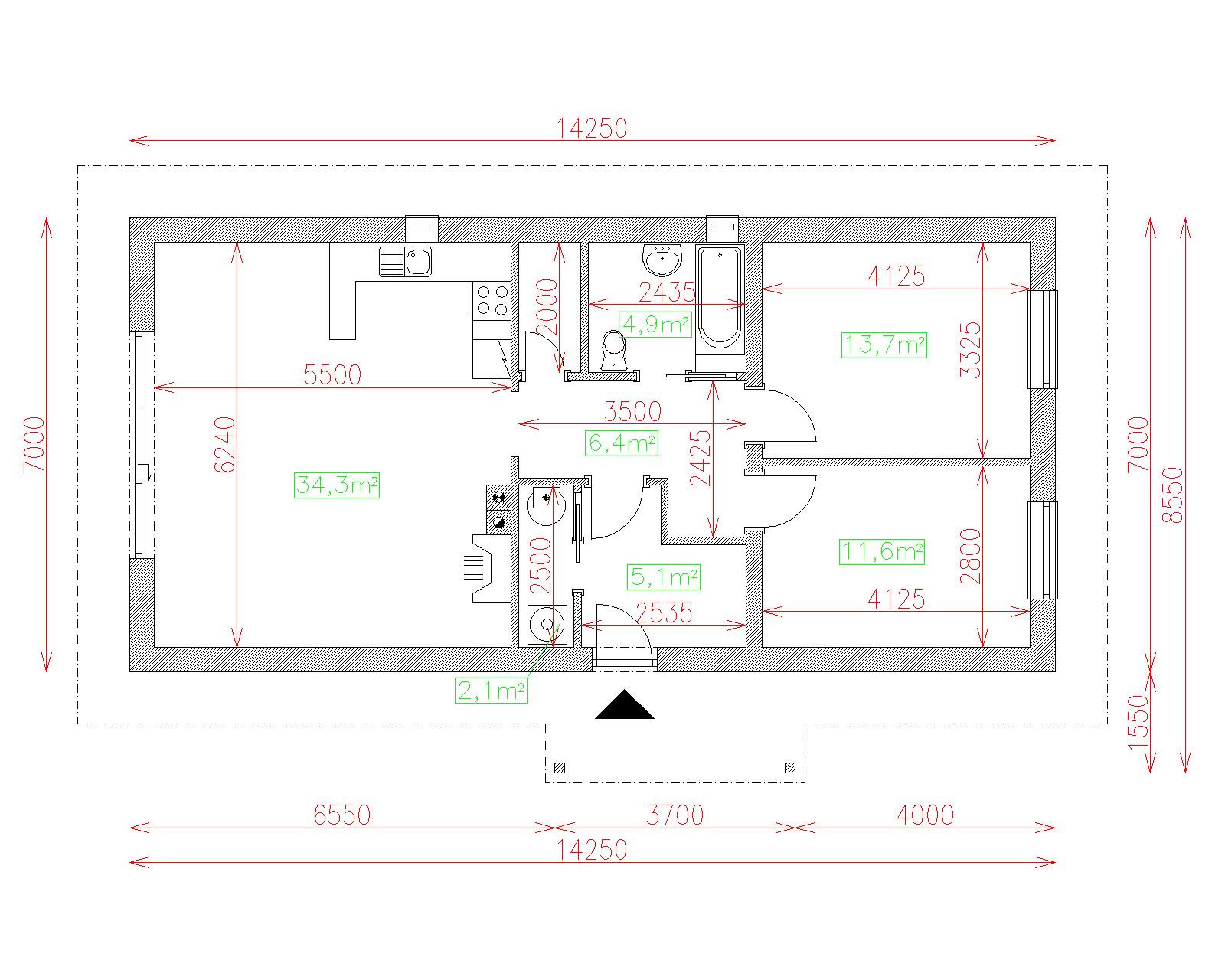
| Počet osôb | 3 |
| Orientácia vchodu | J. JV |
| Podlaží | 1 |
| Počet obytných izieb | 3 |
| Obostavaný priestor | 450 m2 |
| Celková úžitková plocha | 79.7 m2 |
| Celková obytná plocha | 59.3 m2 |
| Zastavaná plocha | 99.8 m3 |
| Výška hrebeňa strechy | 4.5 |
| Sklon strechy | 10 |
| Cena projektu | € 2 530 |
| Cena stavby na kľúč | € 107 000 |


