Podlaží
Izieb
Osoby
Úžitková plocha
Cena projektu
Cena na kľúč
Cena stavby svojpomocne
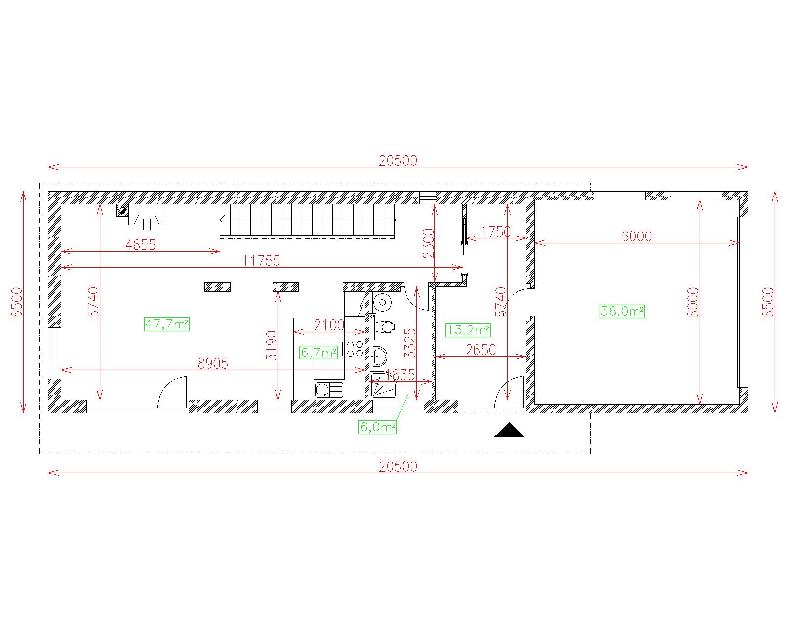
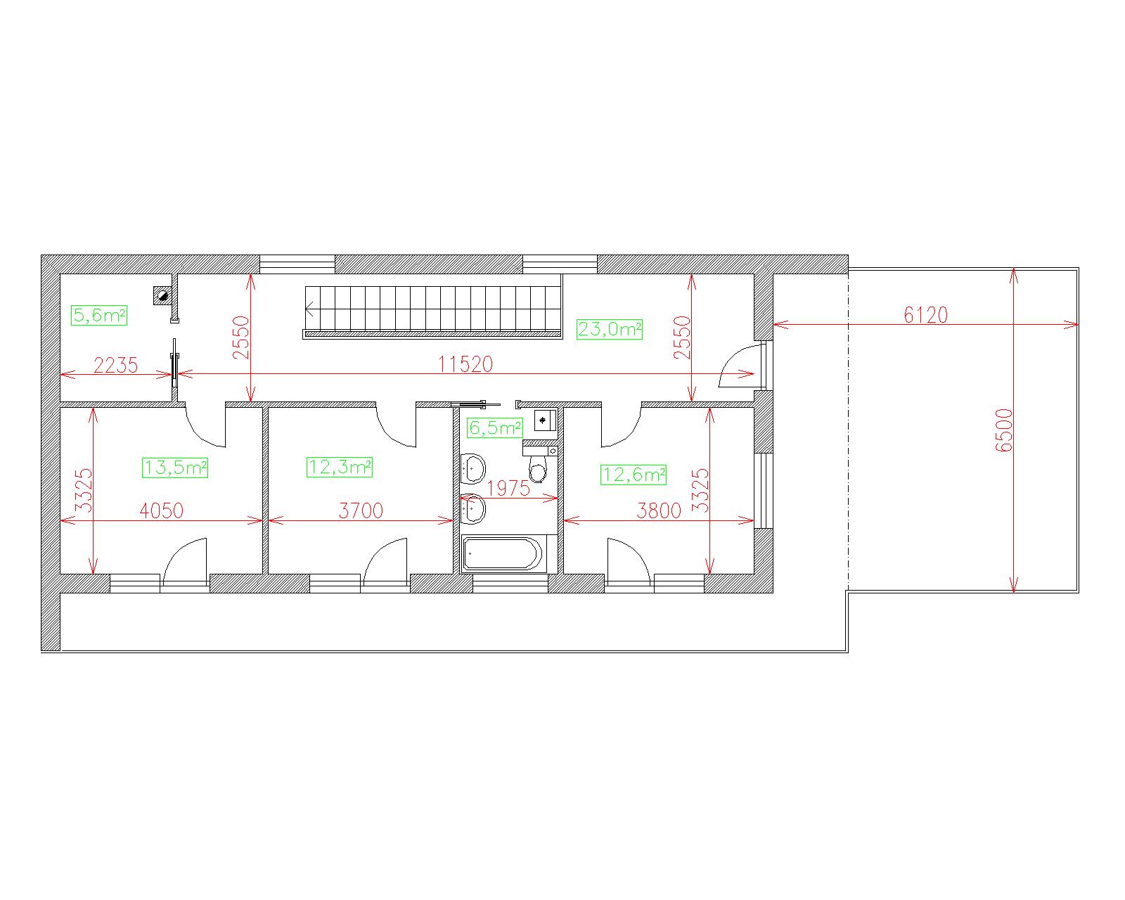
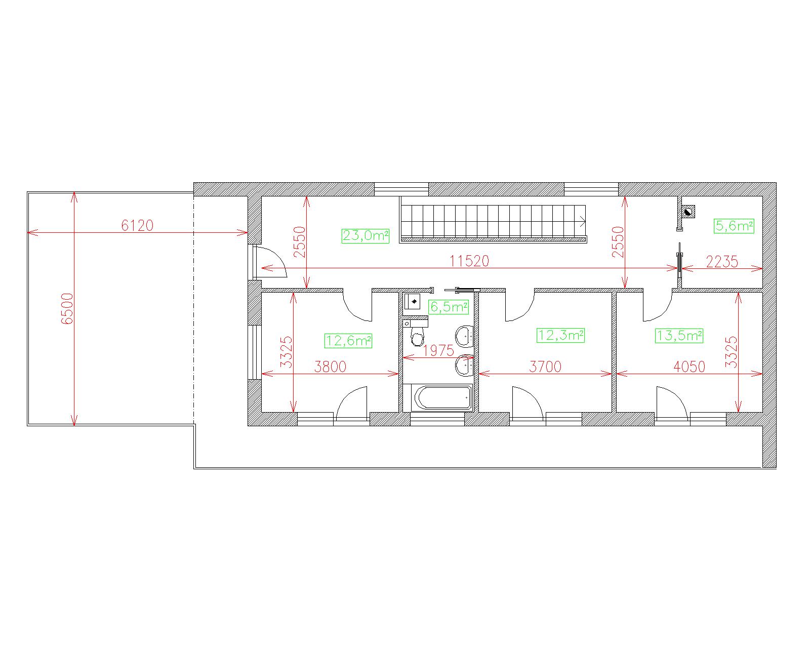
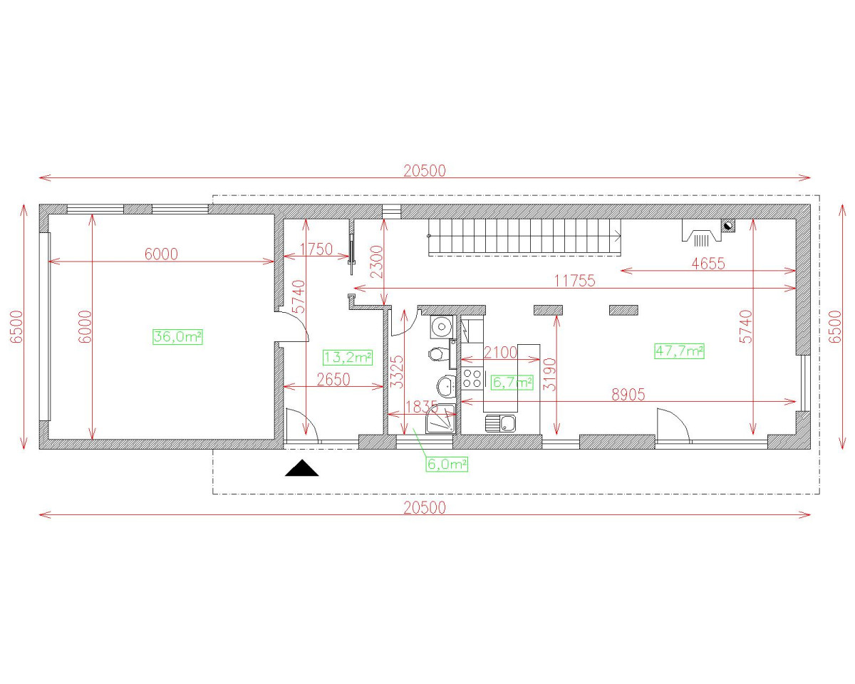
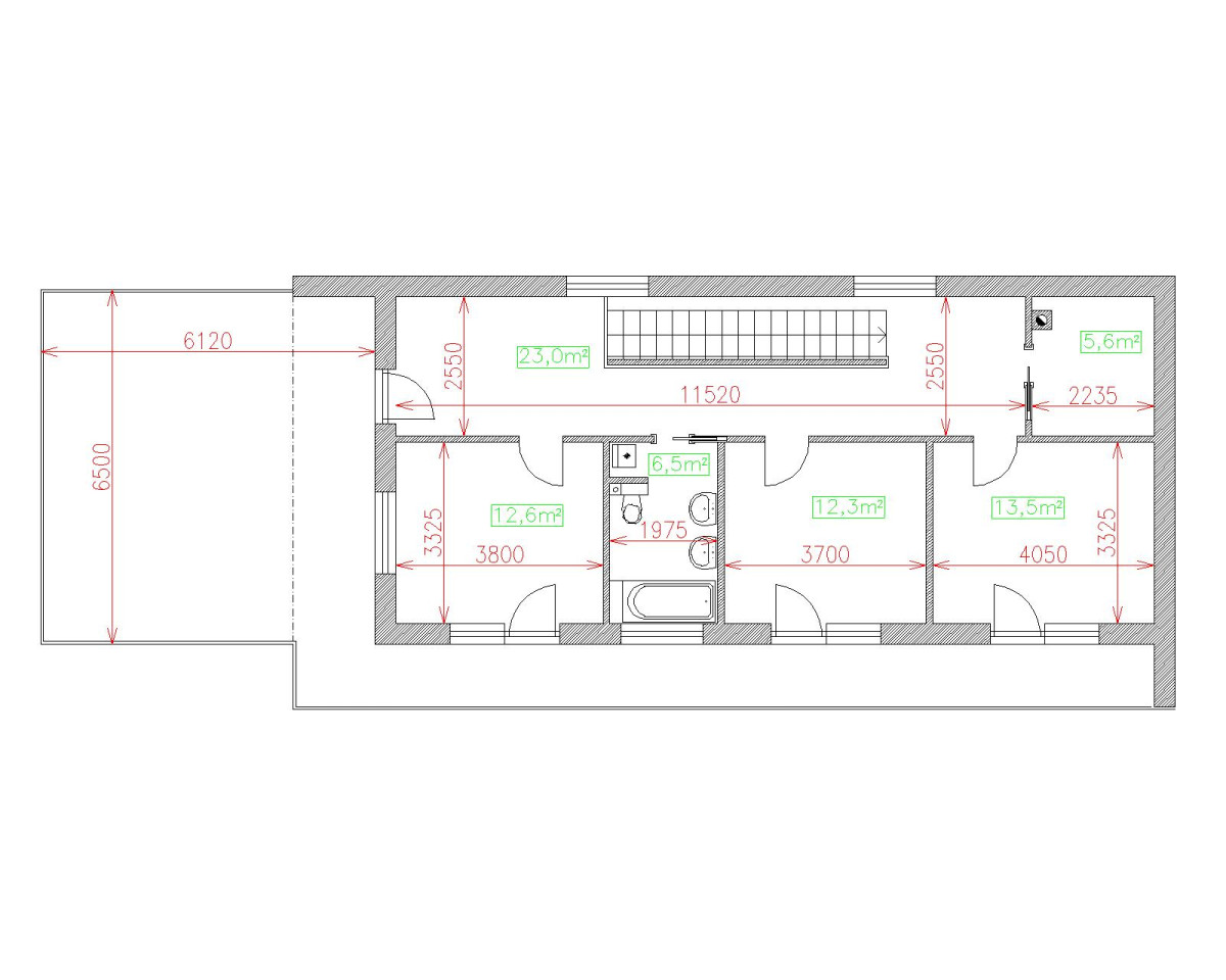
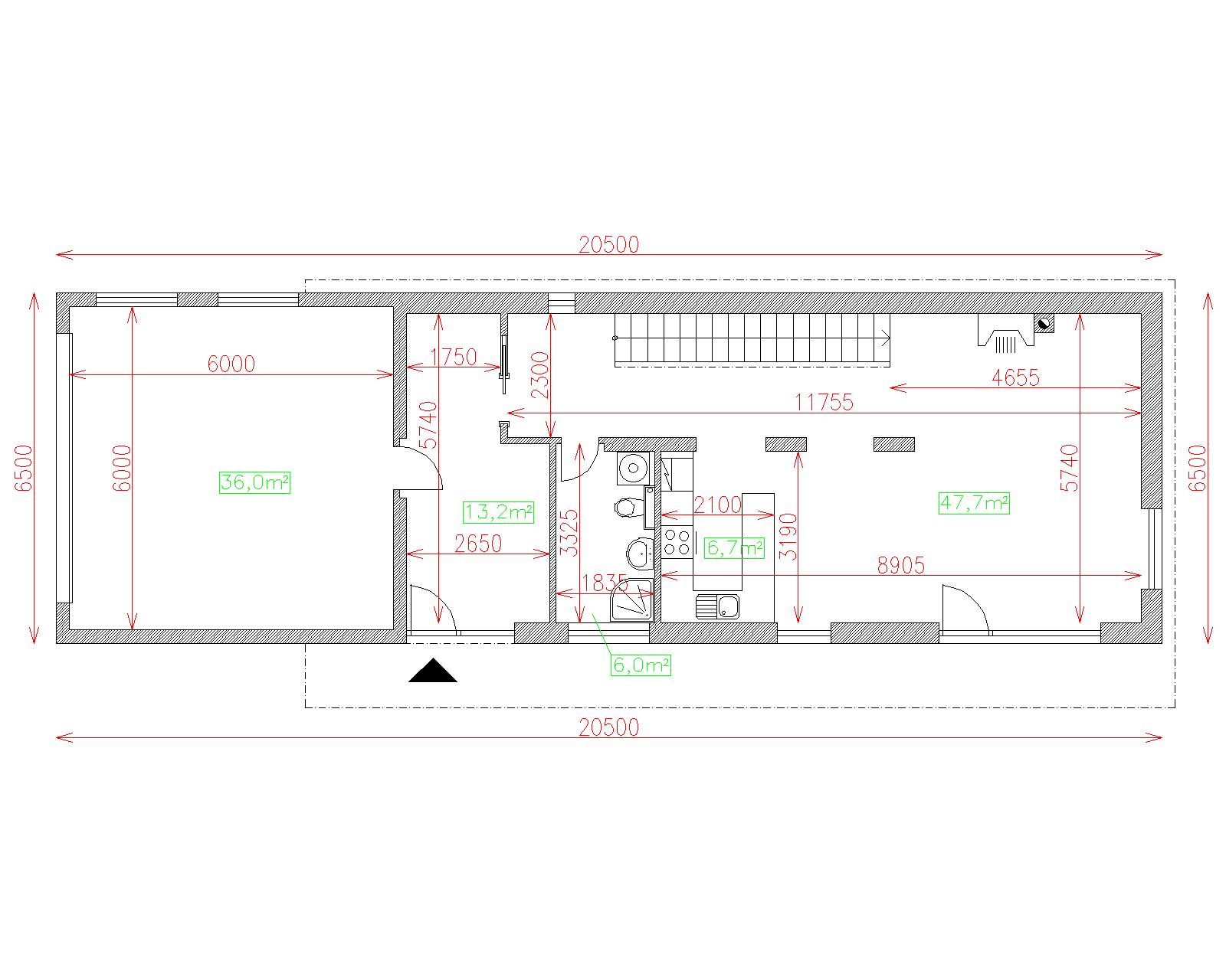
| Popis | Hodnota |
|---|---|
| Počet osôb | 4 |
| Orientácia vchodu | J |
| Podlaží | 2 |
| Počet obytných izieb | 4 |
| Obostavaný priestor | 750 m2 |
| Celková úžitková plocha | 223.9 m2 |
| Celková obytná plocha | 70.7 m2 |
| Zastavaná plocha | 133.3 m3 |
| Výška hrebeňa strechy | 6.6 |
| Sklon strechy | 7 |
| Cena projektu | € 2 760 |
| Cena stavby na kľúč | € 238 000 |


