Podlaží
Izieb
Osoby
Úžitková plocha
Cena projektu
Cena na kľúč
Cena stavby svojpomocne
| Popis | Hodnota |
|---|---|
| Počet osôb | 6 |
| Orientácia vchodu | S.SV |
| Podlaží | 2 |
| Počet obytných izieb | 6 |
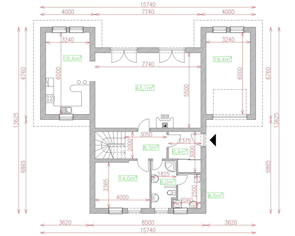
| Obostavaný priestor | 840 m2 |
| Celková úžitková plocha | 205.5 m2 |
| Celková obytná plocha | 119.9 m2 |
| Zastavaná plocha | 153.1 m3 |
| Výška hrebeňa strechy | 6.8 |
| Sklon strechy | 5 |
| Cena projektu | € 1 380 |
| Cena stavby na kľúč | € 273 000 |


