Podlaží
Izieb
Osoby
Úžitková plocha
Cena projektu
Cena na kľúč
Cena stavby svojpomocne
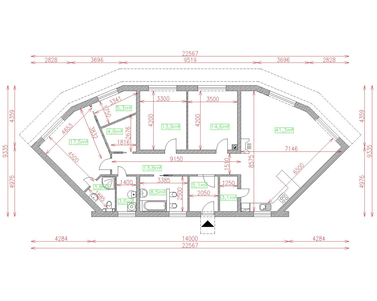
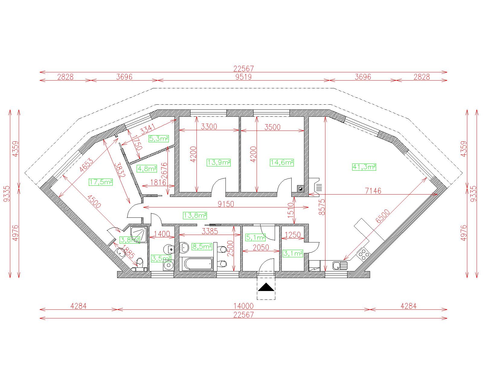
| Popis | Hodnota |
|---|---|
| Počet osôb | 4 |
| Orientácia vchodu | S. SV |
| Podlaží | 1 |
| Počet obytných izieb | 4 |
| Obostavaný priestor | 750 m2 |
| Celková úžitková plocha | 135.2 m2 |
| Celková obytná plocha | 87.3 m2 |
| Zastavaná plocha | 163.9 m3 |
| Výška hrebeňa strechy | 5 |
| Sklon strechy | 10 |
| Cena projektu | € 2 770 |
| Cena stavby na kľúč | € 172 000 |


