Podlaží
Izieb
Osoby
Úžitková plocha
Cena projektu
Cena na kľúč
Cena stavby svojpomocne
| Popis | Hodnota |
|---|---|
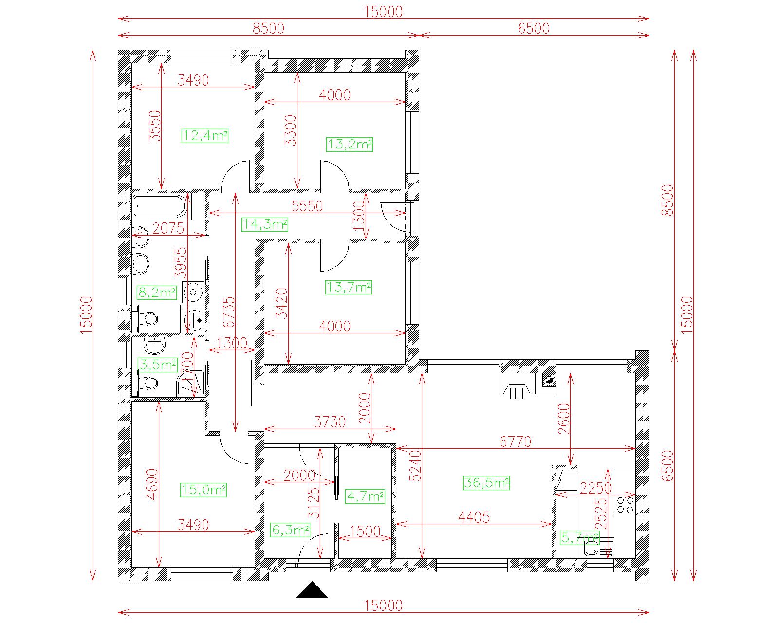
| Počet osôb | 5 |
| Orientácia vchodu | SV |
| Podlaží | 1 |
| Počet obytných izieb | 5 |
| Obostavaný priestor | 680 m2 |
| Celková úžitková plocha | 133.7 m2 |
| Celková obytná plocha | 91 m2 |
| Zastavaná plocha | 164.7 m3 |
| Výška hrebeňa strechy | 5 |
| Sklon strechy | 0 |
| Cena projektu | € 2 780 |
| Cena stavby na kľúč | € 172 000 |


