Podlaží
Izieb
Osoby
Úžitková plocha
Cena projektu
Cena na kľúč
Cena stavby svojpomocne
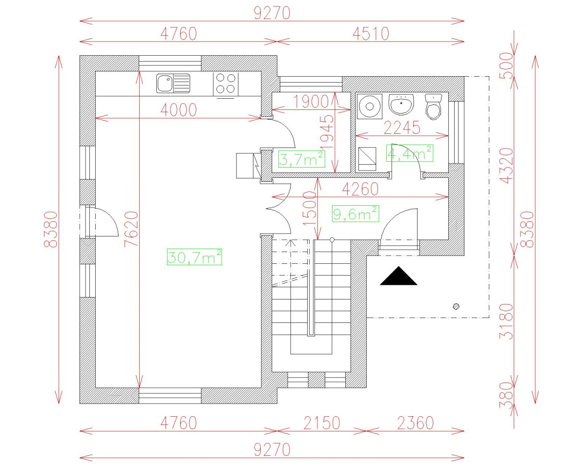
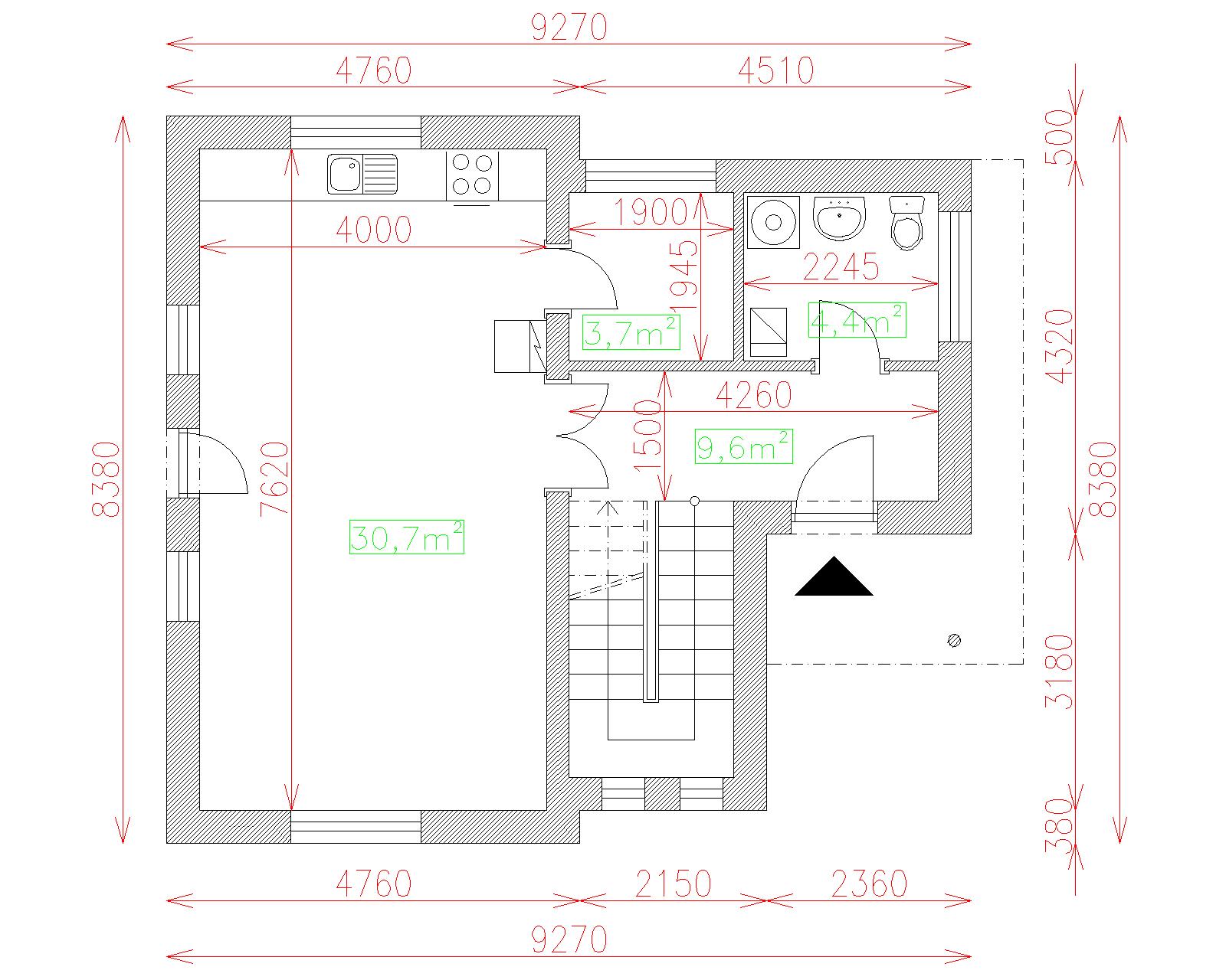
| Popis | Hodnota |
|---|---|
| Počet osôb | 4 |
| Orientácia vchodu | V.SV |
| Podlaží | 2 |
| Počet obytných izieb | 4 |
| Obostavaný priestor | 423 m2 |
| Celková úžitková plocha | 110.7 m2 |
| Celková obytná plocha | 66.3 m2 |
| Zastavaná plocha | 66.2 m3 |
| Výška hrebeňa strechy | 7.4 |
| Sklon strechy | 10 |
| Cena projektu | € 1 240 |
| Cena stavby na kľúč | € 119 500 |


