Podlaží
Izieb
Osoby
Úžitková plocha
Cena projektu
Cena na kľúč
Cena stavby svojpomocne
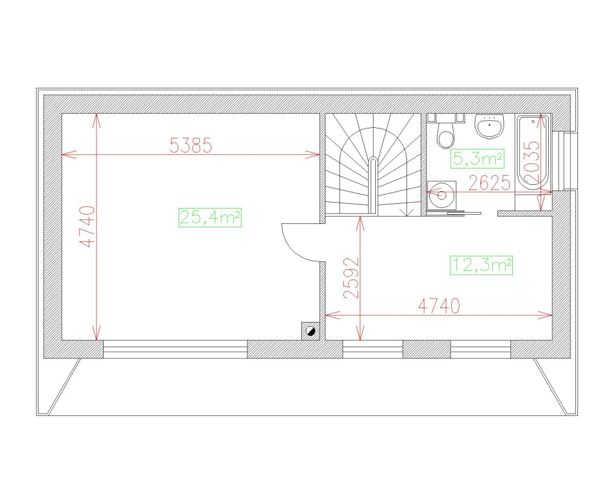
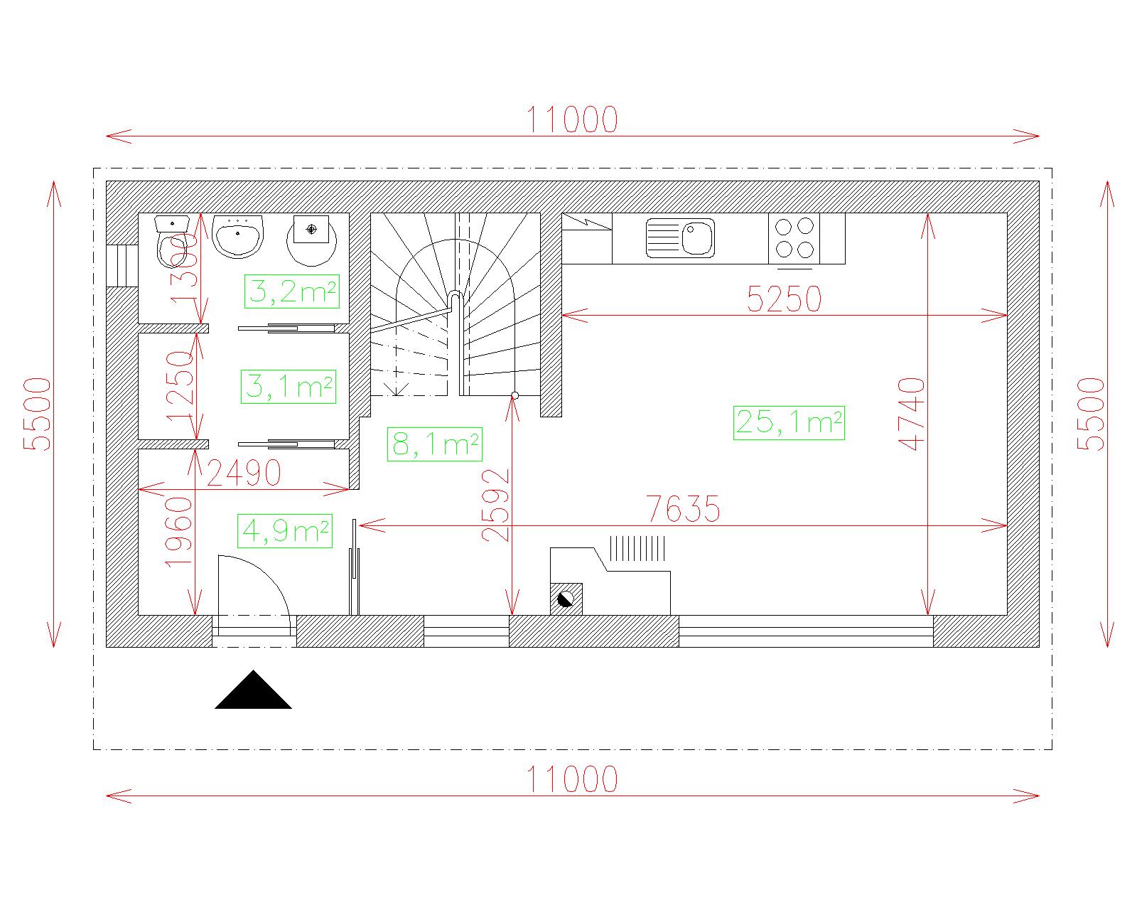
| Popis | Hodnota |
|---|---|
| Počet osôb | 4 |
| Orientácia vchodu | Z. JZ |
| Podlaží | 2 |
| Počet obytných izieb | 3 |
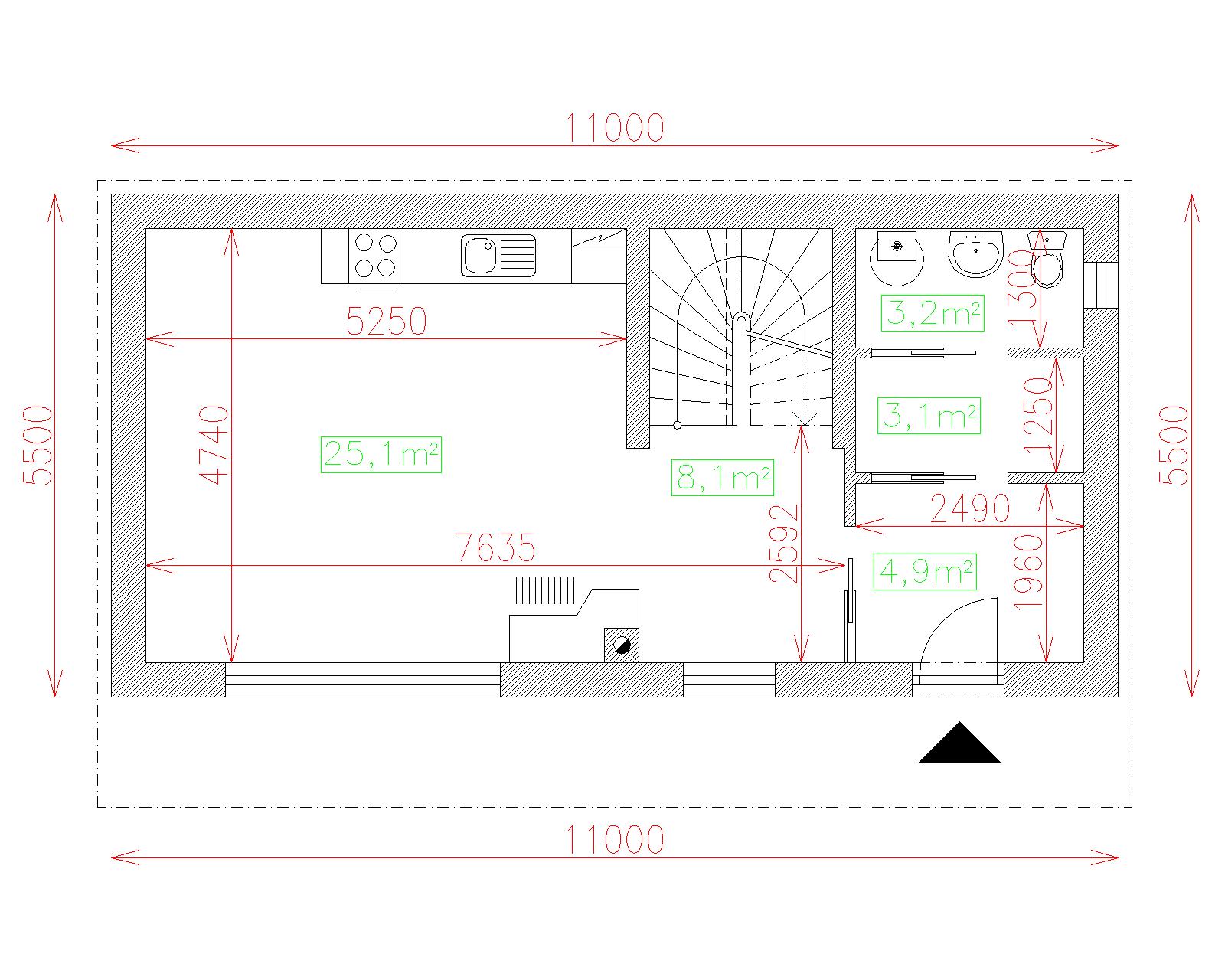
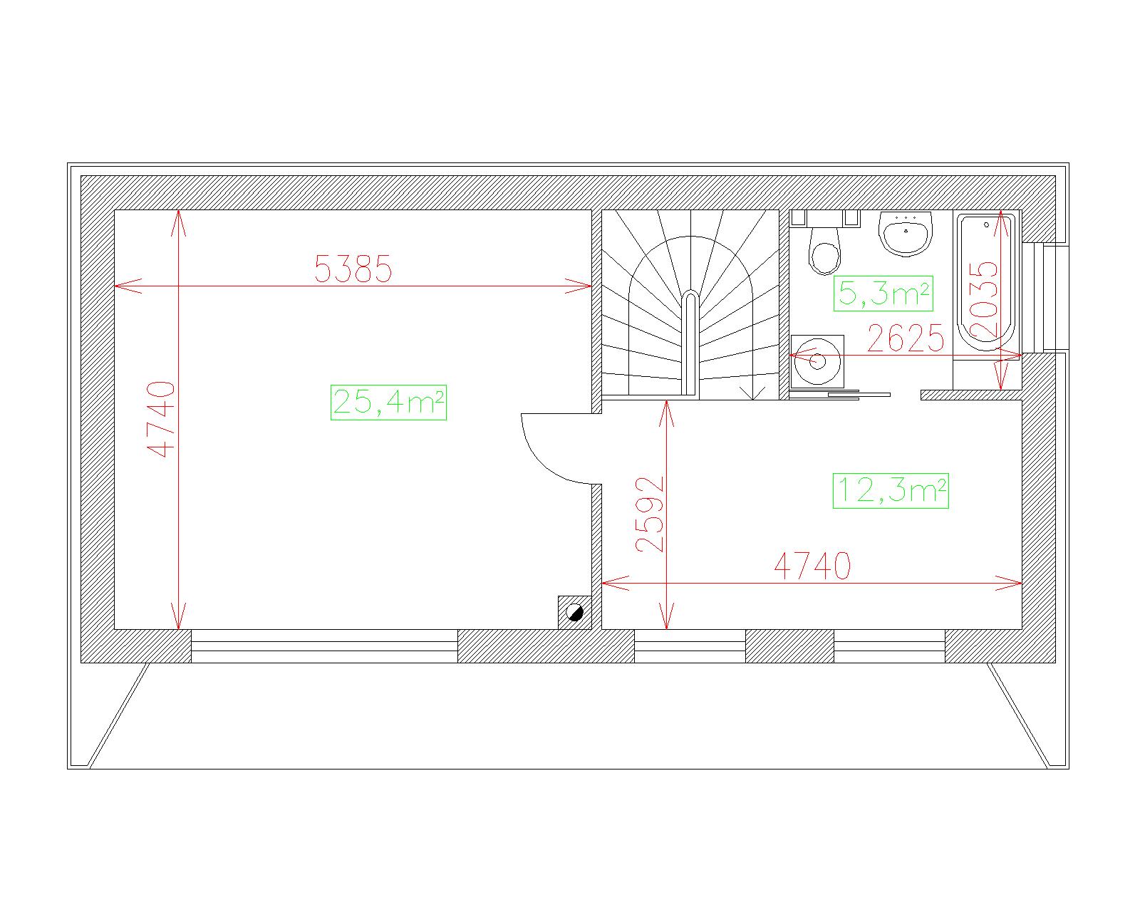
| Obostavaný priestor | 440 m2 |
| Celková úžitková plocha | 91.6 m2 |
| Celková obytná plocha | 62.5 m2 |
| Zastavaná plocha | 60.5 m3 |
| Výška hrebeňa strechy | 6.8 |
| Sklon strechy | 8 |
| Cena projektu | € 2 370 |
| Cena stavby na kľúč | € 109 500 |


