Podlaží
Izieb
Osoby
Úžitková plocha
Cena projektu
Cena na kľúč
Cena stavby svojpomocne
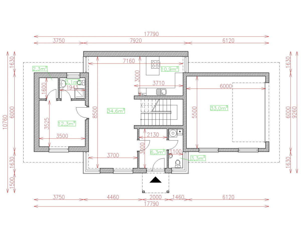
| Popis | Hodnota |
|---|---|
| Počet osôb | 4 |
| Orientácia vchodu | S.SZ |
| Podlaží | 2 |
| Počet obytných izieb | 4 |
| Obostavaný priestor | 735 m2 |
| Celková úžitková plocha | 165.3 m2 |
| Celková obytná plocha | 76.9 m2 |
| Zastavaná plocha | 132.6 m3 |
| Výška hrebeňa strechy | 7.5 |
| Sklon strechy | 17 |
| Cena projektu | € 1 360 |
| Cena stavby na kľúč | € 197 000 |


