Podlaží
Izieb
Osoby
Úžitková plocha
Cena projektu
Cena na kľúč
Cena stavby svojpomocne
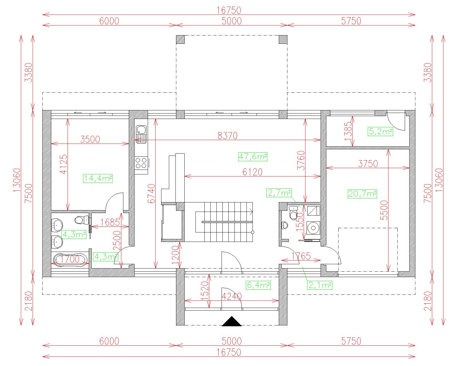
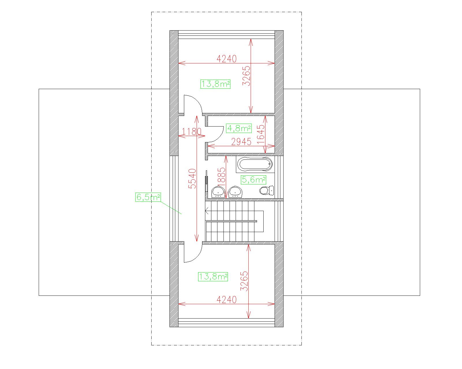
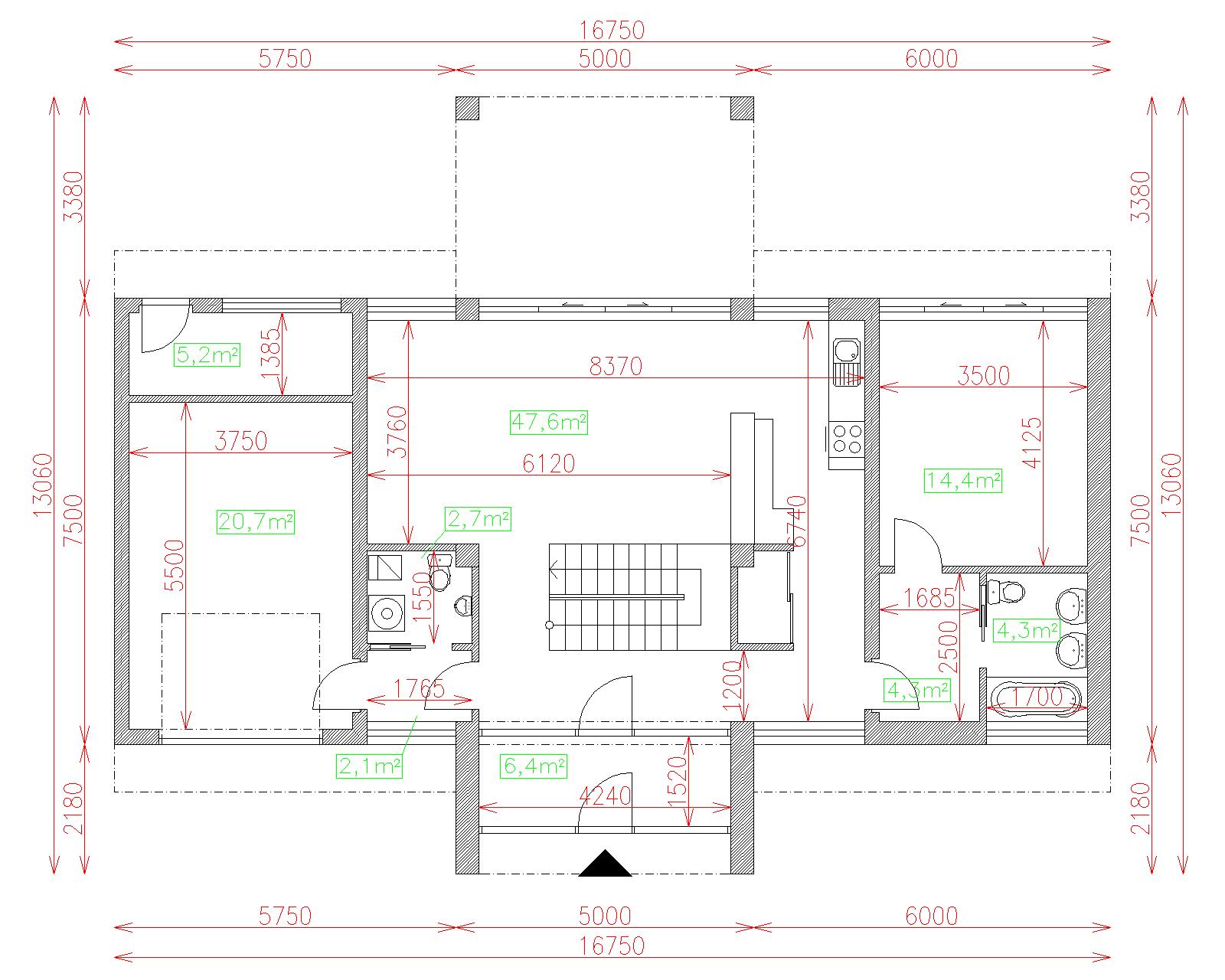
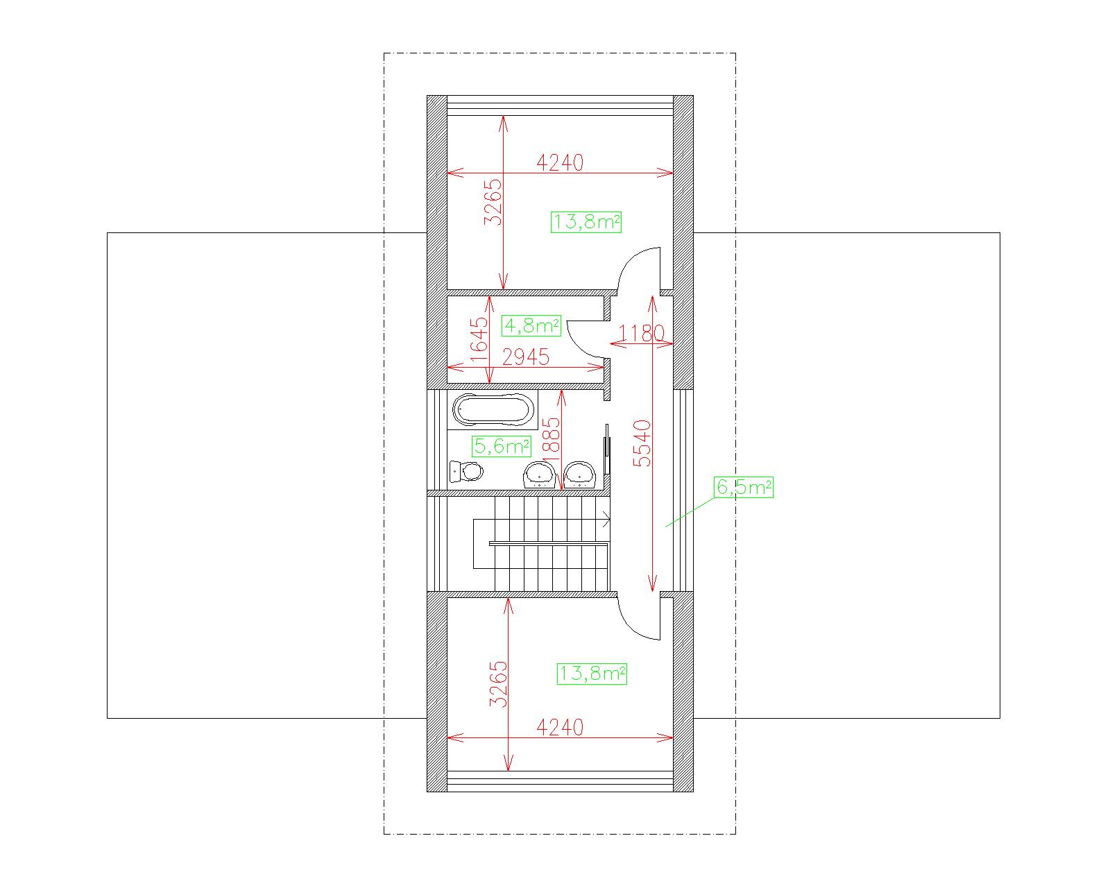
| Popis | Hodnota |
|---|---|
| Počet osôb | 4 |
| Orientácia vchodu | V |
| Podlaží | 2 |
| Počet obytných izieb | 4 |
| Obostavaný priestor | 720 m2 |
| Celková úžitková plocha | 157.6 m2 |
| Celková obytná plocha | 77.6 m2 |
| Zastavaná plocha | 133.6 m3 |
| Výška hrebeňa strechy | 7.3 |
| Sklon strechy | 17 |
| Cena projektu | € 2 630 |
| Cena stavby na kľúč | € 238 000 |


