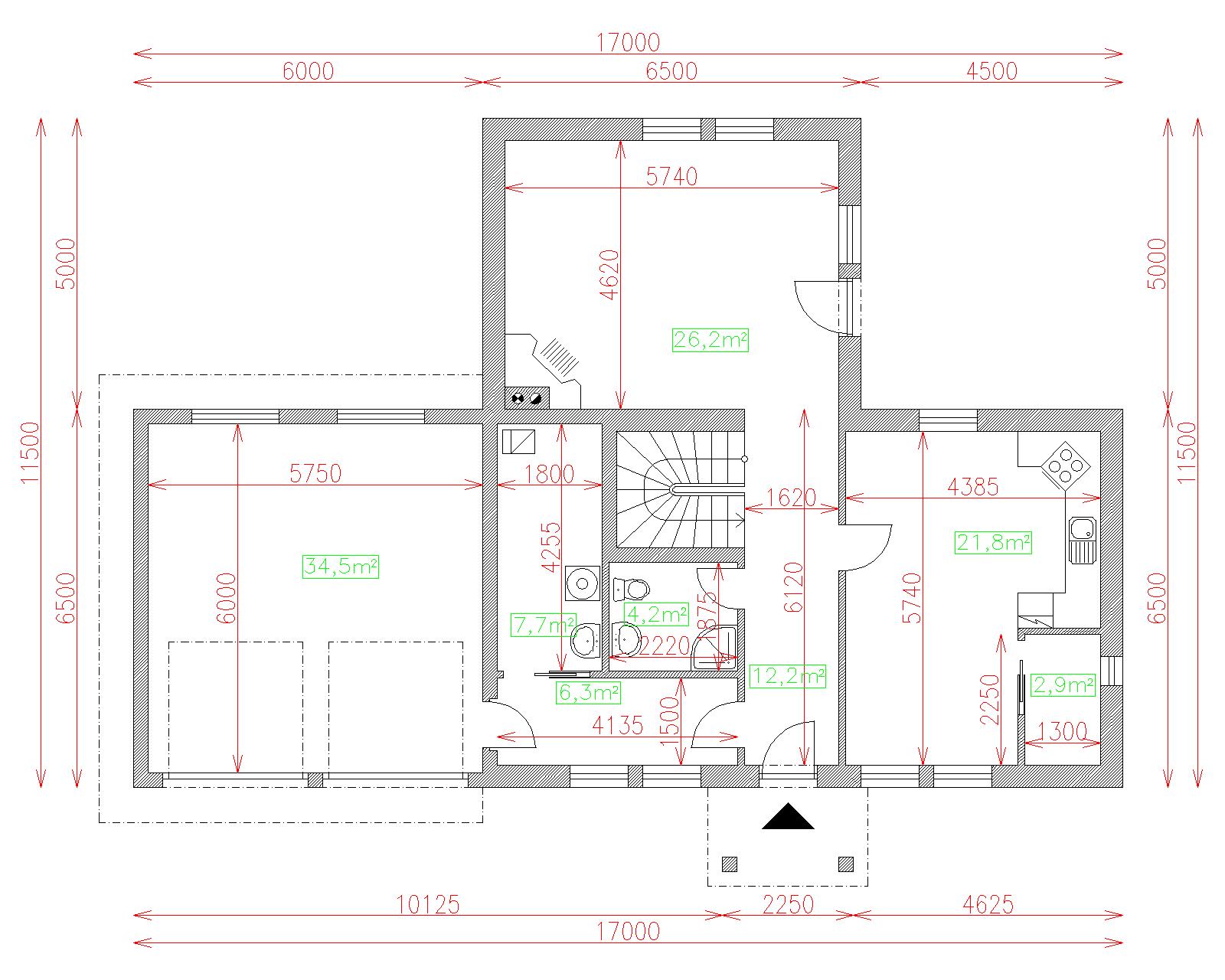
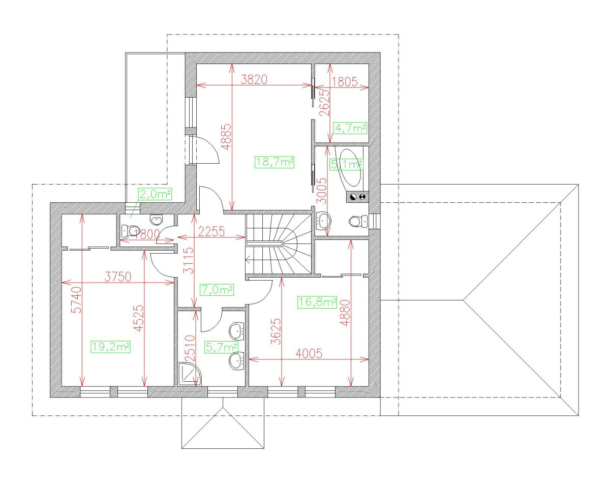
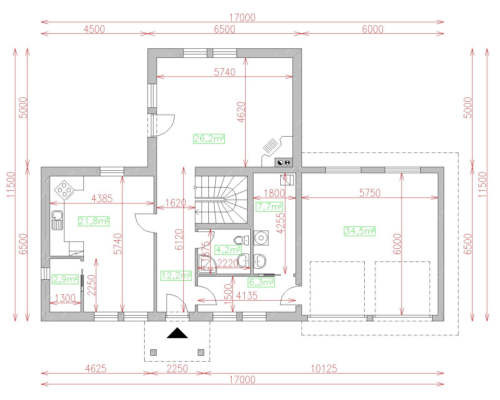
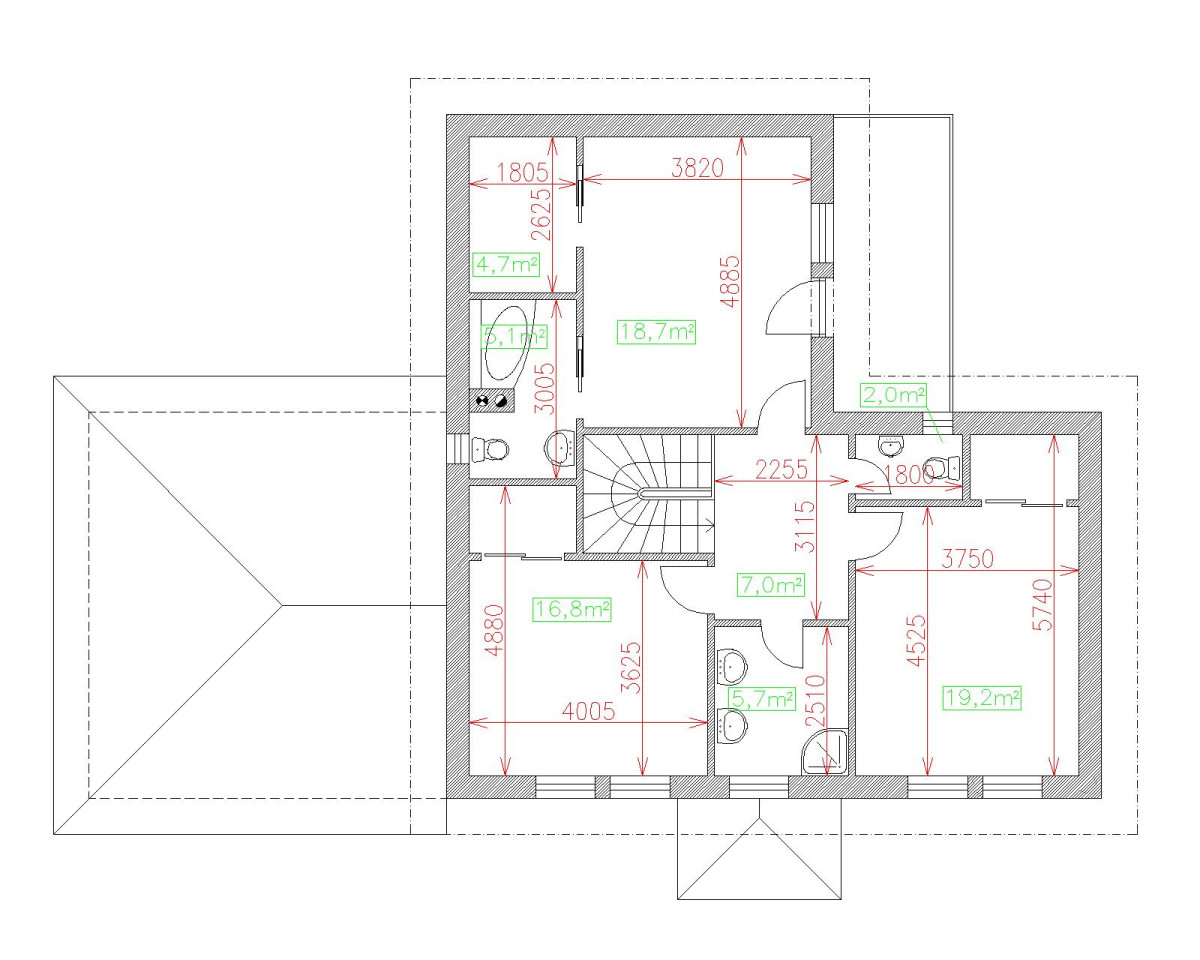
Podlaží
Izieb
Osoby
Úžitková plocha
Cena projektu
Cena na kľúč
Cena stavby svojpomocne
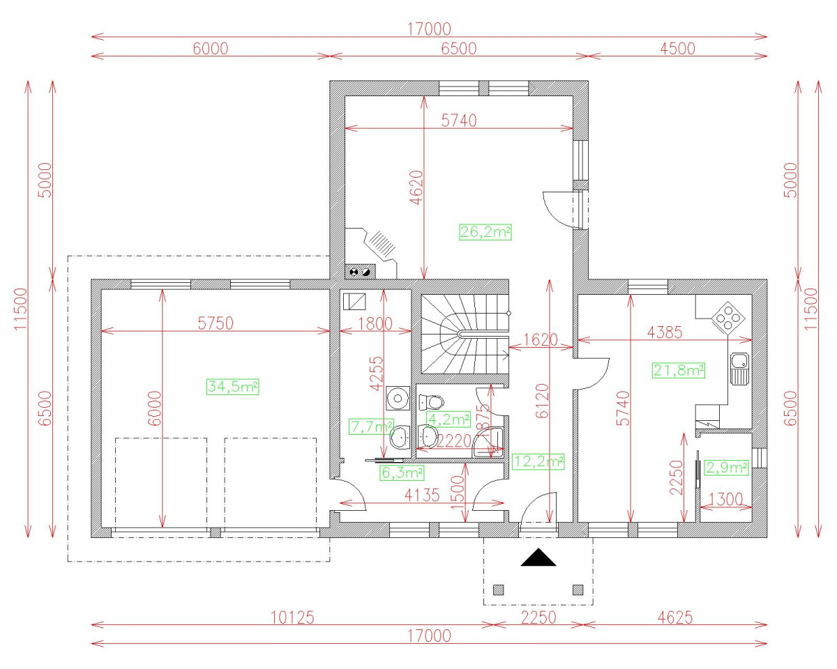
| Popis | Hodnota |
|---|---|
| Počet osôb | 4 |
| Orientácia vchodu | V. Z |
| Podlaží | 2 |
| Počet obytných izieb | 4 |
| Obostavaný priestor | 800 m2 |
| Celková úžitková plocha | 208.9 m2 |
| Celková obytná plocha | 98.2 m2 |
| Zastavaná plocha | 143 m3 |
| Výška hrebeňa strechy | 7.3 |
| Sklon strechy | 17 |
| Cena projektu | € 2 850 |
| Cena stavby na kľúč | € 213 000 |


