Podlaží
Izieb
Osoby
Úžitková plocha
Cena projektu
Cena na kľúč
Cena stavby svojpomocne
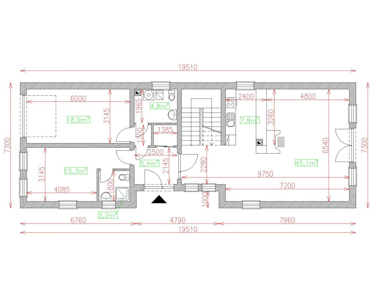
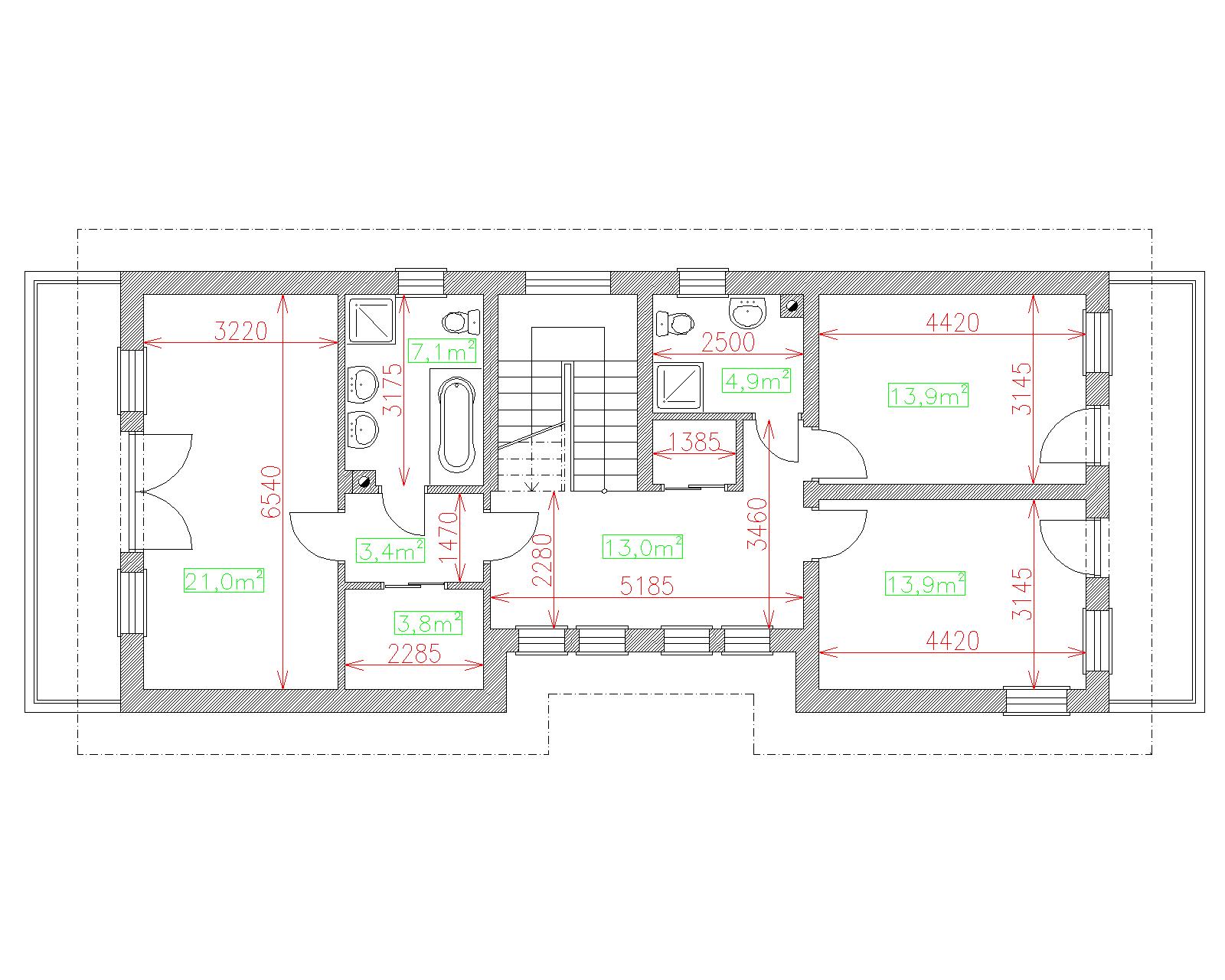
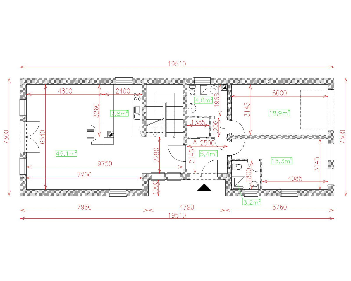
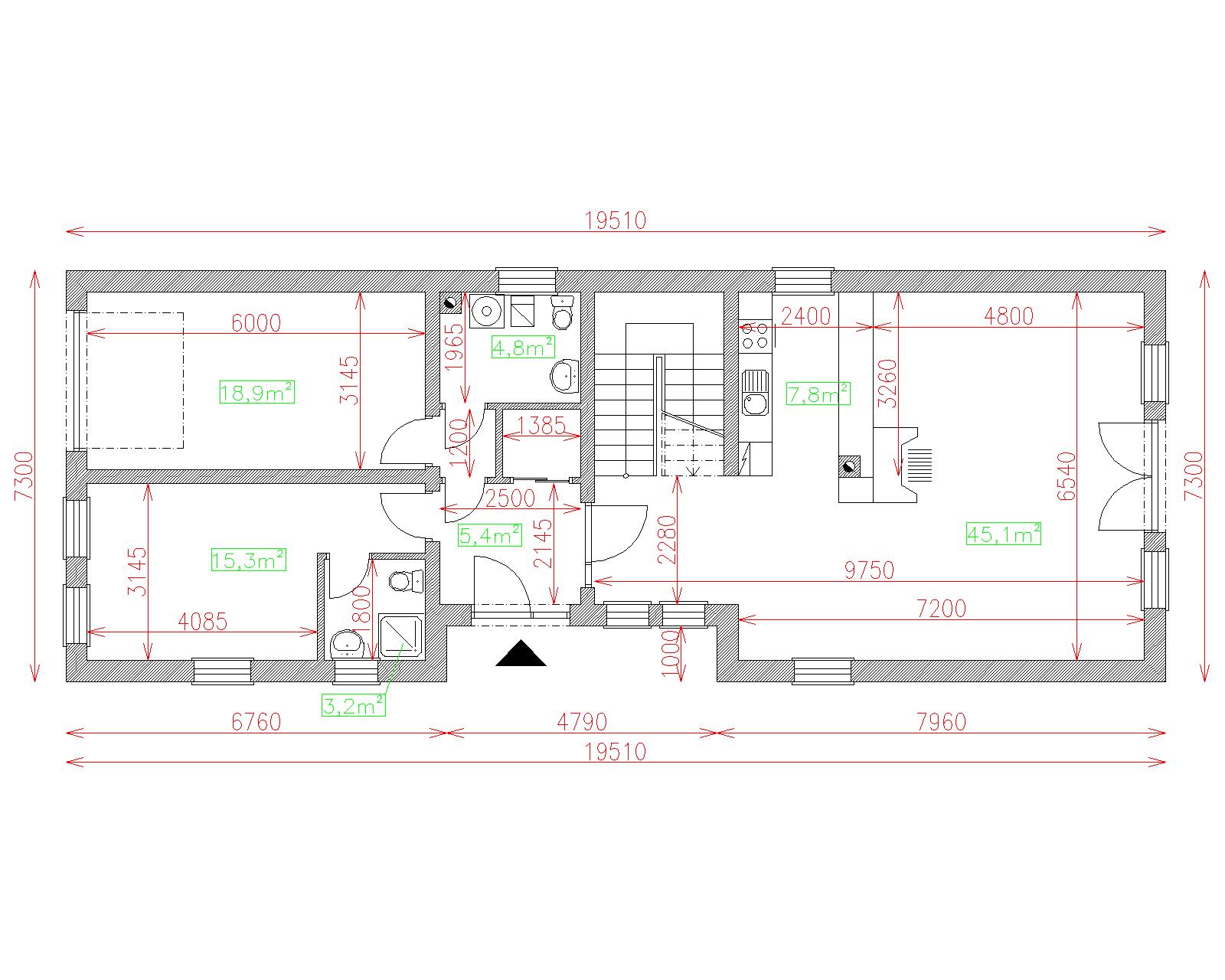
| Popis | Hodnota |
|---|---|
| Počet osôb | 5 |
| Orientácia vchodu | J.JV |
| Podlaží | 2 |
| Počet obytných izieb | 5 |
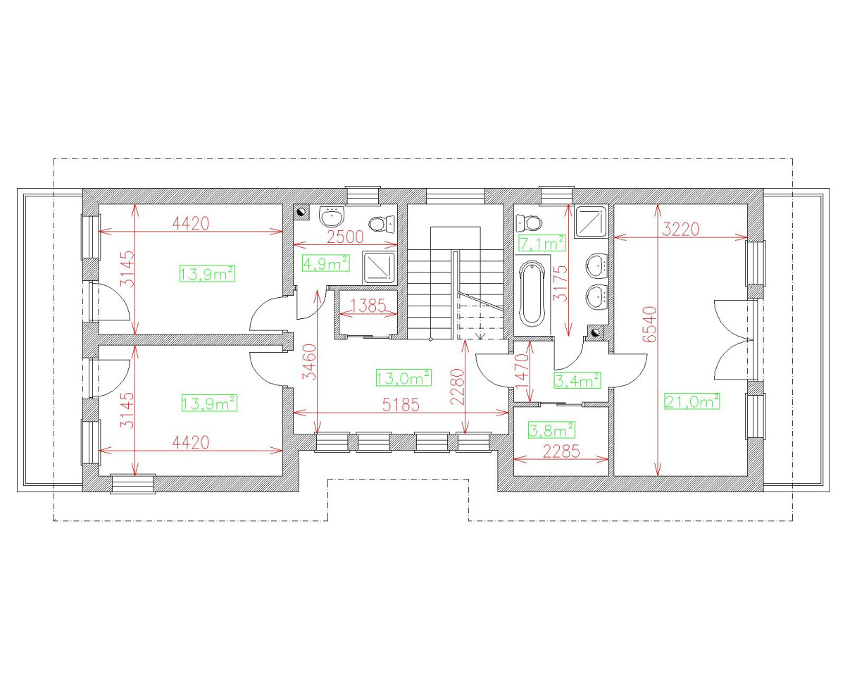
| Obostavaný priestor | 936 m2 |
| Celková úžitková plocha | 220.1 m2 |
| Celková obytná plocha | 114.6 m2 |
| Zastavaná plocha | 137.6 m3 |
| Výška hrebeňa strechy | 7.5 |
| Sklon strechy | 22 |
| Cena projektu | € 1 370 |
| Cena stavby na kľúč | € 245 000 |


