Podlaží
Izieb
Osoby
Úžitková plocha
Cena projektu
Cena na kľúč
Cena stavby svojpomocne
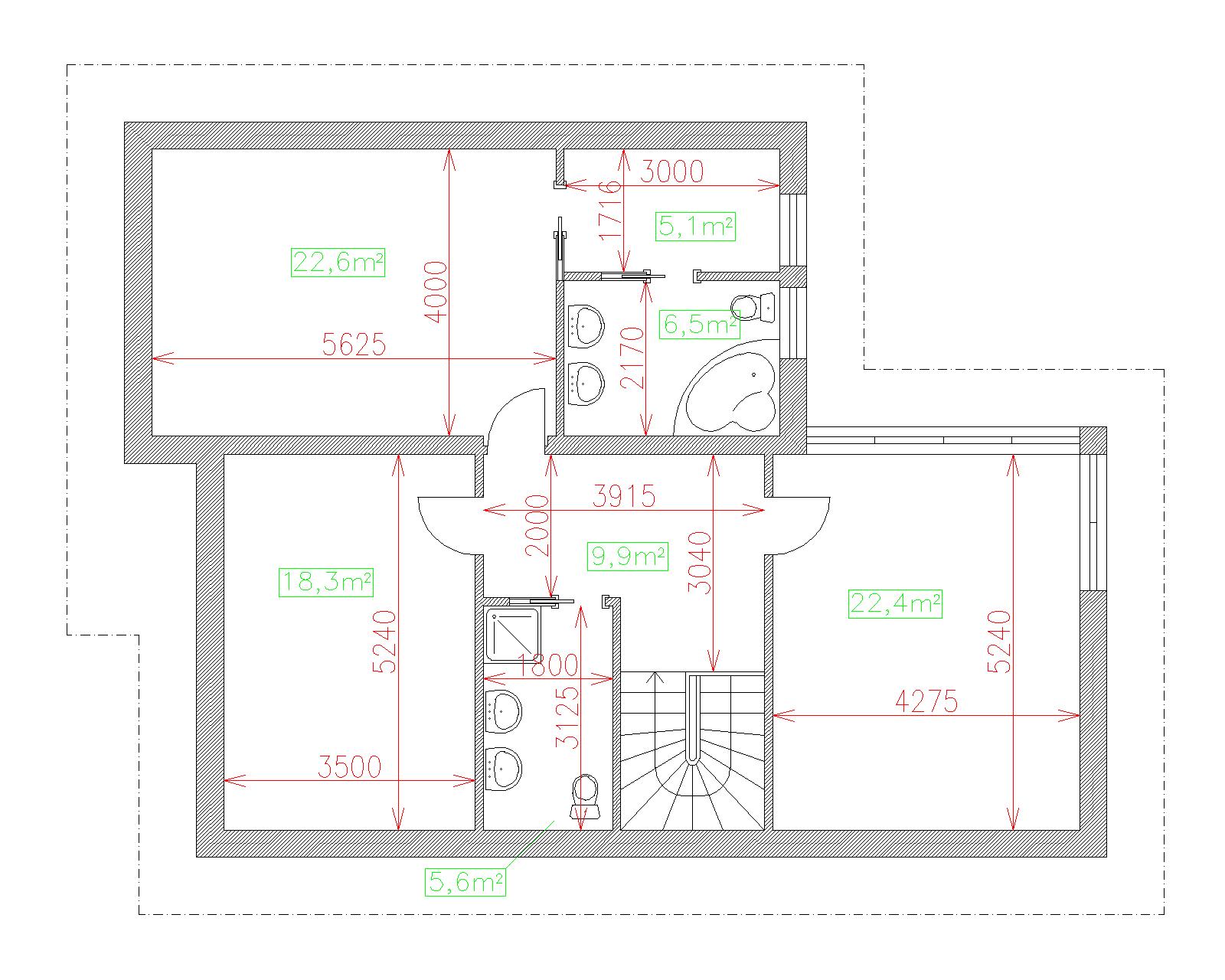
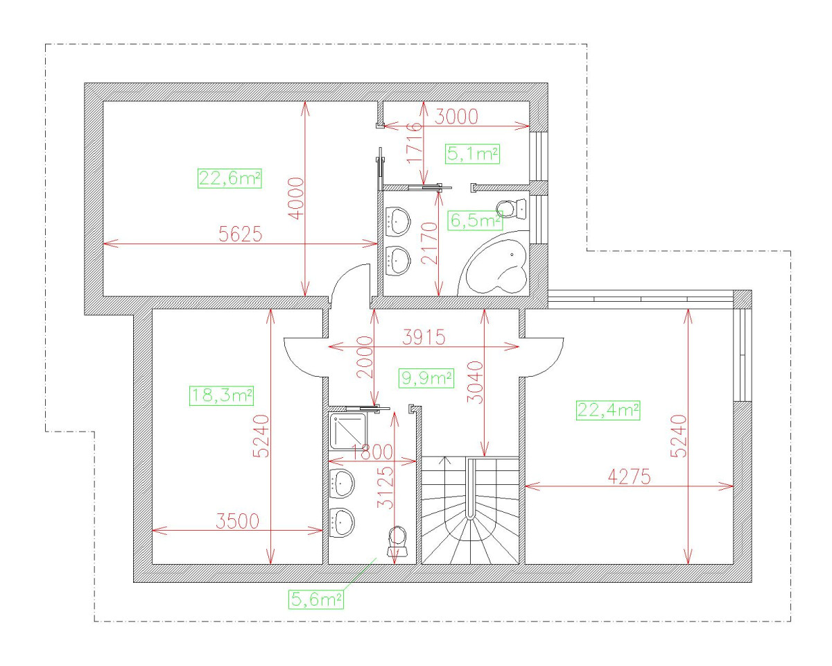
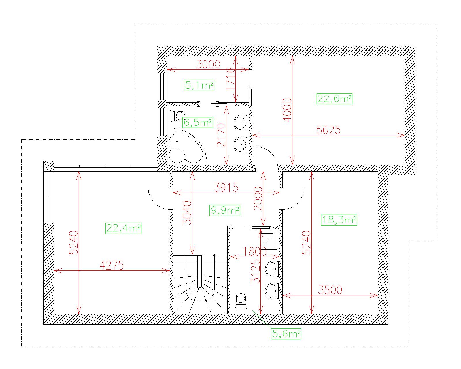
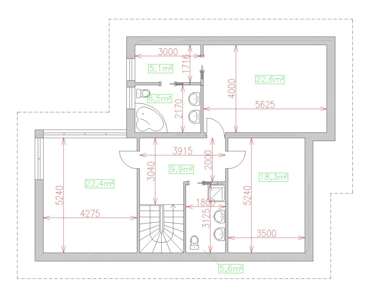
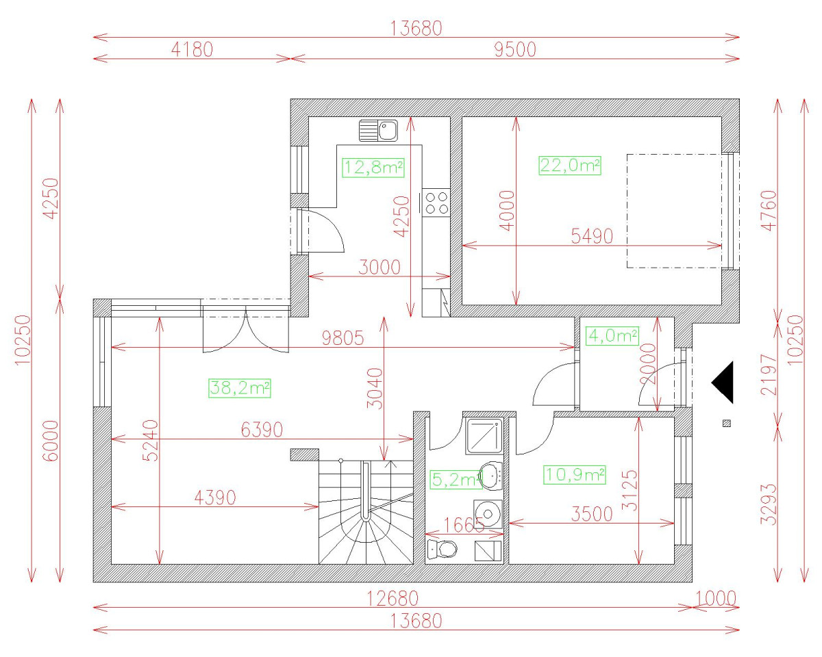
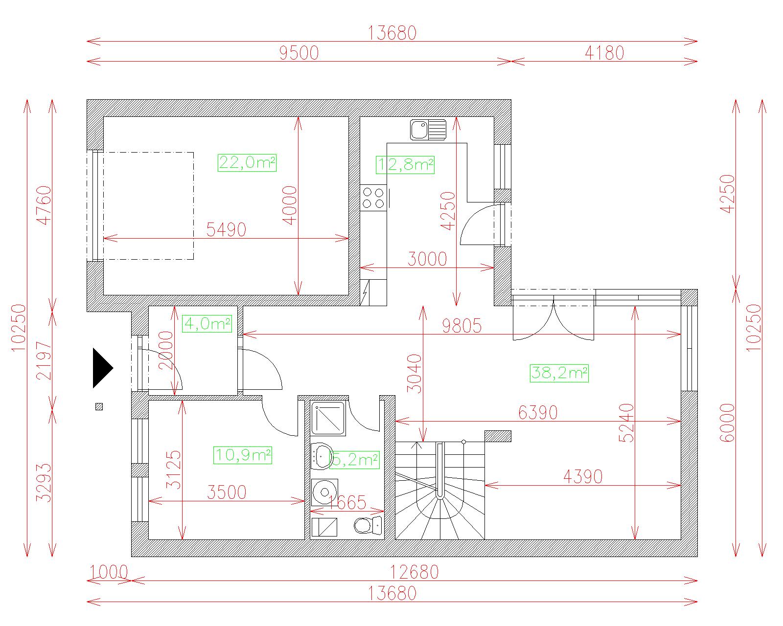
| Popis | Hodnota |
|---|---|
| Počet osôb | 5 |
| Orientácia vchodu | V.JV |
| Podlaží | 2 |
| Počet obytných izieb | 5 |
| Obostavaný priestor | 725 m2 |
| Celková úžitková plocha | 188 m2 |
| Celková obytná plocha | 112.4 m2 |
| Zastavaná plocha | 117 m3 |
| Výška hrebeňa strechy | 7.4 |
| Sklon strechy | 35 |
| Cena projektu | € 2 480 |
| Cena stavby na kľúč | € 182 000 |


