Podlaží
Izieb
Osoby
Úžitková plocha
Cena projektu
Cena na kľúč
Cena stavby svojpomocne
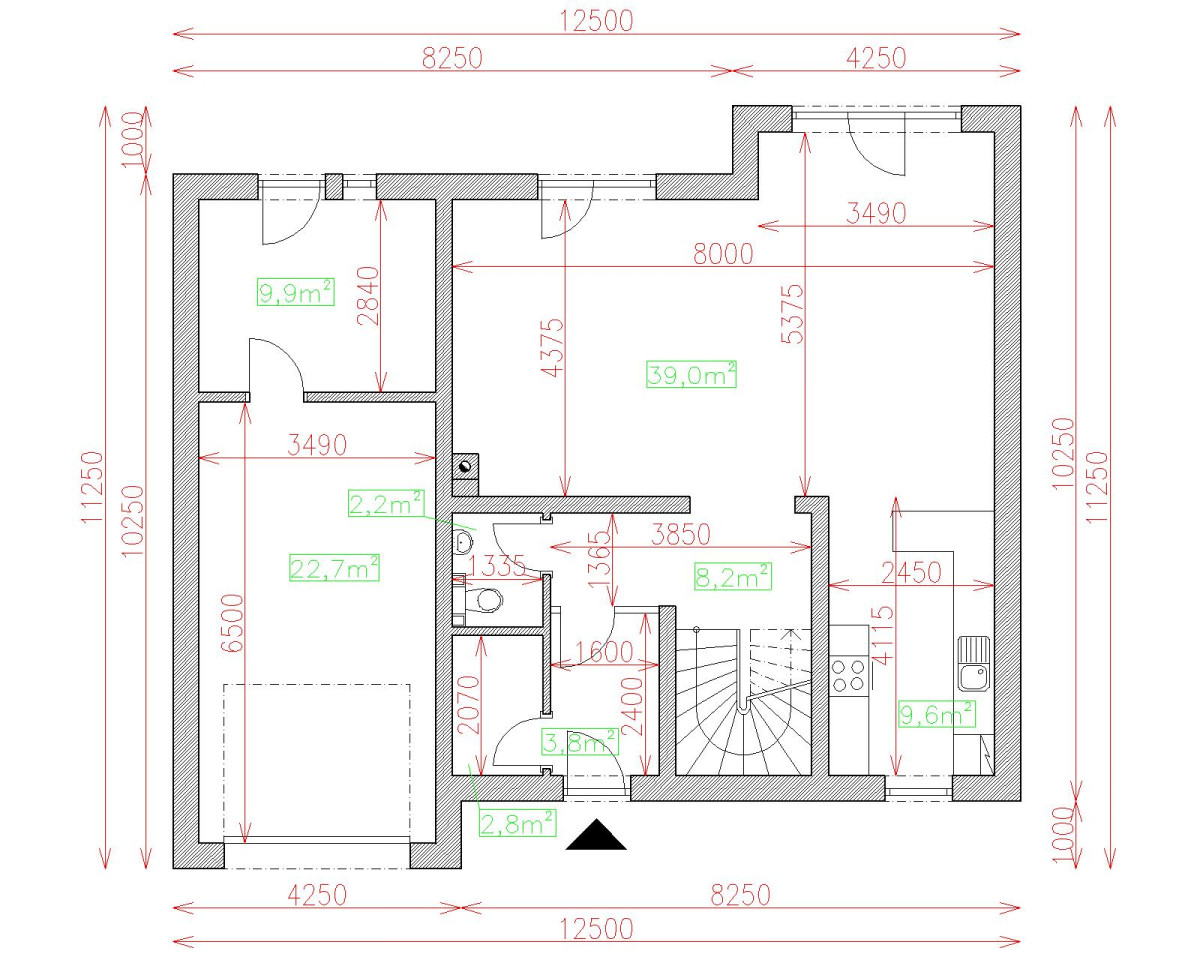
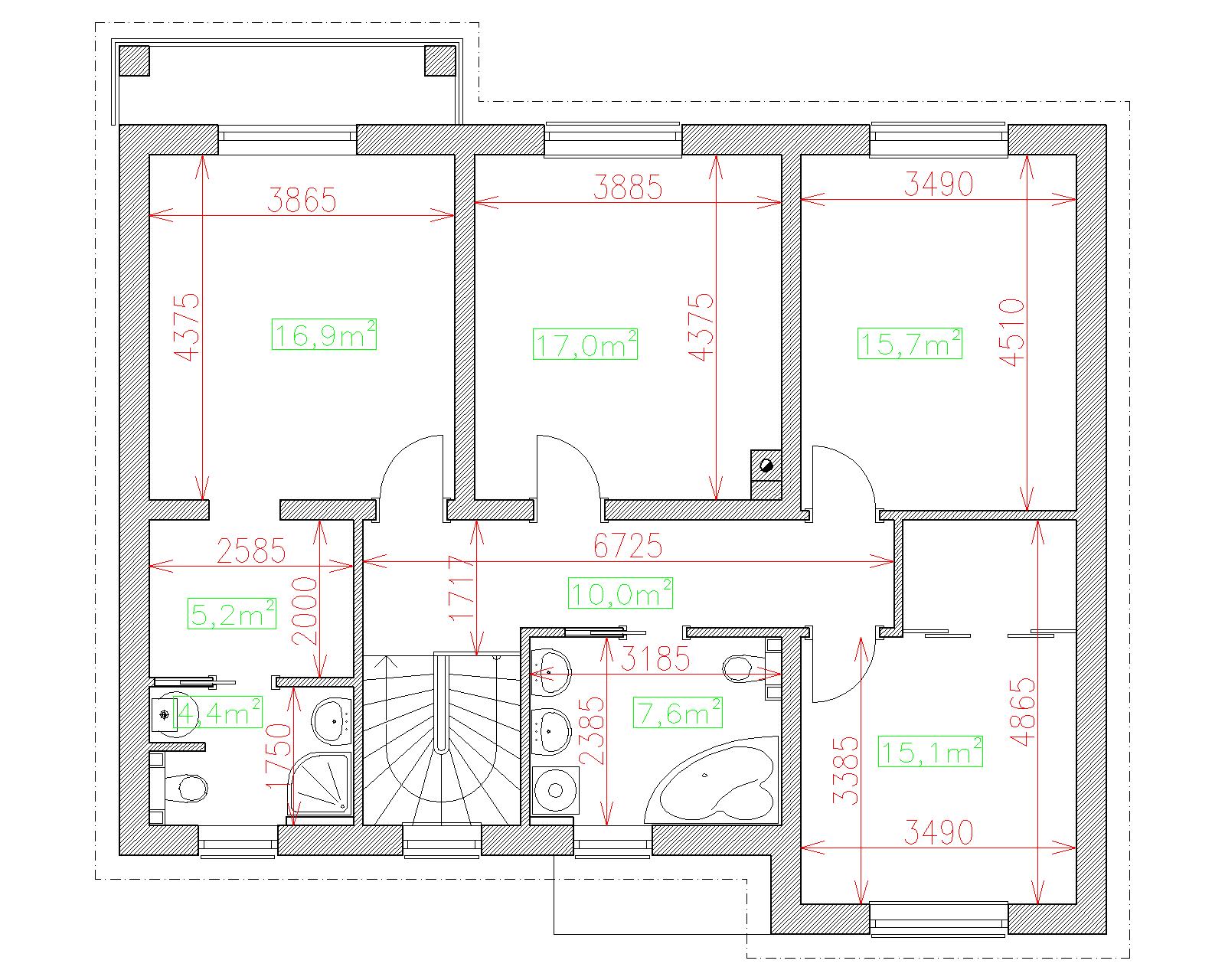
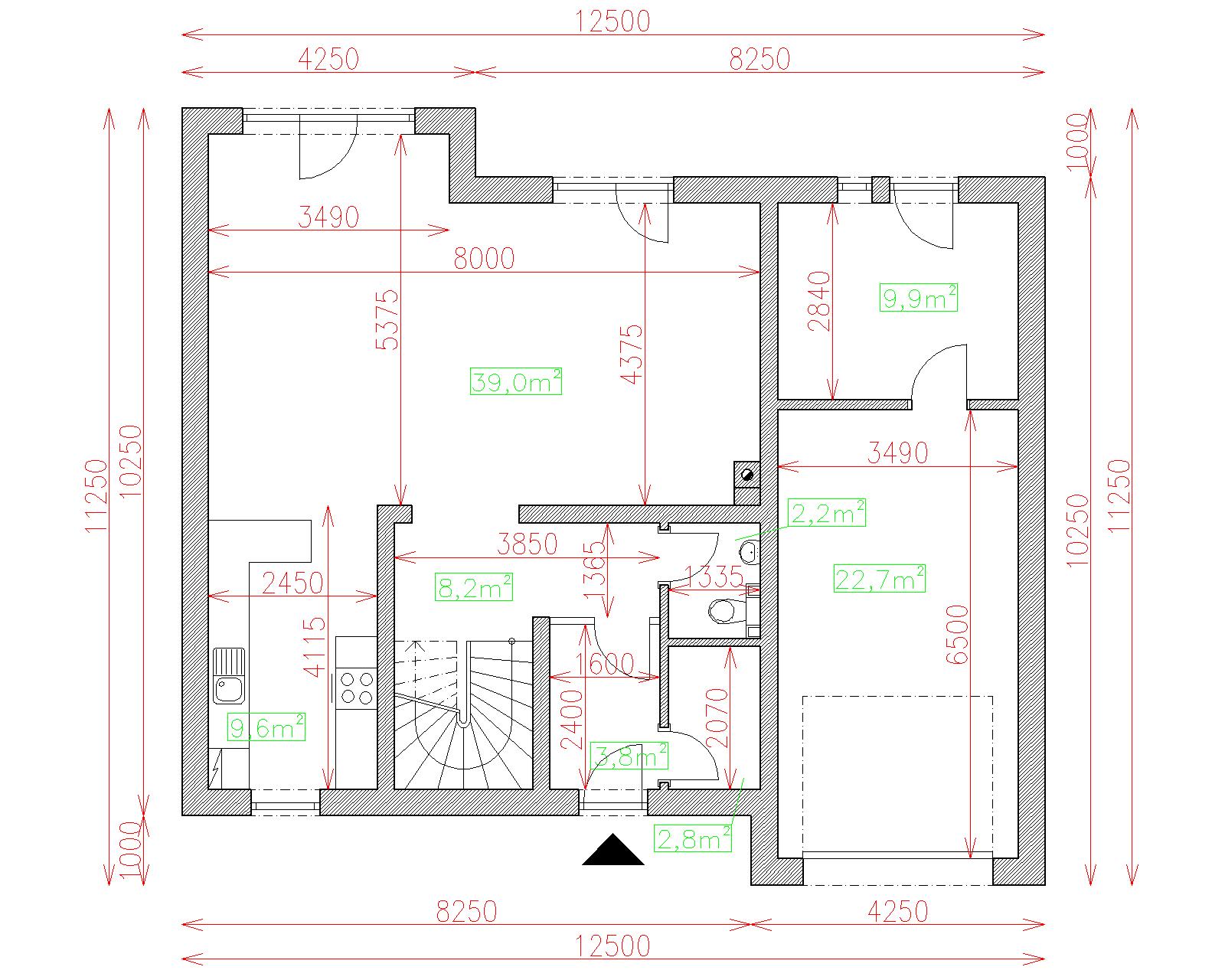
| Popis | Hodnota |
|---|---|
| Počet osôb | 5 |
| Orientácia vchodu | V. Z |
| Podlaží | 2 |
| Počet obytných izieb | 5 |
| Obostavaný priestor | 900 m2 |
| Celková úžitková plocha | 198.9 m2 |
| Celková obytná plocha | 101.3 m2 |
| Zastavaná plocha | 124.1 m3 |
| Výška hrebeňa strechy | 8.1 |
| Sklon strechy | 17 |
| Cena projektu | € 1 380 |
| Cena stavby na kľúč | € 192 000 |


