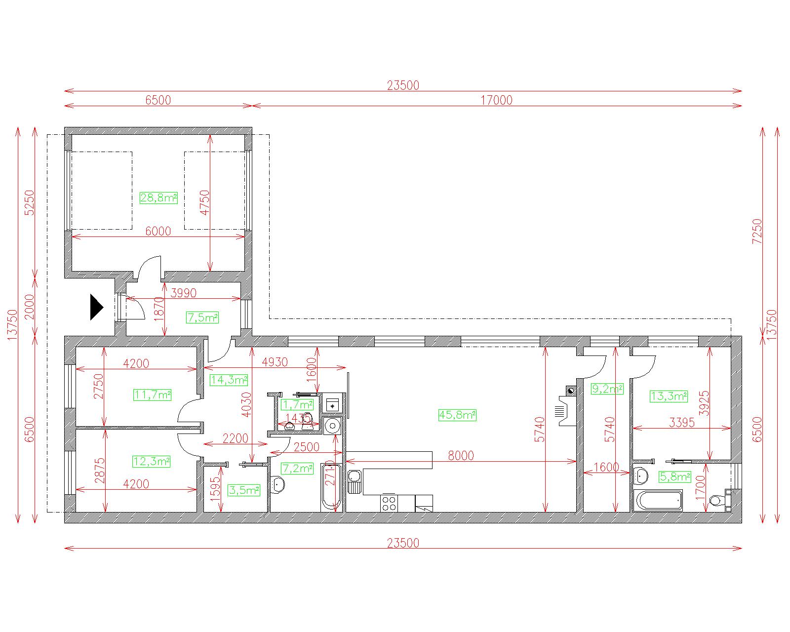
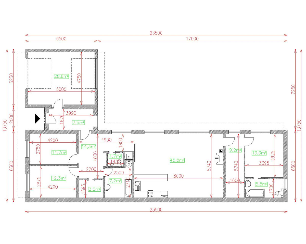
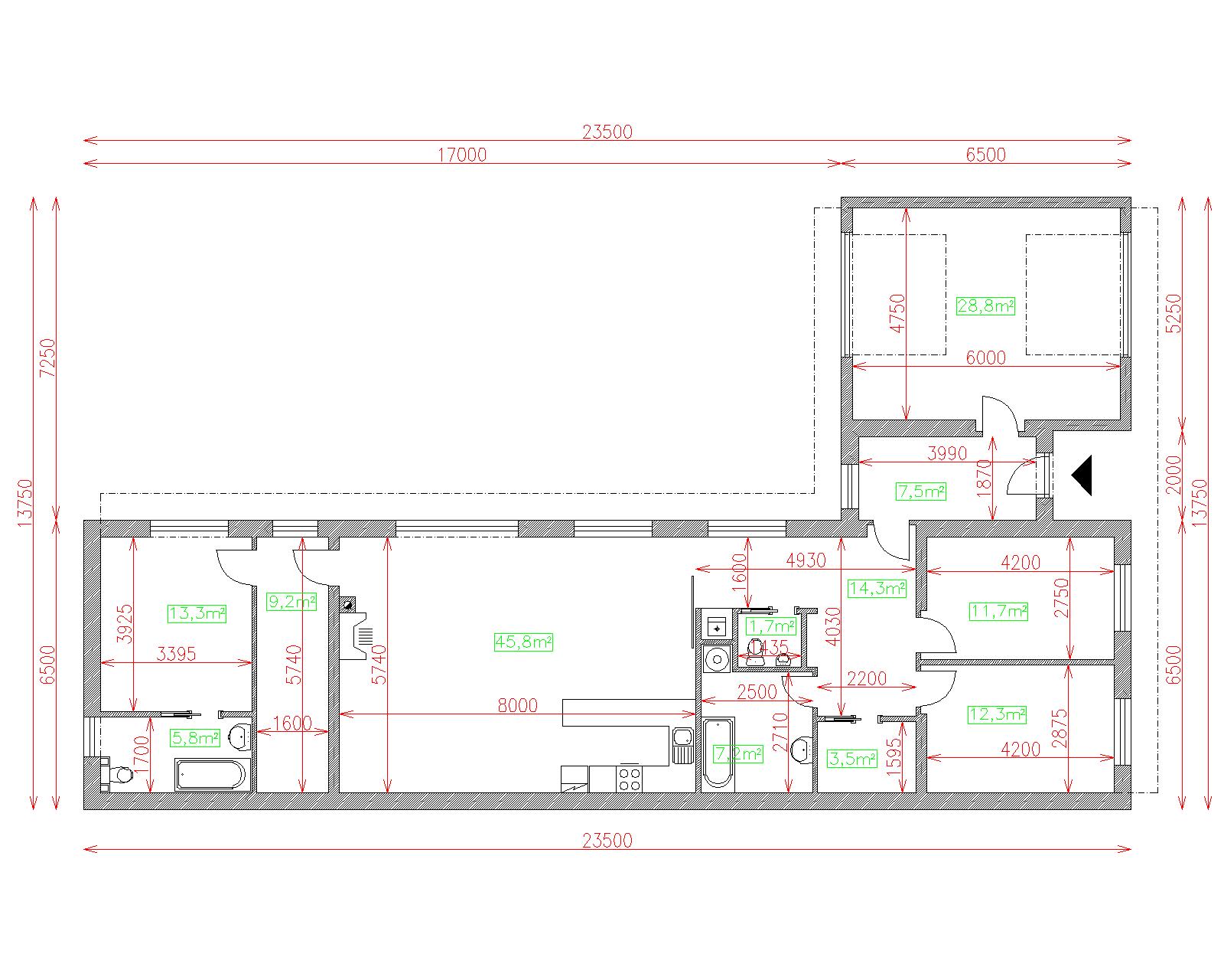
Podlaží
Izieb
Osoby
Úžitková plocha
Cena projektu
Cena na kľúč
Cena stavby svojpomocne
| Popis | Hodnota |
|---|---|
| Počet osôb | 4 |
| Orientácia vchodu | SV. JZ |
| Podlaží | 1 |
| Počet obytných izieb | 4 |
| Obostavaný priestor | 950 m2 |
| Celková úžitková plocha | 161 m2 |
| Celková obytná plocha | 83 m2 |
| Zastavaná plocha | 196.4 m3 |
| Výška hrebeňa strechy | 6.6 |
| Sklon strechy | 37 |
| Cena projektu | € 2 630 |
| Cena stavby na kľúč | € 175 000 |


