Podlaží
Izieb
Osoby
Úžitková plocha
Cena projektu
Cena na kľúč
Cena stavby svojpomocne
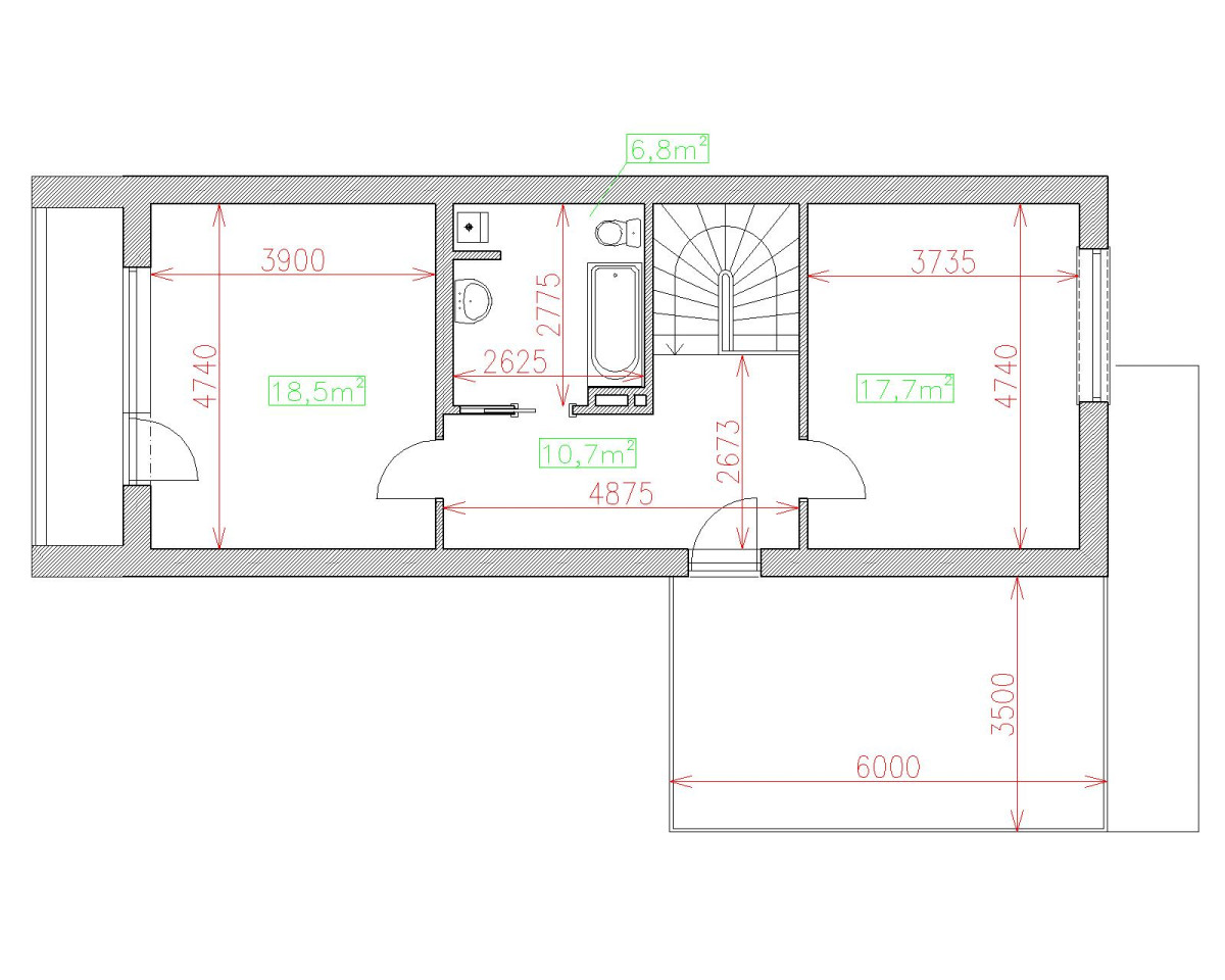
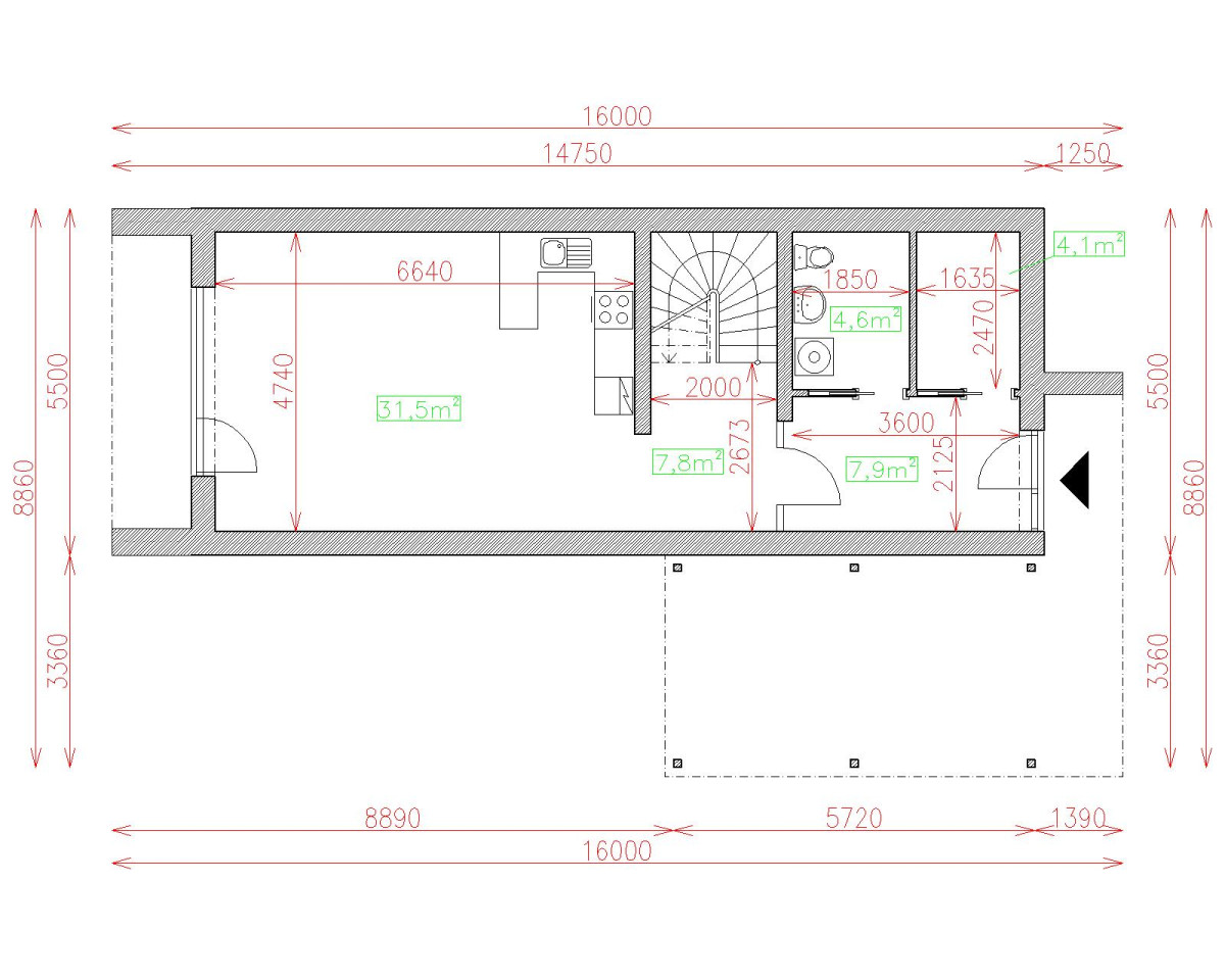
| Popis | Hodnota |
|---|---|
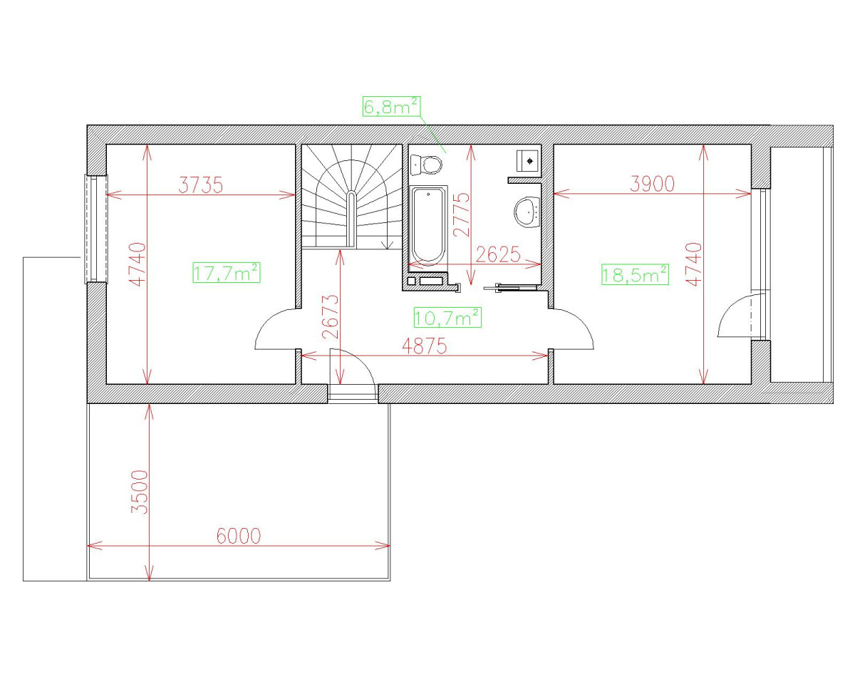
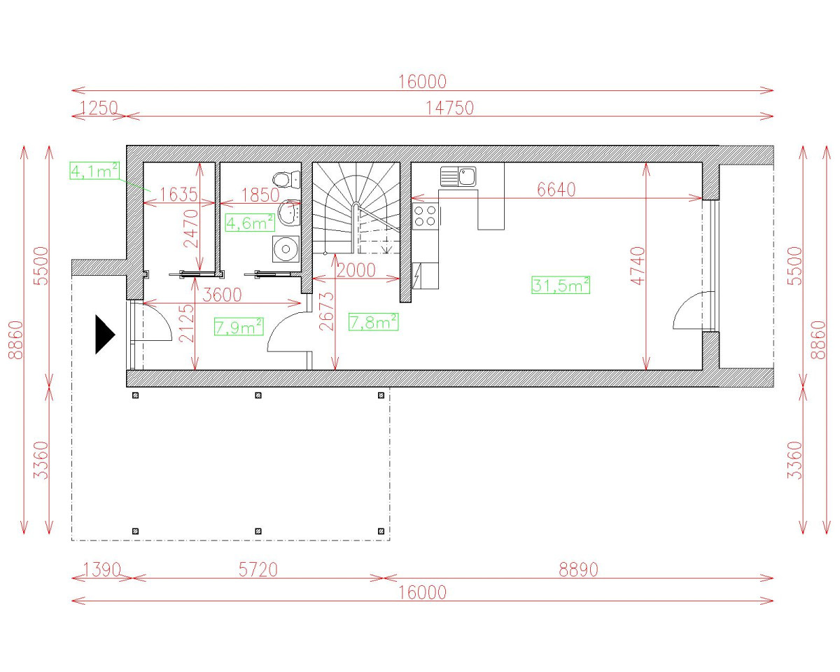
| Počet osôb | 4 |
| Orientácia vchodu | V.SV |
| Podlaží | 2 |
| Počet obytných izieb | 3 |
| Obostavaný priestor | 600 m2 |
| Celková úžitková plocha | 140.5 m2 |
| Celková obytná plocha | 61.3 m2 |
| Zastavaná plocha | 74.9 m3 |
| Výška hrebeňa strechy | 7 |
| Sklon strechy | 7 |
| Cena projektu | € 1 350 |
| Cena stavby na kľúč | € 136 000 |


