Podlaží
Izieb
Osoby
Úžitková plocha
Cena projektu
Cena na kľúč
Cena stavby svojpomocne
| Popis | Hodnota |
|---|---|
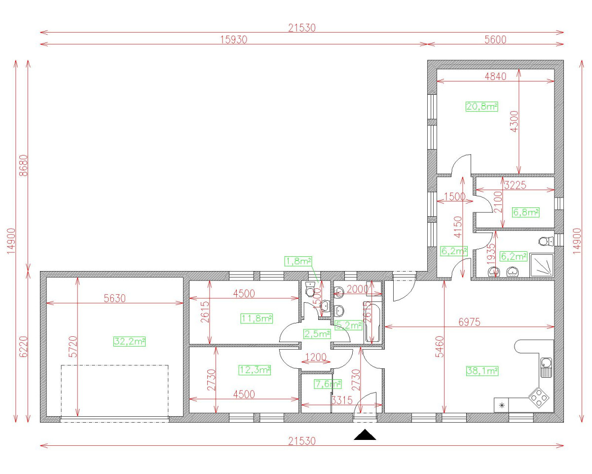
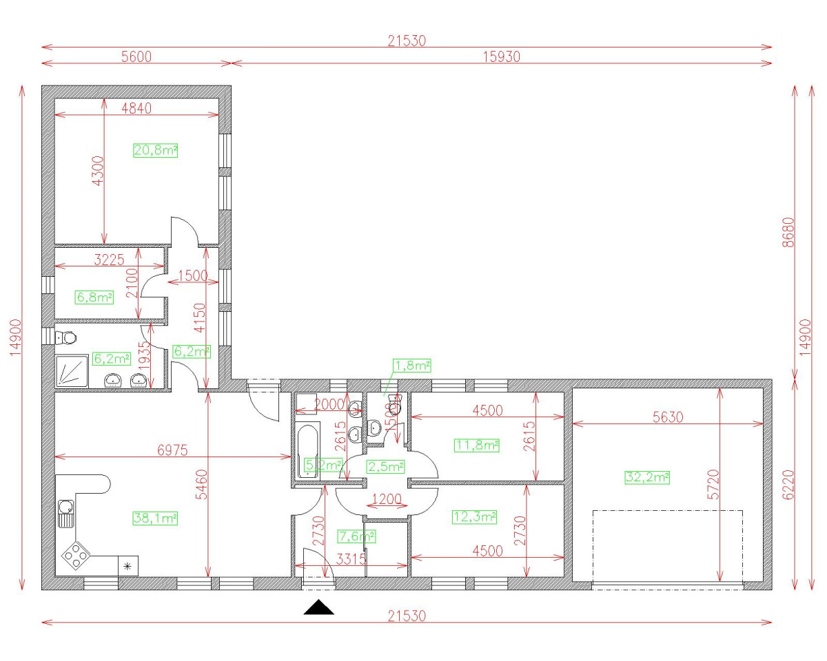
| Počet osôb | 4 |
| Orientácia vchodu | V. Z |
| Podlaží | 1 |
| Počet obytných izieb | 4 |
| Obostavaný priestor | 730 m2 |
| Celková úžitková plocha | 151.5 m2 |
| Celková obytná plocha | 83 m2 |
| Zastavaná plocha | 182.5 m3 |
| Výška hrebeňa strechy | 5.1 |
| Sklon strechy | 10 |
| Cena projektu | € 2 900 |
| Cena stavby na kľúč | € 325 000 |


