Podlaží
Izieb
Osoby
Úžitková plocha
Cena projektu
Cena na kľúč
Cena stavby svojpomocne
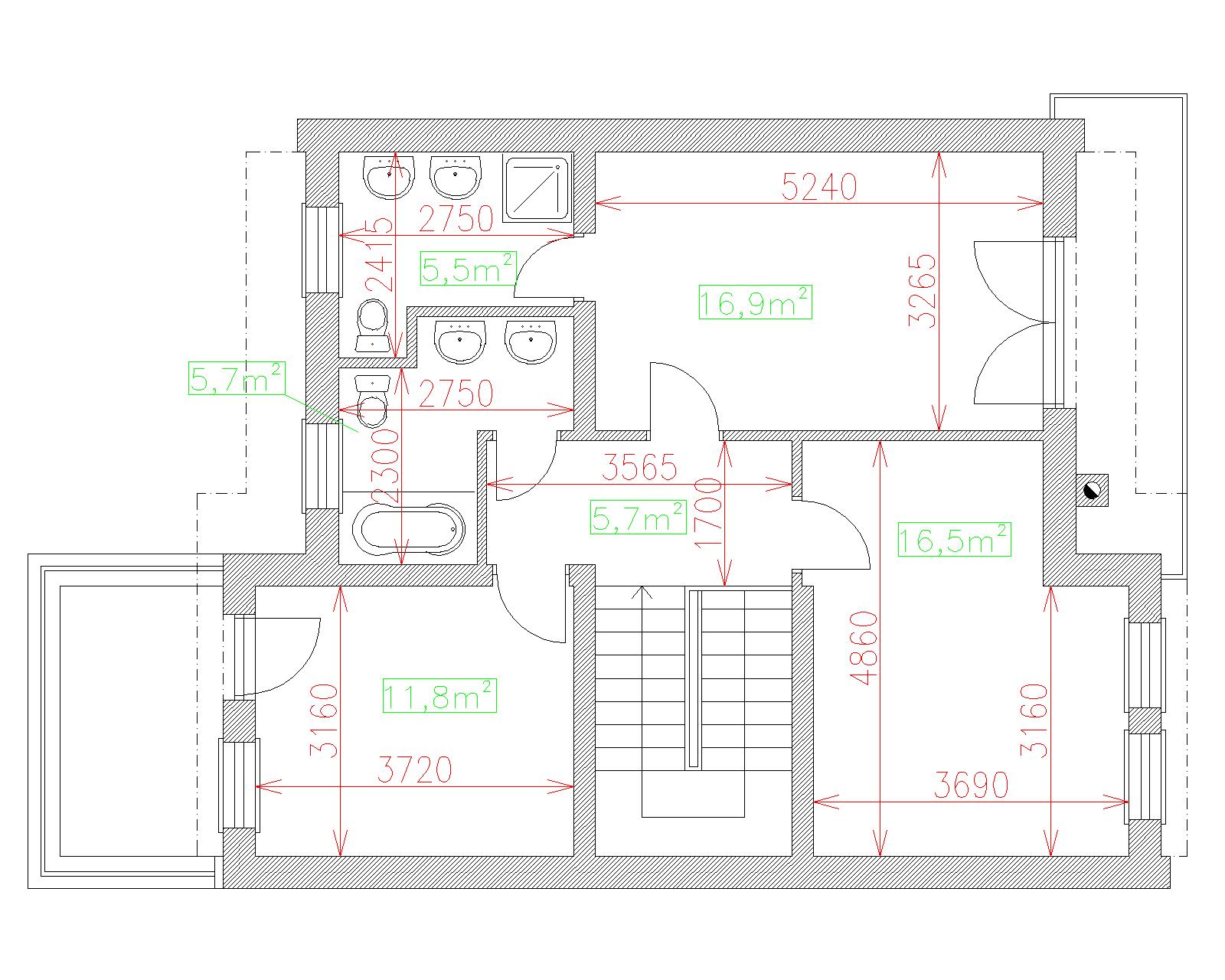
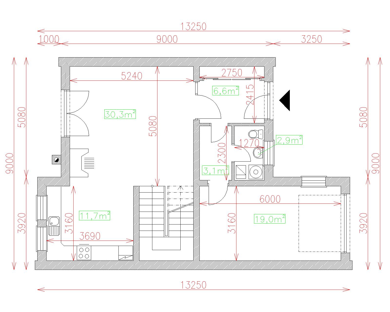
| Popis | Hodnota |
|---|---|
| Počet osôb | 4 |
| Orientácia vchodu | V.JV |
| Podlaží | 2 |
| Počet obytných izieb | 4 |
| Obostavaný priestor | 646 m2 |
| Celková úžitková plocha | 158.9 m2 |
| Celková obytná plocha | 75.5 m2 |
| Zastavaná plocha | 98.1 m3 |
| Výška hrebeňa strechy | 7.5 |
| Sklon strechy | 17 |
| Cena projektu | € 1 220 |
| Cena stavby na kľúč | € 154 000 |


