Podlaží
Izieb
Osoby
Úžitková plocha
Cena projektu
Cena na kľúč
Cena stavby svojpomocne
| Popis | Hodnota |
|---|---|
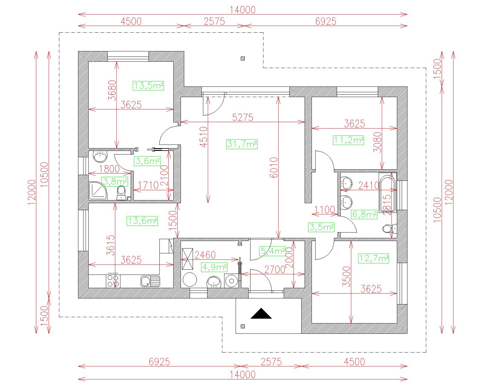
| Počet osôb | 4 |
| Orientácia vchodu | S |
| Podlaží | 1 |
| Počet obytných izieb | 4 |
| Obostavaný priestor | 680 m2 |
| Celková úžitková plocha | 109.9 m2 |
| Celková obytná plocha | 60.4 m2 |
| Zastavaná plocha | 139.5 m3 |
| Výška hrebeňa strechy | 5.5 |
| Sklon strechy | 17 |
| Cena projektu | € 1 820 |
| Cena stavby na kľúč | € 126 900 |


