Podlaží
Izieb
Osoby
Úžitková plocha
Cena projektu
Cena na kľúč
Cena stavby svojpomocne
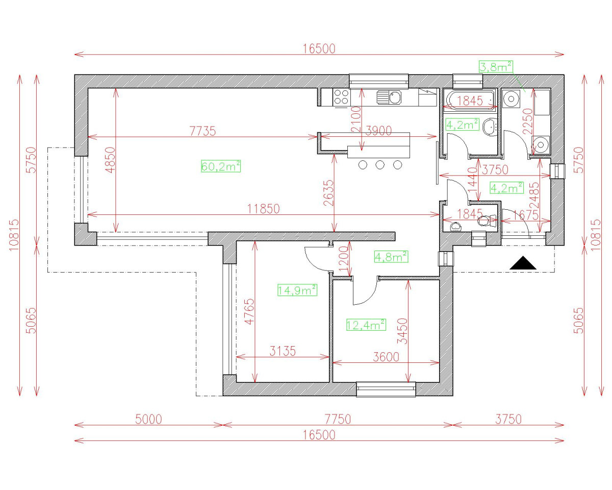
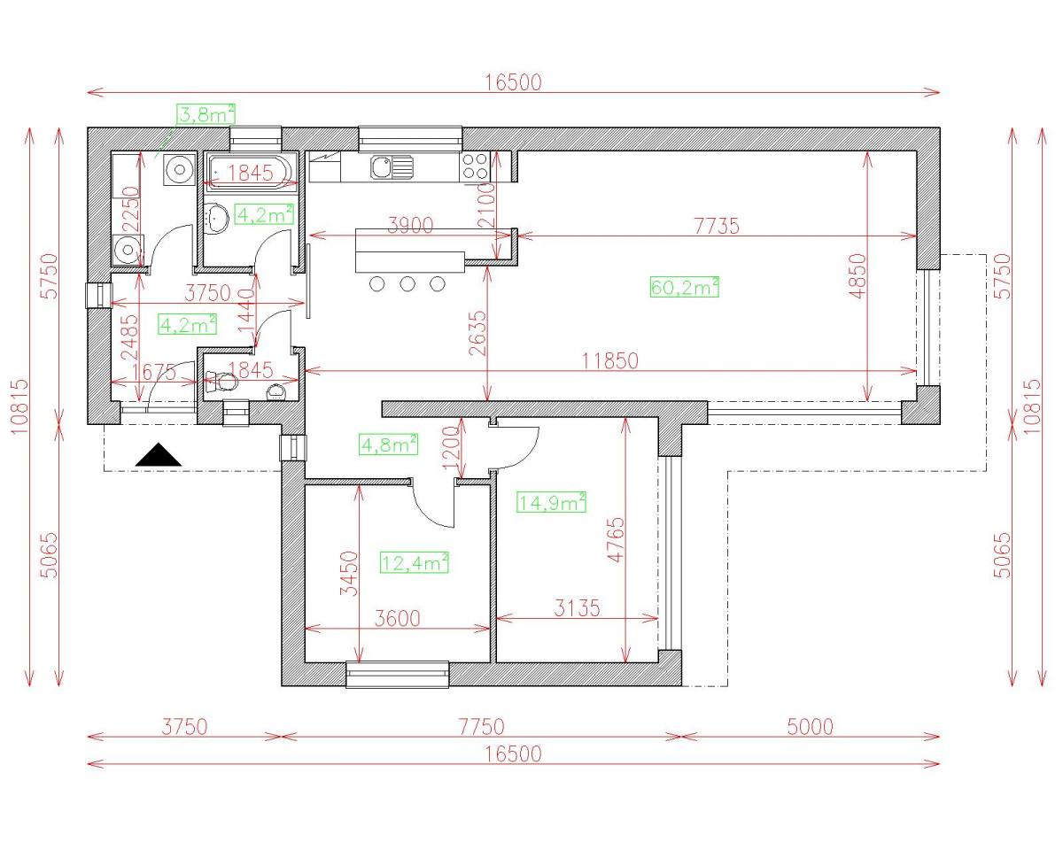
| Popis | Hodnota |
|---|---|
| Počet osôb | 4 |
| Orientácia vchodu | JZ |
| Podlaží | 1 |
| Počet obytných izieb | 3 |
| Obostavaný priestor | 480 m2 |
| Celková úžitková plocha | 106.2 m2 |
| Celková obytná plocha | 87.5 m2 |
| Zastavaná plocha | 134.1 m3 |
| Výška hrebeňa strechy | 3.9 |
| Sklon strechy | 0 |
| Cena projektu | € 1 800 |
| Cena stavby na kľúč | € 122 700 |


