Podlaží
Izieb
Osoby
Úžitková plocha
Cena projektu
Cena na kľúč
Cena stavby svojpomocne
| Popis | Hodnota |
|---|---|
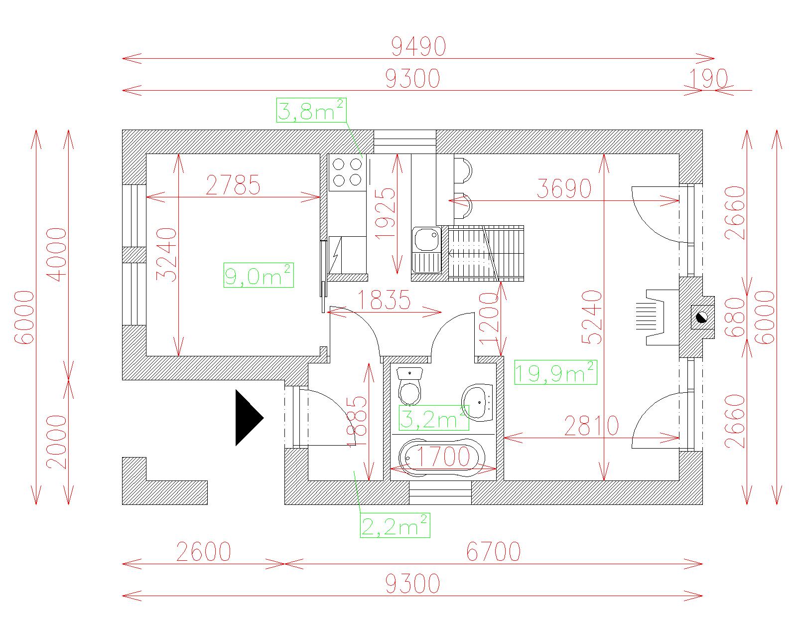
| Počet osôb | 4 |
| Orientácia vchodu | J. V |
| Podlaží | 2 |
| Počet obytných izieb | 3 |
| Obostavaný priestor | 270 m2 |
| Celková úžitková plocha | 55.1 m2 |
| Celková obytná plocha | 45.8 m2 |
| Zastavaná plocha | 51.6 m3 |
| Výška hrebeňa strechy | 5.4 |
| Sklon strechy | 30 |
| Cena projektu | € 970 |
| Cena stavby na kľúč | € 77 000 |


