Podlaží
Izieb
Osoby
Úžitková plocha
Cena projektu
Cena na kľúč
Cena stavby svojpomocne
| Popis | Hodnota |
|---|---|
| Počet osôb | 6 |
| Orientácia vchodu | Z. SZ |
| Podlaží | 2 |
| Počet obytných izieb | 4 |
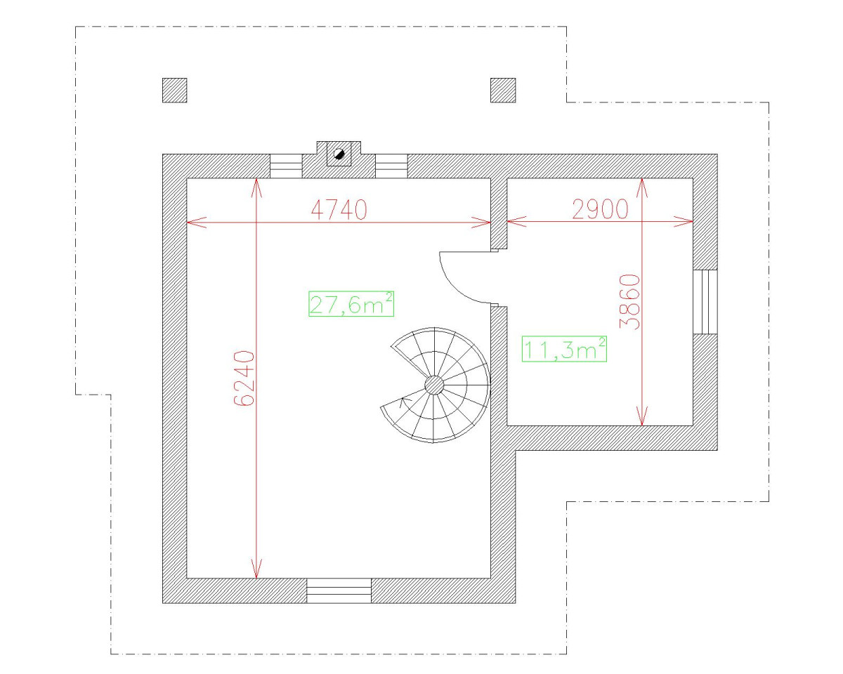
| Obostavaný priestor | 280 m2 |
| Celková úžitková plocha | 79.3 m2 |
| Celková obytná plocha | 69.8 m2 |
| Zastavaná plocha | 53.2 m3 |
| Výška hrebeňa strechy | 7.7 |
| Sklon strechy | 60 |
| Cena projektu | € 1 010 |
| Cena stavby na kľúč | € 78 500 |


