Podlaží
Izieb
Osoby
Úžitková plocha
Cena projektu
Cena na kľúč
Cena stavby svojpomocne
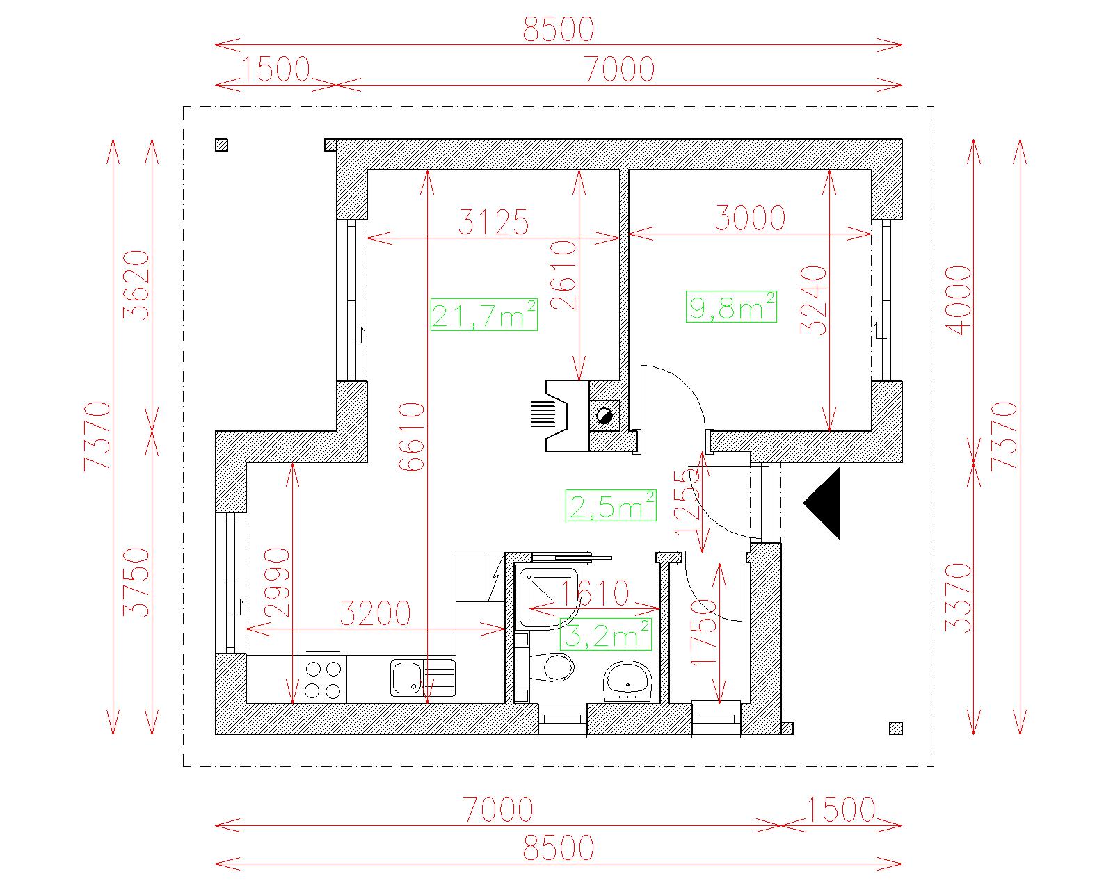
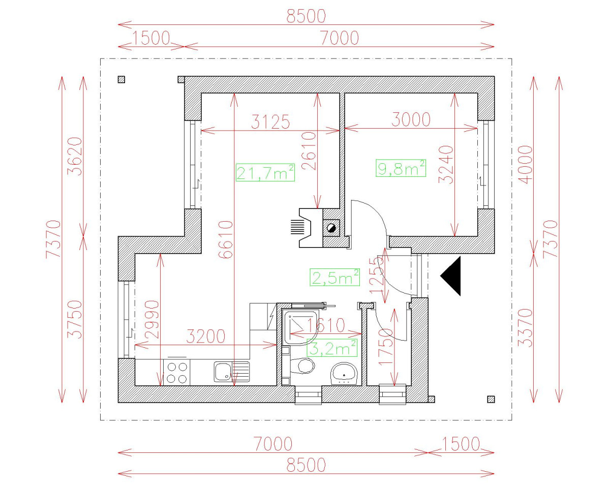
| Popis | Hodnota |
|---|---|
| Počet osôb | 3 |
| Orientácia vchodu | V. Z |
| Podlaží | 1 |
| Počet obytných izieb | 2 |
| Obostavaný priestor | 180 m2 |
| Celková úžitková plocha | 39 m2 |
| Celková obytná plocha | 31.7 m2 |
| Zastavaná plocha | 52.2 m3 |
| Výška hrebeňa strechy | 3.1 |
| Sklon strechy | 0 |
| Cena projektu | € 990 |
| Cena stavby na kľúč | € 49 000 |


