Podlaží
Izieb
Osoby
Úžitková plocha
Cena projektu
Cena na kľúč
Cena stavby svojpomocne
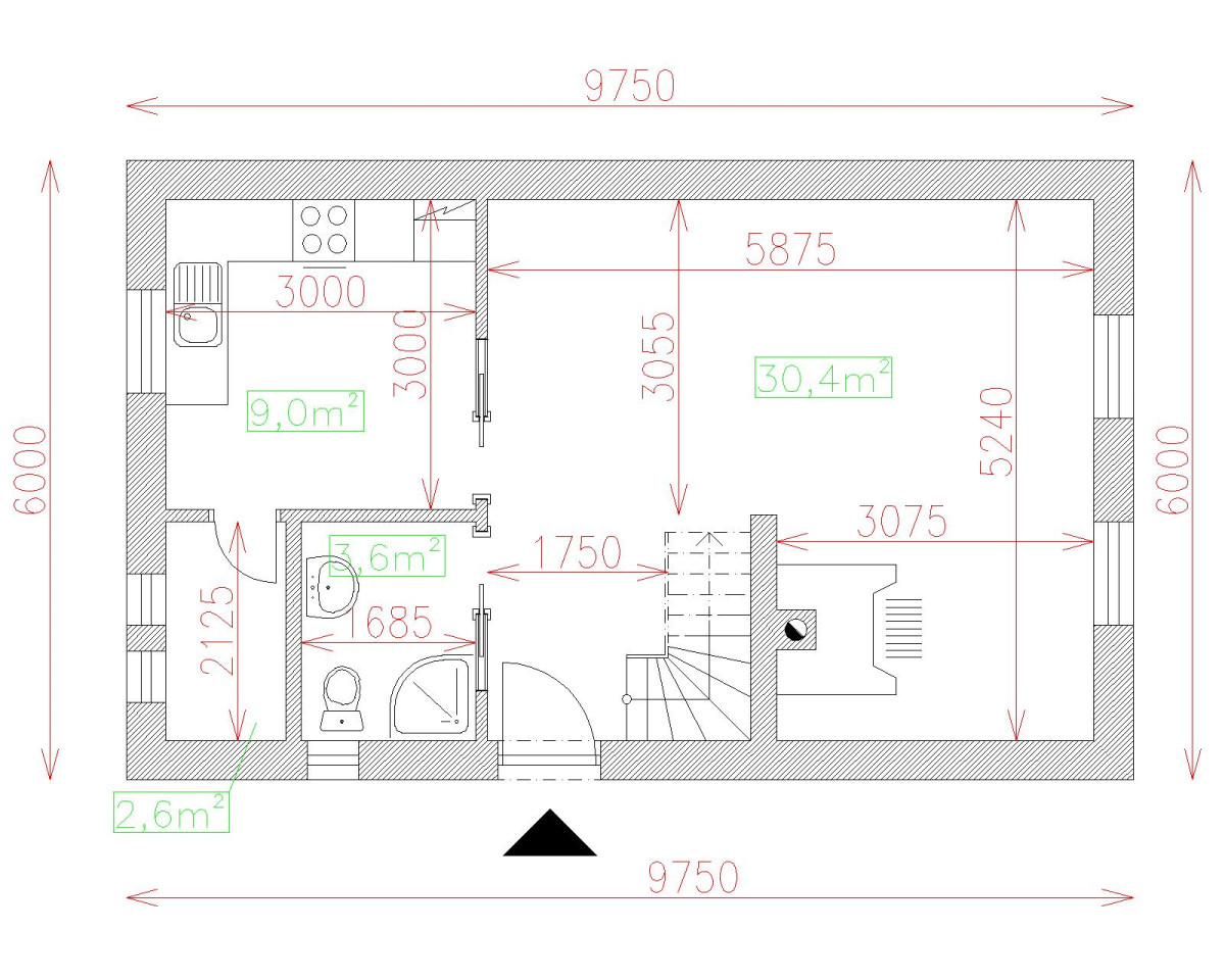
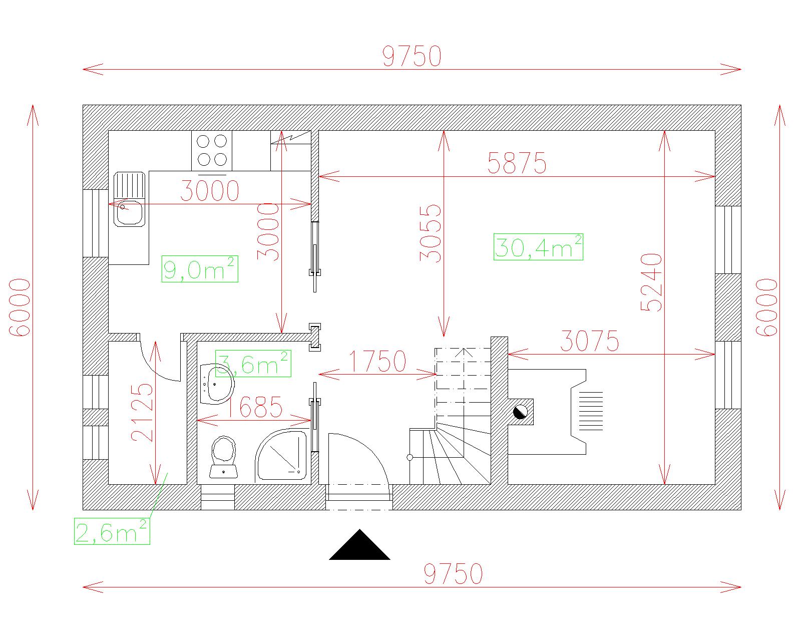
| Popis | Hodnota |
|---|---|
| Počet osôb | 4 |
| Orientácia vchodu | J. JZ |
| Podlaží | 2 |
| Počet obytných izieb | 3 |
| Obostavaný priestor | 330 m2 |
| Celková úžitková plocha | 88.9 m2 |
| Celková obytná plocha | 71.9 m2 |
| Zastavaná plocha | 58.5 m3 |
| Výška hrebeňa strechy | 7.6 |
| Sklon strechy | 55 |
| Cena projektu | € 1 010 |
| Cena stavby na kľúč | € 86 000 |


